о проекте

Проект с гаражом на два автомобиля, с крытым входом в дом и террасой, что обеспечивают дополнительный комфорт в любую погоду.

ЭТАЖНОСТЬ
1
ПЛОЩАДЬ
163.60 м²
1
этаж
ПАРАМЕТРЫ ПРОЕКТА
163.60 м²
Общая площадь
163.60 м²
Прихожая
4,80 м²
Коридор
4,50 м²
Гостиная-столовая
31,90 м²
Кухня
11,60 м²
Кладовая
2,60 м²
С/у
3,30 м²
Коридор
12,60 м²
Ванная
5,80 м²
1 этаж
все характеристики
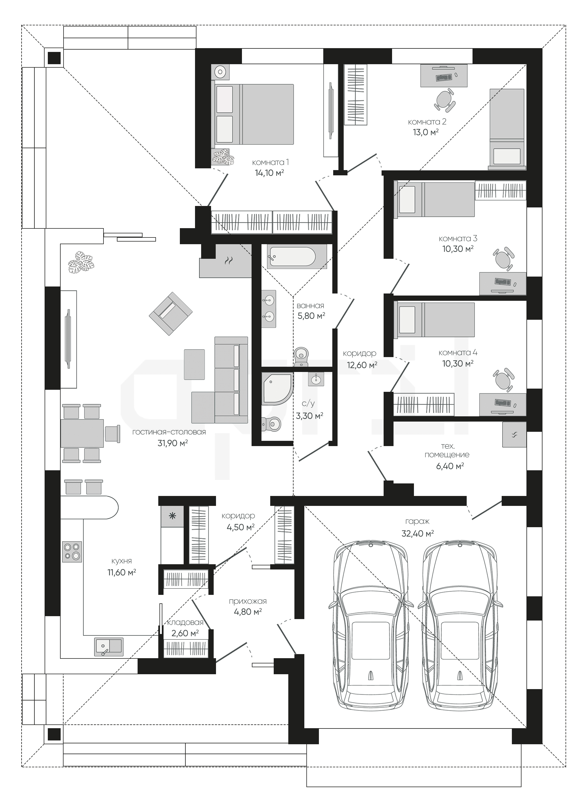
жилой дом
Общая площадь
163.60 м²
Прихожая
4,80 м²
Коридор
4,50 м²
Гостиная-столовая
31,90 м²
Кухня
11,60 м²
Кладовая
2,60 м²
С/у
3,30 м²
Коридор
12,60 м²
Ванная
5,80 м²
Комната 1
14,10 м²
Комната 2
13 м²
Комната 3
10,30 м²
Комната 4
10,30 м²
Техническое помещение
6,40 м²
Гараж
32,40 м²
планировка
все характеристики
все характеристики
жилой дом
Общая площадь
163.60 м²
Прихожая
4,80 м²
Коридор
4,50 м²
Гостиная-столовая
31,90 м²
Кухня
11,60 м²
Кладовая
2,60 м²
С/у
3,30 м²
Коридор
12,60 м²
Ванная
5,80 м²
Комната 1
14,10 м²
Комната 2
13 м²
Комната 3
10,30 м²
Комната 4
10,30 м²
Техническое помещение
6,40 м²
Гараж
32,40 м²
экстерьер
Остались вопросы?
Напиши нам.
Наш ведущий инженер свяжется с вами в ближайшее время.
Обязательно к заполнению
Обязательно к заполнению
ДАННЫЕ ПОЛУЧЕНЫ

данные успешно отправлены

Ведущий инженер компании свяжется с вами в ближайшее время.
мы используем файлы cookie
Используя сайт april-dom.ru, Вы соглашаетесь с использованием файлов cookie, которые указаны в Политике обработки Персональных данных.
/projects/a209/