о проекте

Проект одноэтажного дома с четырехскатной крышей и террасой.

ЭТАЖНОСТЬ
1
ПЛОЩАДЬ
131.83 м²
1
этаж
ПАРАМЕТРЫ ПРОЕКТА
131.83 м²
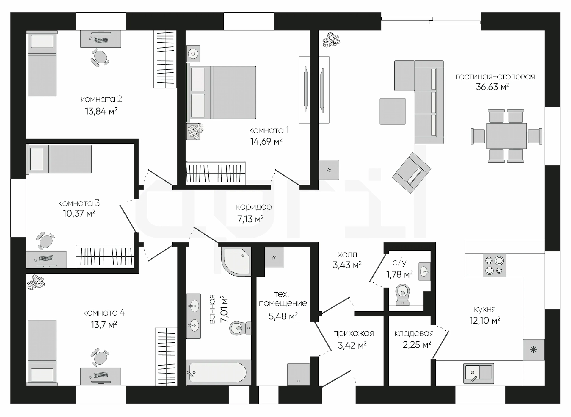
Общая площадь
131.83 м²
Прихожая
3,42 м²
Холл
3,43 м²
Гостиная+столовая
36,63 м²
Кухня
12,10 м²
Кладовая
2,25 м²
Коридор
7,13 м²
Комната 1
14,69 м²
Комната 2
13,84 м²
1 этаж
все характеристики
жилой дом
Общая площадь
131.83 м²
Прихожая
3,42 м²
Холл
3,43 м²
Гостиная+столовая
36,63 м²
Кухня
12,10 м²
Кладовая
2,25 м²
Коридор
7,13 м²
Комната 1
14,69 м²
Комната 2
13,84 м²
Комната 3
10,37 м²
Комната 4
13,70 м²
Ванная комната
7,01 м²
Техническое помещение
5,48 м²
С/у
1,78 м²
планировка
все характеристики
все характеристики
жилой дом
Общая площадь
131.83 м²
Прихожая
3,42 м²
Холл
3,43 м²
Гостиная+столовая
36,63 м²
Кухня
12,10 м²
Кладовая
2,25 м²
Коридор
7,13 м²
Комната 1
14,69 м²
Комната 2
13,84 м²
Комната 3
10,37 м²
Комната 4
13,70 м²
Ванная комната
7,01 м²
Техническое помещение
5,48 м²
С/у
1,78 м²
экстерьер
Остались вопросы?
Напиши нам.
Наш ведущий инженер свяжется с вами в ближайшее время.
Обязательно к заполнению
Обязательно к заполнению
ДАННЫЕ ПОЛУЧЕНЫ

данные успешно отправлены

Ведущий инженер компании свяжется с вами в ближайшее время.
мы используем файлы cookie
Используя сайт april-dom.ru, Вы соглашаетесь с использованием файлов cookie, которые указаны в Политике обработки Персональных данных.
/projects/a28/