о проекте

Двухэтажный дом с плоской кровлей спроектирован по принципу «умного зонирования», где каждый квадратный метр работает на комфорт владельцев.

ЭТАЖНОСТЬ
2
ПЛОЩАДЬ
207.59 м²
1
этаж
2
этаж
ПАРАМЕТРЫ ПРОЕКТА
207.59 м²
Общая площадь
207.59 м²
1 Этаж площадь
130,83 м²
Прихожая
6,87 м²
Коридор
7,40 м²
Гостиная-столовая
33,73 м²
Кухня
9,06 м²
Кладовая
2,60 м²
Кладовая
1,81 м²
Лестница
3,47 м²
1 этаж
2 этаж
все характеристики
жилой дом
Общая площадь
207.59 м²
1 Этаж площадь
130,83 м²
Прихожая
6,87 м²
Коридор
7,40 м²
Гостиная-столовая
33,73 м²
Кухня
9,06 м²
Кладовая
2,60 м²
Кладовая
1,81 м²
Лестница
3,47 м²
С/у
2,22 м²
Комната 1
13,17 м²
Гардероб
5,25 м²
Ванная
4,92 м²
Техническое помещение
6,60 м²
Гараж
33,73 м²
Терраса
37,74 м²
2 Этаж площадь
76,76 м²
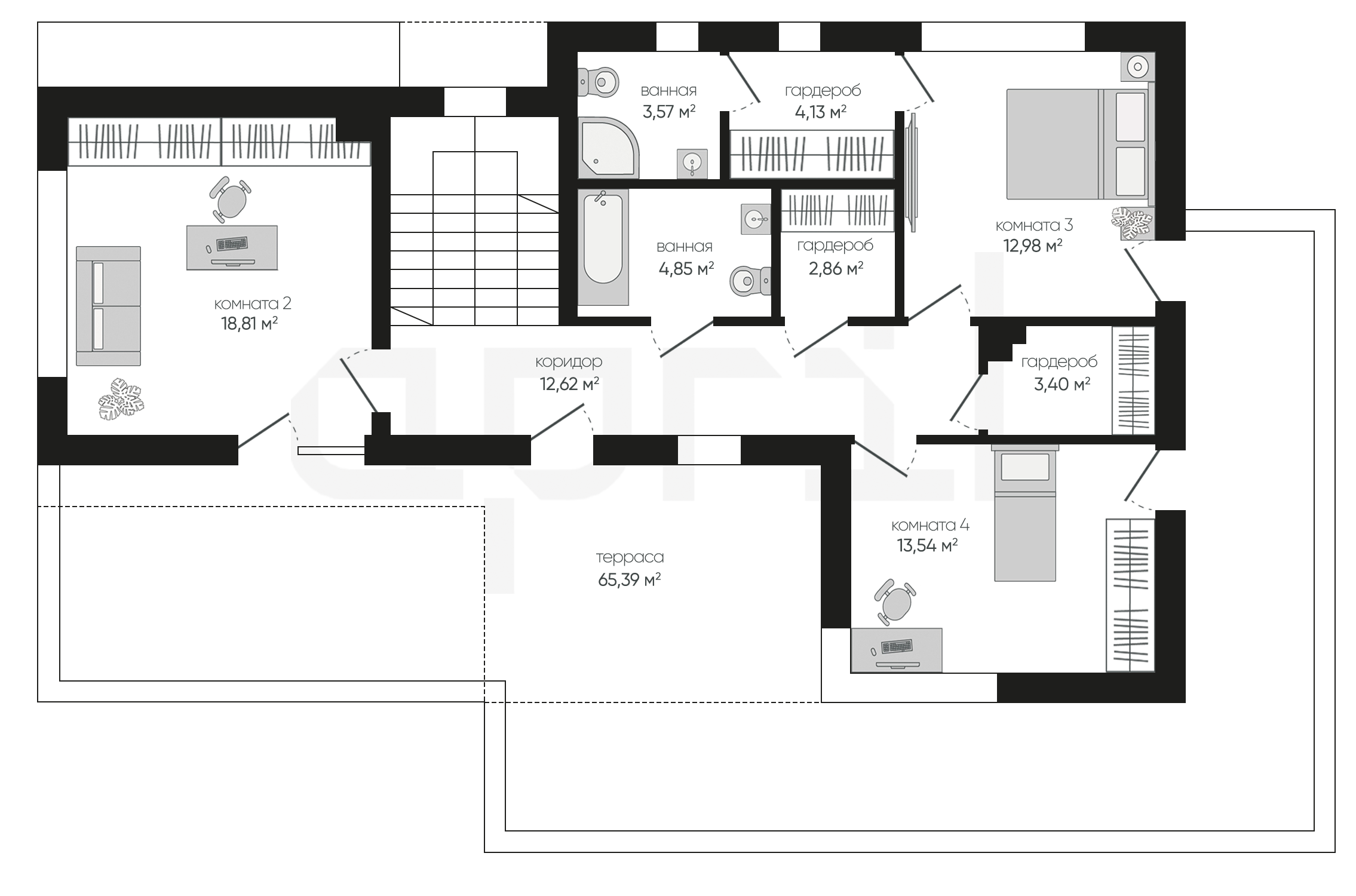
Коридор
12,62 м² (2 эт.)
Комната 2
18,81 м² (2 эт.)
Ванная
4,85 м² (2 эт.)
Гардероб
2,86 м² (2 эт.)
Комната 3
12,98 м² (2 эт.)
Гардероб
4,13 м² (2 эт.)
Ванная
3,57 м² (2 эт.)
Гардероб
3,40 м² (2 эт.)
Комната 4
13,54 м² (2 эт.)
Терраса
65,39 м² (2 эт.)
планировка
все характеристики
все характеристики
жилой дом
Общая площадь
207.59 м²
1 Этаж площадь
130,83 м²
Прихожая
6,87 м²
Коридор
7,40 м²
Гостиная-столовая
33,73 м²
Кухня
9,06 м²
Кладовая
2,60 м²
Кладовая
1,81 м²
Лестница
3,47 м²
С/у
2,22 м²
Комната 1
13,17 м²
Гардероб
5,25 м²
Ванная
4,92 м²
Техническое помещение
6,60 м²
Гараж
33,73 м²
Терраса
37,74 м²
2 Этаж площадь
76,76 м²
Коридор
12,62 м² (2 эт.)
Комната 2
18,81 м² (2 эт.)
Ванная
4,85 м² (2 эт.)
Гардероб
2,86 м² (2 эт.)
Комната 3
12,98 м² (2 эт.)
Гардероб
4,13 м² (2 эт.)
Ванная
3,57 м² (2 эт.)
Гардероб
3,40 м² (2 эт.)
Комната 4
13,54 м² (2 эт.)
Терраса
65,39 м² (2 эт.)
экстерьер
Остались вопросы?
Напиши нам.
Наш ведущий инженер свяжется с вами в ближайшее время.
Обязательно к заполнению
Обязательно к заполнению
ДАННЫЕ ПОЛУЧЕНЫ

данные успешно отправлены

Ведущий инженер компании свяжется с вами в ближайшее время.
мы используем файлы cookie
Используя сайт april-dom.ru, Вы соглашаетесь с использованием файлов cookie, которые указаны в Политике обработки Персональных данных.
/projects/a454/