о проекте

Дизайн проекта современен и оригинален. Интересное сочетание отделочных материалов придает дому уникальный характер и добавляет ему изысканности.

ЭТАЖНОСТЬ
2
ПЛОЩАДЬ
168.78 м²
1
этаж
2
этаж
ПАРАМЕТРЫ ПРОЕКТА
168.78 м²
Общая площадь
168.78 м²
1 Этаж площадь
104,04 м²
Прихожая
4,03 м²
Коридор
9,56 м²
Гостиная
26,27 м²
Кухня
8,93 м²
Кладовая
2,09 м²
С/у
3,50 м²
Кладовая
2 м²
1 этаж
2 этаж
все характеристики
жилой дом
Общая площадь
168.78 м²
1 Этаж площадь
104,04 м²
Прихожая
4,03 м²
Коридор
9,56 м²
Гостиная
26,27 м²
Кухня
8,93 м²
Кладовая
2,09 м²
С/у
3,50 м²
Кладовая
2 м²
Комната 1
9,13 м²
Техническое помещение
4,60 м²
Гараж
33,93 м²
2 Этаж площадь
64,74 м²
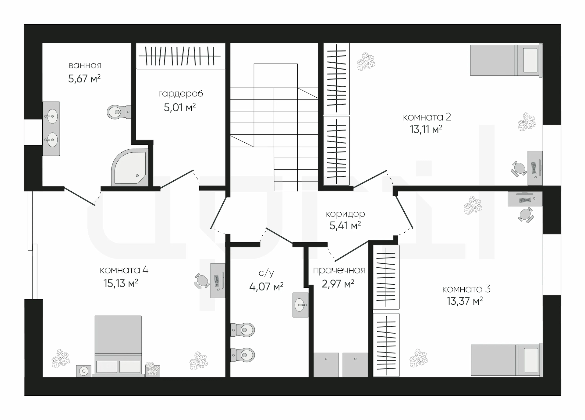
Коридор
5,41 м² (2 эт.)
Комната 2
13,11 м² (2 эт.)
Комната 3
13,37 м² (2 эт.)
Прачечная
2,97 м² (2 эт.)
Ванная комната
4,07 м² (2 эт.)
Комната 4
15,13 м² (2 эт.)
Ванная комната
5,67 м² (2 эт.)
Гардероб
5,01 м² (2 эт.)
планировка
все характеристики
все характеристики
жилой дом
Общая площадь
168.78 м²
1 Этаж площадь
104,04 м²
Прихожая
4,03 м²
Коридор
9,56 м²
Гостиная
26,27 м²
Кухня
8,93 м²
Кладовая
2,09 м²
С/у
3,50 м²
Кладовая
2 м²
Комната 1
9,13 м²
Техническое помещение
4,60 м²
Гараж
33,93 м²
2 Этаж площадь
64,74 м²
Коридор
5,41 м² (2 эт.)
Комната 2
13,11 м² (2 эт.)
Комната 3
13,37 м² (2 эт.)
Прачечная
2,97 м² (2 эт.)
Ванная комната
4,07 м² (2 эт.)
Комната 4
15,13 м² (2 эт.)
Ванная комната
5,67 м² (2 эт.)
Гардероб
5,01 м² (2 эт.)
экстерьер
гостиная
Остались вопросы?
Напиши нам.
Наш ведущий инженер свяжется с вами в ближайшее время.
Обязательно к заполнению
Обязательно к заполнению
ДАННЫЕ ПОЛУЧЕНЫ

данные успешно отправлены

Ведущий инженер компании свяжется с вами в ближайшее время.
мы используем файлы cookie
Используя сайт april-dom.ru, Вы соглашаетесь с использованием файлов cookie, которые указаны в Политике обработки Персональных данных.
/projects/a89/