о проекте

Проект подходит для большой семьи, предлагает простор, функциональность и элегантность, оборудован 4 комнатами, гаражом на 2 автомобиля, 4 ванными комнатами и зонами отдыха, специально разработанными для комфорта и удовлетворения всей семьи.

ЭТАЖНОСТЬ
2
ПЛОЩАДЬ
302.38 м²
1
этаж
2
этаж
ПАРАМЕТРЫ ПРОЕКТА
302.38 м²
Общая площадь
302.38 м²
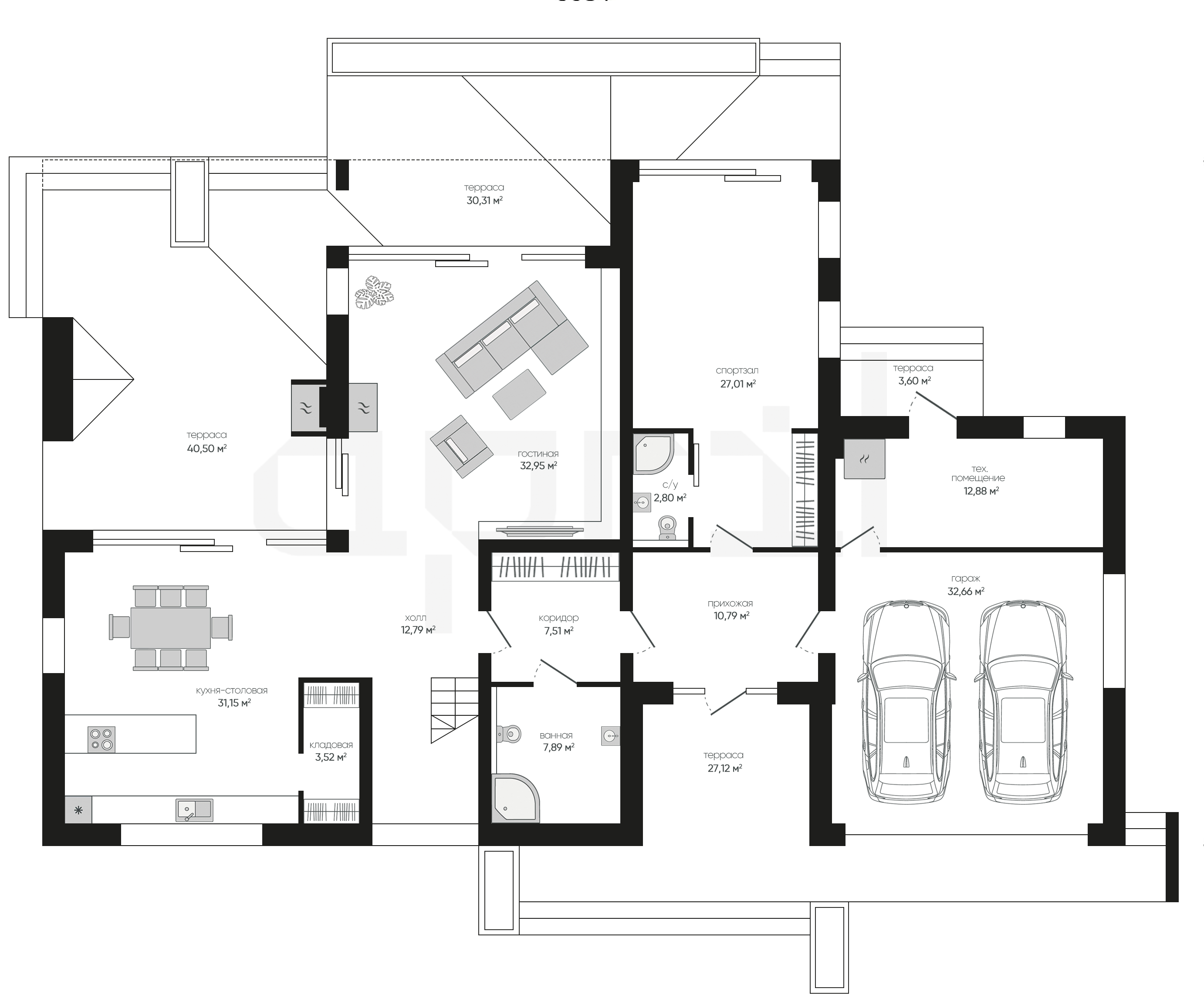
1 Этаж площадь
181,95 м²
Прихожая
10,79 м²
Коридор
7,51 м²
Ванная
7,89 м²
Холл
12,79 м²
Гостиная
32,95 м²
Кухня-столовая
31,15 м²
Кладовая
3,52 м²
1 этаж
2 этаж
все характеристики
жилой дом
Общая площадь
302.38 м²
1 Этаж площадь
181,95 м²
Прихожая
10,79 м²
Коридор
7,51 м²
Ванная
7,89 м²
Холл
12,79 м²
Гостиная
32,95 м²
Кухня-столовая
31,15 м²
Кладовая
3,52 м²
Спортзал
27,01 м²
С/у
2,80 м²
Техническое помещение
12,88 м²
Гараж
32,66 м²
Терраса
27,12 м²
Терраса
3,60 м²
Терраса
30,31 м²
Терраса
40,50 м²
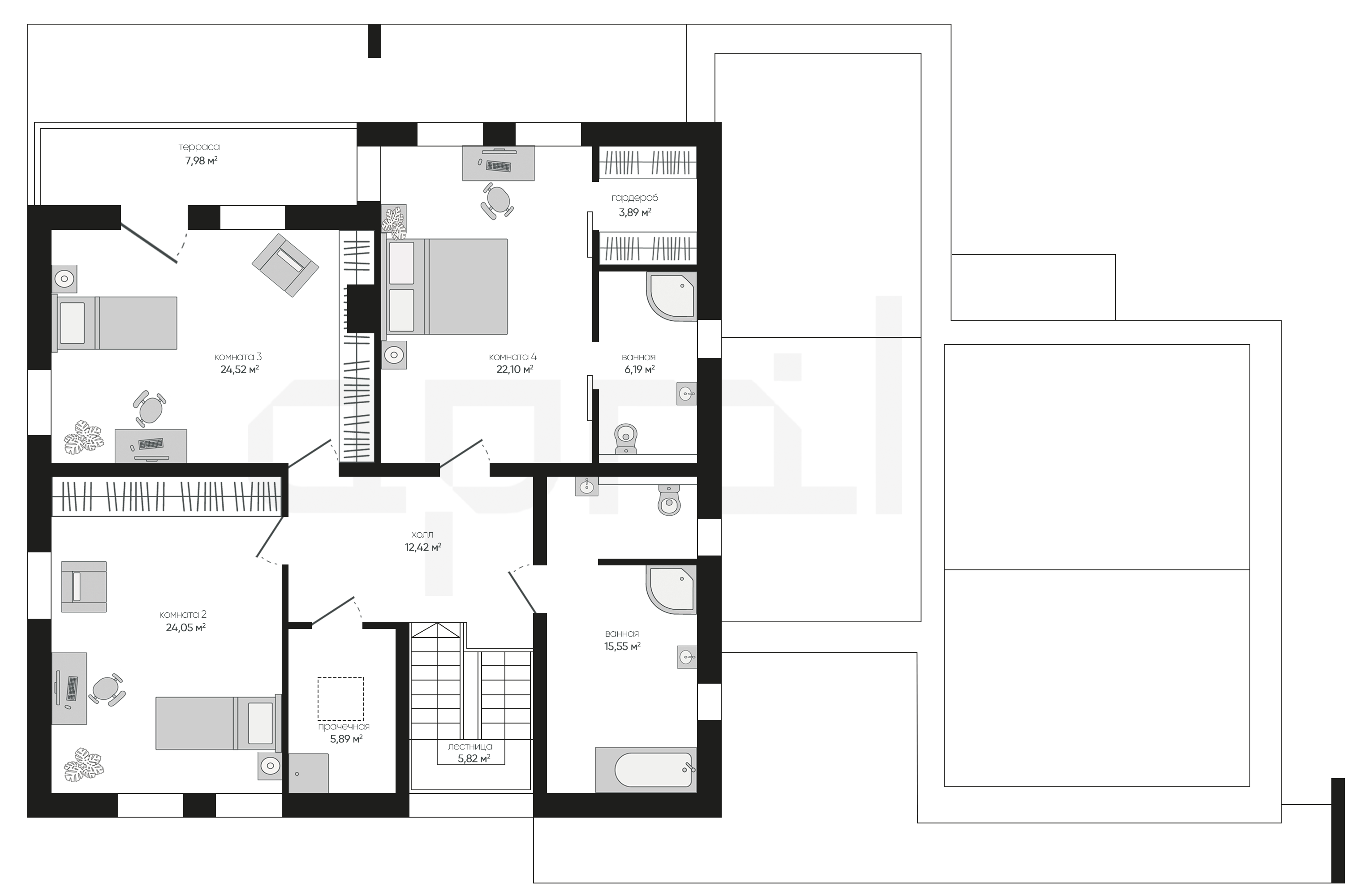
2 Этаж площадь
120,43 м²
Лестница
5,82 м² (2 эт.)
Холл
12,42 м² (2 эт.)
Прачечная
5,89 м² (2 эт.)
Комната 2
24,05 м² (2 эт.)
Комната 3
24,52 м² (2 эт.)
Комната 4
22,10 м² (2 эт.)
Гардероб
3,89 м² (2 эт.)
Ванная
6,19 м² (2 эт.)
Ванная
15,55 м² (2 эт.)
Терраса
7,98 м² (2 эт.)
планировка
все характеристики
все характеристики
жилой дом
Общая площадь
302.38 м²
1 Этаж площадь
181,95 м²
Прихожая
10,79 м²
Коридор
7,51 м²
Ванная
7,89 м²
Холл
12,79 м²
Гостиная
32,95 м²
Кухня-столовая
31,15 м²
Кладовая
3,52 м²
Спортзал
27,01 м²
С/у
2,80 м²
Техническое помещение
12,88 м²
Гараж
32,66 м²
Терраса
27,12 м²
Терраса
3,60 м²
Терраса
30,31 м²
Терраса
40,50 м²
2 Этаж площадь
120,43 м²
Лестница
5,82 м² (2 эт.)
Холл
12,42 м² (2 эт.)
Прачечная
5,89 м² (2 эт.)
Комната 2
24,05 м² (2 эт.)
Комната 3
24,52 м² (2 эт.)
Комната 4
22,10 м² (2 эт.)
Гардероб
3,89 м² (2 эт.)
Ванная
6,19 м² (2 эт.)
Ванная
15,55 м² (2 эт.)
Терраса
7,98 м² (2 эт.)
экстерьер
гостиная-столовая
Остались вопросы?
Напиши нам.
Наш ведущий инженер свяжется с вами в ближайшее время.
Обязательно к заполнению
Обязательно к заполнению
ДАННЫЕ ПОЛУЧЕНЫ

данные успешно отправлены

Ведущий инженер компании свяжется с вами в ближайшее время.
мы используем файлы cookie
Используя сайт april-dom.ru, Вы соглашаетесь с использованием файлов cookie, которые указаны в Политике обработки Персональных данных.
/projects/a362/