о проекте

Дизайн привлекает внимание своей оригинальностью. Стиль Хайтек, в котором выполнено оформление, подчеркивает элегантную простоту. Чистые линии, минимальное количество декоративных элементов и нейтральные цвета создают уютную атмосферу без излишнего нагромождения.

ЭТАЖНОСТЬ
2
ПЛОЩАДЬ
274.38 м²
1
этаж
2
этаж
ПАРАМЕТРЫ ПРОЕКТА
274.38 м²
Общая площадь
274.38 м²
1 Этаж площадь
166,48 м²
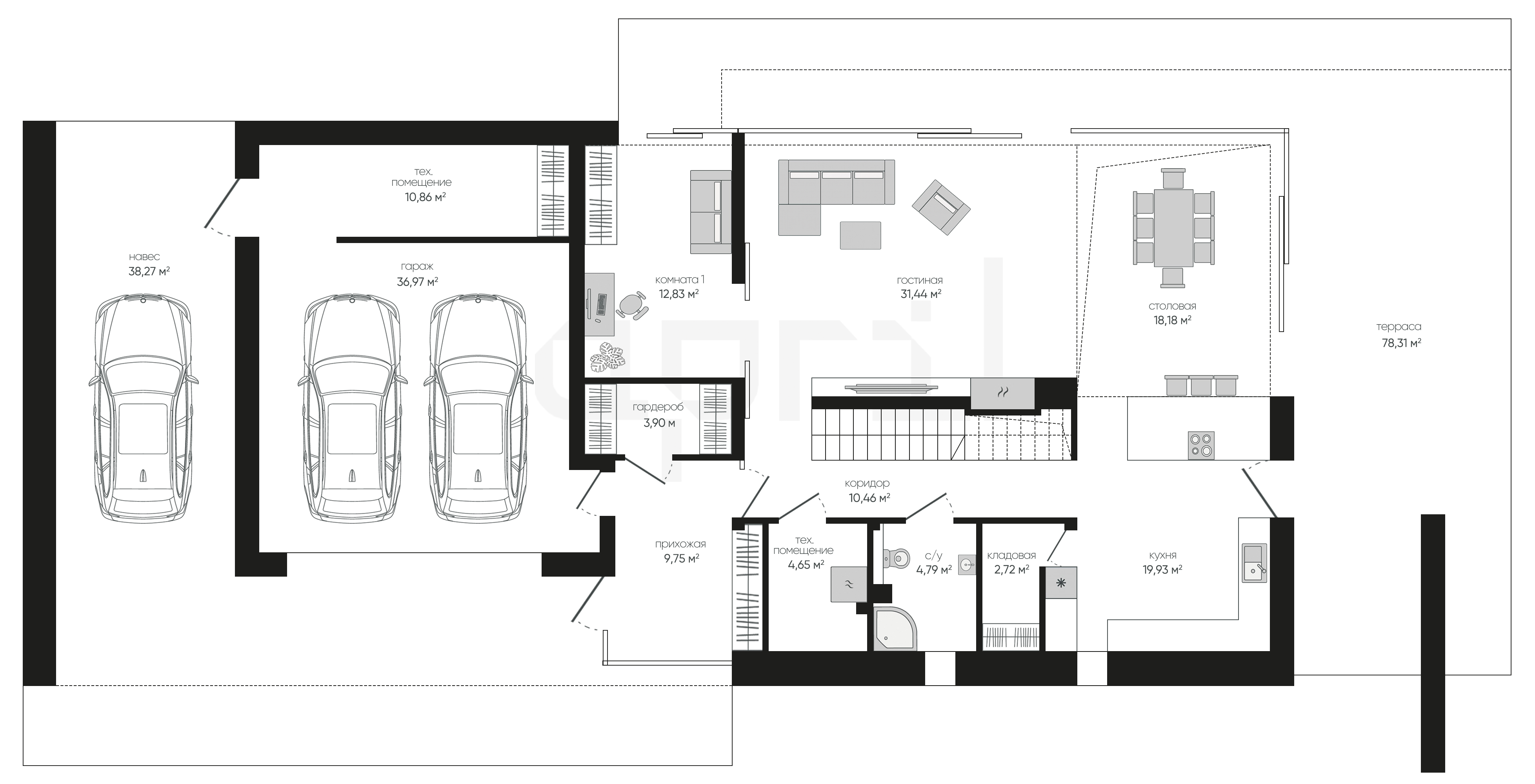
Прихожая
9,75 м²
Гардероб
3,90 м²
Коридор
10,46 м²
Гостиная
31,44 м²
Столовая
18,18 м²
Кухня
19,93 м²
Кладовая
2,72 м²
1 этаж
2 этаж
все характеристики
жилой дом
Общая площадь
274.38 м²
1 Этаж площадь
166,48 м²
Прихожая
9,75 м²
Гардероб
3,90 м²
Коридор
10,46 м²
Гостиная
31,44 м²
Столовая
18,18 м²
Кухня
19,93 м²
Кладовая
2,72 м²
С/у
4,79 м²
Комната 1
12,83 м²
Техническое помещение
4,65 м²
Гараж
36,97 м²
Техническое помещение
10,86 м²
Навес
38,27 м²
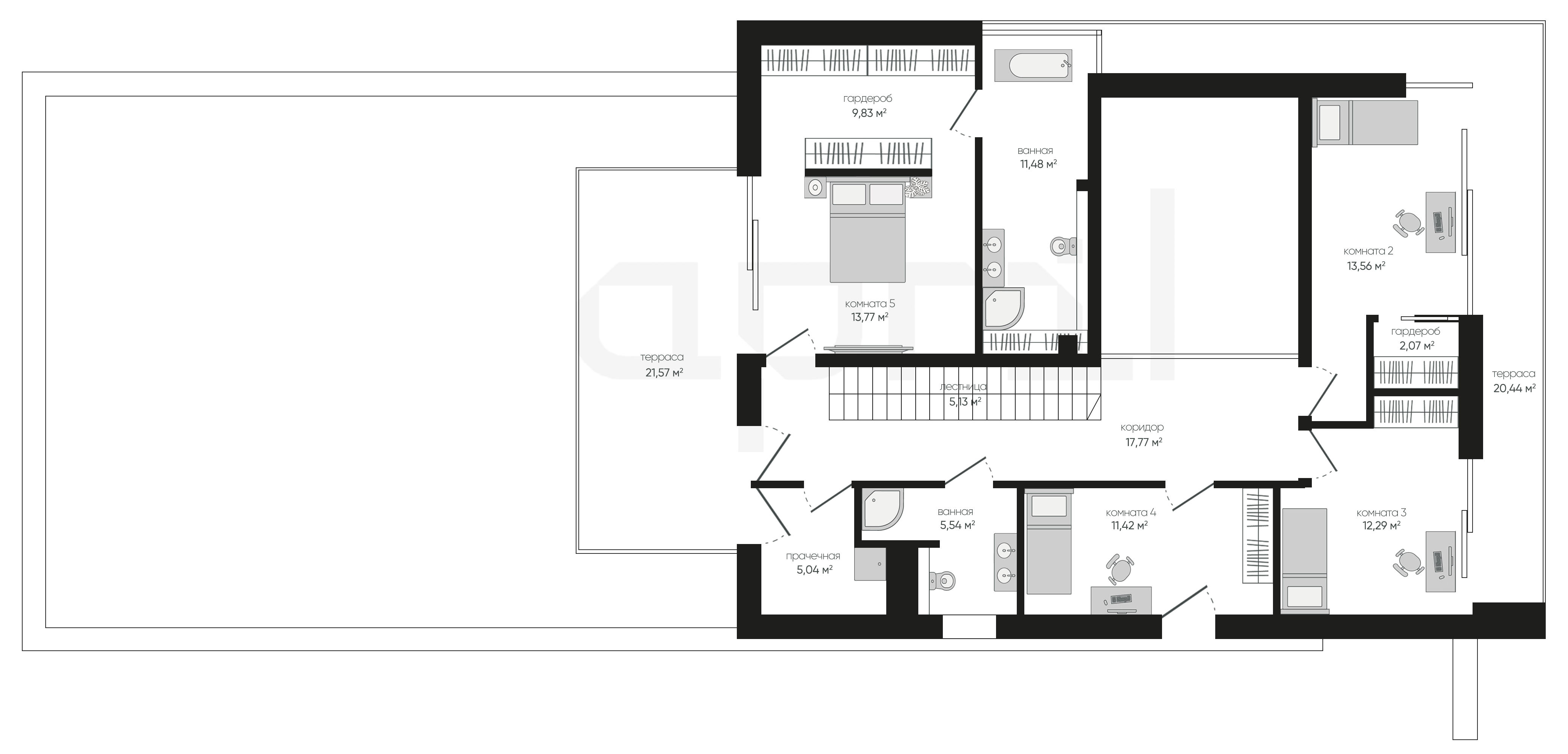
2 Этаж площадь
107,90 м²
Лестница
5,13 м² (2 эт.)
Коридор
17,77 м² (2 эт.)
Комната 2
13,56 м² (2 эт.)
Гардероб
2,07 м² (2 эт.)
Комната 3
12,29 м² (2 эт.)
Комната 4
11,42 м² (2 эт.)
Ванная
5,54 м² (2 эт.)
Прачечная
5,04 м² (2 эт.)
Комната 5
13,77 м² (2 эт.)
Гардероб
9,83 м² (2 эт.)
Ванная
11,48 м² (2 эт.)
Терраса
20,44 м² (2 эт.)
Терраса
21,57 м² (2 эт.)
планировка
все характеристики
все характеристики
жилой дом
Общая площадь
274.38 м²
1 Этаж площадь
166,48 м²
Прихожая
9,75 м²
Гардероб
3,90 м²
Коридор
10,46 м²
Гостиная
31,44 м²
Столовая
18,18 м²
Кухня
19,93 м²
Кладовая
2,72 м²
С/у
4,79 м²
Комната 1
12,83 м²
Техническое помещение
4,65 м²
Гараж
36,97 м²
Техническое помещение
10,86 м²
Навес
38,27 м²
2 Этаж площадь
107,90 м²
Лестница
5,13 м² (2 эт.)
Коридор
17,77 м² (2 эт.)
Комната 2
13,56 м² (2 эт.)
Гардероб
2,07 м² (2 эт.)
Комната 3
12,29 м² (2 эт.)
Комната 4
11,42 м² (2 эт.)
Ванная
5,54 м² (2 эт.)
Прачечная
5,04 м² (2 эт.)
Комната 5
13,77 м² (2 эт.)
Гардероб
9,83 м² (2 эт.)
Ванная
11,48 м² (2 эт.)
Терраса
20,44 м² (2 эт.)
Терраса
21,57 м² (2 эт.)
экстерьер
гостиная-столовая
спальня
ванная
Остались вопросы?
Напиши нам.
Наш ведущий инженер свяжется с вами в ближайшее время.
Обязательно к заполнению
Обязательно к заполнению
ДАННЫЕ ПОЛУЧЕНЫ

данные успешно отправлены

Ведущий инженер компании свяжется с вами в ближайшее время.
мы используем файлы cookie
Используя сайт april-dom.ru, Вы соглашаетесь с использованием файлов cookie, которые указаны в Политике обработки Персональных данных.
/projects/a355/