о проекте

Дом выглядит современно, функционально и стильно, гармонично вписываясь в окружающую среду благодаря минималистичному подходу и использованию современных материалов.

ЭТАЖНОСТЬ
2
ПЛОЩАДЬ
288.45 м²
1
этаж
2
этаж
ПАРАМЕТРЫ ПРОЕКТА
288.45 м²
Общая площадь
288.45 м²
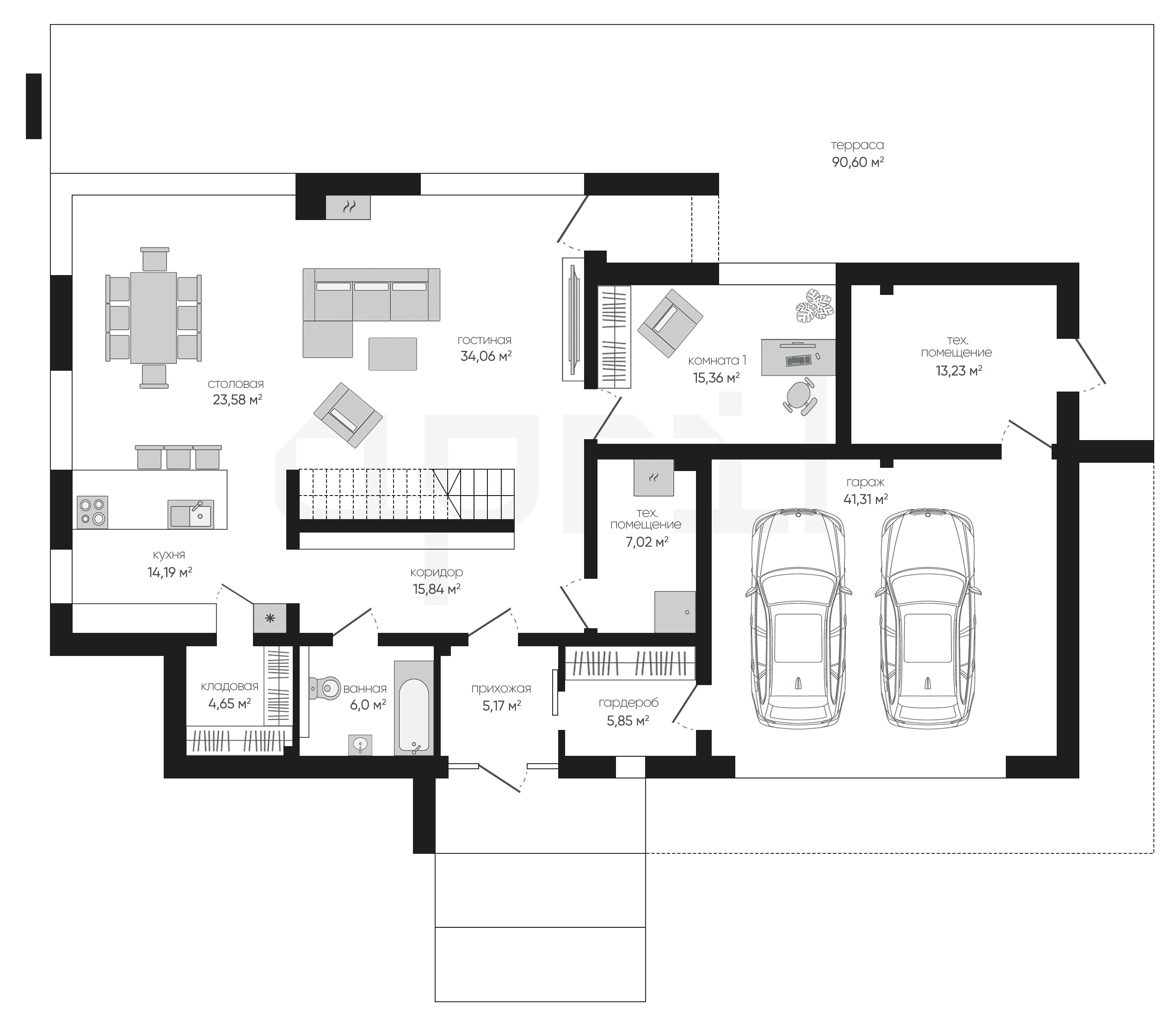
1 Этаж площадь
186,26 м²
Прихожая
5,17 м²
Гардероб
5,85 м²
Коридор
15,84 м²
Гостиная
34,06 м²
Столовая
23,58 м²
Кухня
14,19 м²
Кладовая
4,65 м²
1 этаж
2 этаж
все характеристики
жилой дом
Общая площадь
288.45 м²
1 Этаж площадь
186,26 м²
Прихожая
5,17 м²
Гардероб
5,85 м²
Коридор
15,84 м²
Гостиная
34,06 м²
Столовая
23,58 м²
Кухня
14,19 м²
Кладовая
4,65 м²
Ванная
6 м²
Комната 1
15,36 м²
Техническое помещение
7,02 м²
Техническое помещение
13,23 м²
Гараж
41,31 м²
Терраса
90,60 м²
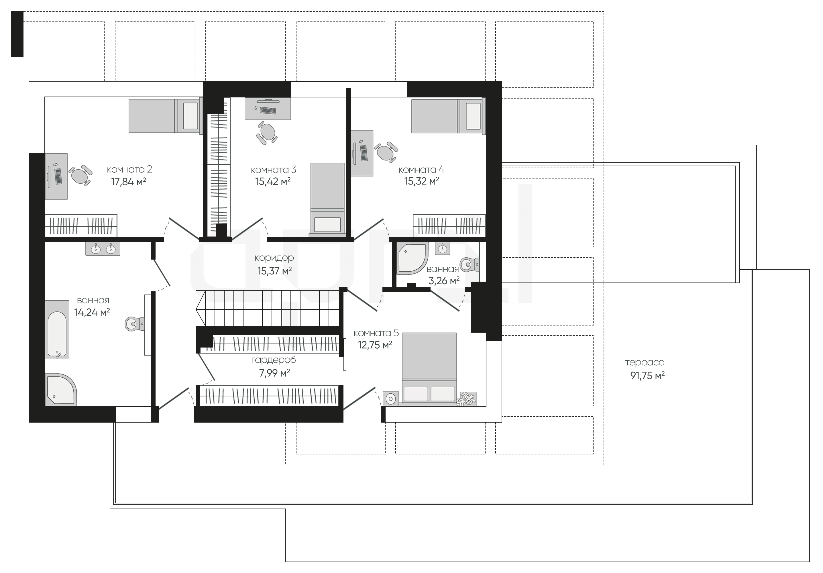
2 Этаж площадь
102,19 м²
Коридор
15,37 м² (2 эт.)
Ванная
14,24 м² (2 эт.)
Комната 2
17,84 м² (2 эт.)
Комната 3
15,42 м² (2 эт.)
Комната 4
15,32 м² (2 эт.)
Комната 5
12,75 м² (2 эт.)
Ванная
3,26 м² (2 эт.)
Гардероб
7,99 м² (2 эт.)
Терраса
91,75 м² (2 эт.)
планировка
все характеристики
все характеристики
жилой дом
Общая площадь
288.45 м²
1 Этаж площадь
186,26 м²
Прихожая
5,17 м²
Гардероб
5,85 м²
Коридор
15,84 м²
Гостиная
34,06 м²
Столовая
23,58 м²
Кухня
14,19 м²
Кладовая
4,65 м²
Ванная
6 м²
Комната 1
15,36 м²
Техническое помещение
7,02 м²
Техническое помещение
13,23 м²
Гараж
41,31 м²
Терраса
90,60 м²
2 Этаж площадь
102,19 м²
Коридор
15,37 м² (2 эт.)
Ванная
14,24 м² (2 эт.)
Комната 2
17,84 м² (2 эт.)
Комната 3
15,42 м² (2 эт.)
Комната 4
15,32 м² (2 эт.)
Комната 5
12,75 м² (2 эт.)
Ванная
3,26 м² (2 эт.)
Гардероб
7,99 м² (2 эт.)
Терраса
91,75 м² (2 эт.)
экстерьер
гостиная-столовая
спальня
ванная
Остались вопросы?
Напиши нам.
Наш ведущий инженер свяжется с вами в ближайшее время.
Обязательно к заполнению
Обязательно к заполнению
ДАННЫЕ ПОЛУЧЕНЫ

данные успешно отправлены

Ведущий инженер компании свяжется с вами в ближайшее время.
мы используем файлы cookie
Используя сайт april-dom.ru, Вы соглашаетесь с использованием файлов cookie, которые указаны в Политике обработки Персональных данных.
/projects/a369/