о проекте

Компактная форма дома с четырехскатной крышей выглядит стильно и компактно. Проект является интересным примером современного дизайна, привлекающим внимание своей уникальностью и функциональностью.

ЭТАЖНОСТЬ
1
ПЛОЩАДЬ
192.37 м²
1
этаж
2
этаж
ПАРАМЕТРЫ ПРОЕКТА
192.37 м²
Общая площадь
192.37 м²
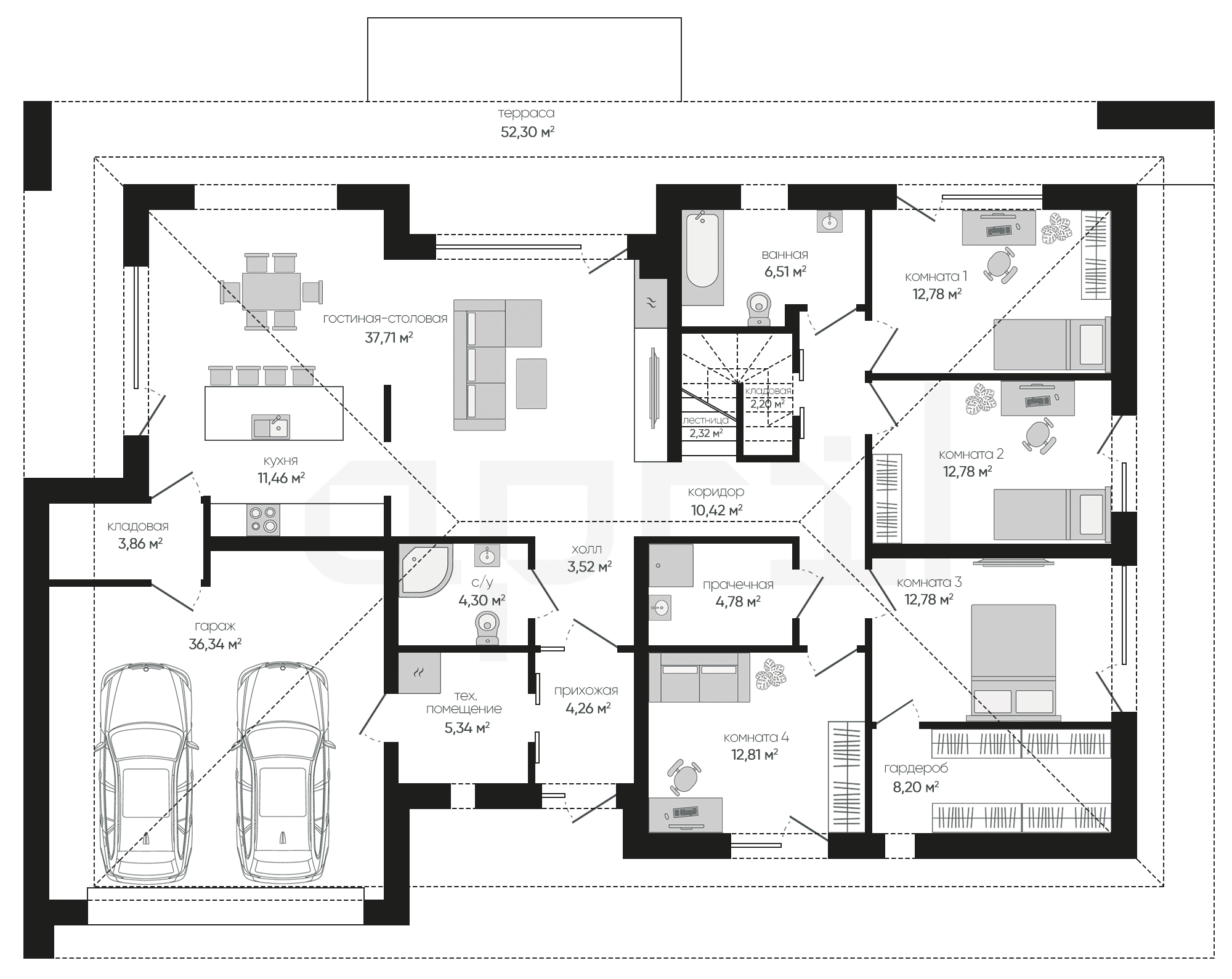
Прихожая
4,26 м²
Холл
3,52 м²
Гостиная-столовая
37,71 м²
Кухня
11,46 м²
Кладовая
3,86 м²
С/у
4,30 м²
Коридор
10,42 м²
Комната 1
12,78 м²
1 этаж
2 этаж
все характеристики
жилой дом
Общая площадь
192.37 м²
Прихожая
4,26 м²
Холл
3,52 м²
Гостиная-столовая
37,71 м²
Кухня
11,46 м²
Кладовая
3,86 м²
С/у
4,30 м²
Коридор
10,42 м²
Комната 1
12,78 м²
Комната 2
12,78 м²
Комната 3
12,78 м²
Гардероб
8,20 м²
Комната 4
12,81 м²
Прачечная
4,78 м²
Ванная
6,51 м²
Кладовая
2,20 м²
Лестница
2,32 м²
Техническое помещение
5,34 м²
Гараж
36,34 м²
Терраса
52,30 м²
Чердак
90,50 м²
планировка
все характеристики
все характеристики
жилой дом
Общая площадь
192.37 м²
Прихожая
4,26 м²
Холл
3,52 м²
Гостиная-столовая
37,71 м²
Кухня
11,46 м²
Кладовая
3,86 м²
С/у
4,30 м²
Коридор
10,42 м²
Комната 1
12,78 м²
Комната 2
12,78 м²
Комната 3
12,78 м²
Гардероб
8,20 м²
Комната 4
12,81 м²
Прачечная
4,78 м²
Ванная
6,51 м²
Кладовая
2,20 м²
Лестница
2,32 м²
Техническое помещение
5,34 м²
Гараж
36,34 м²
Терраса
52,30 м²
Чердак
90,50 м²
экстерьер
Остались вопросы?
Напиши нам.
Наш ведущий инженер свяжется с вами в ближайшее время.
Обязательно к заполнению
Обязательно к заполнению
ДАННЫЕ ПОЛУЧЕНЫ

данные успешно отправлены

Ведущий инженер компании свяжется с вами в ближайшее время.
мы используем файлы cookie
Используя сайт april-dom.ru, Вы соглашаетесь с использованием файлов cookie, которые указаны в Политике обработки Персональных данных.
/projects/a166/