о проекте

Дом имеет строгую, кубическую форму с плоской крышей и большими окнами, что характерно для современного архитектурного стиля Хайтек с минималистичным дизайном.

ЭТАЖНОСТЬ
2
ПЛОЩАДЬ
185.01 м²
1
этаж
2
этаж
ПАРАМЕТРЫ ПРОЕКТА
185.01 м²
Общая площадь
185.01 м²
1 Этаж площадь
124,91 м²
Прихожая
5,07 м²
Коридор
9 м²
Гостиная
36,80 м²
Столовая
11,53 м²
Кухня
10,49 м²
С/у
3,43 м²
Техническое помещение
4,40 м²
1 этаж
2 этаж
все характеристики
жилой дом
Общая площадь
185.01 м²
1 Этаж площадь
124,91 м²
Прихожая
5,07 м²
Коридор
9 м²
Гостиная
36,80 м²
Столовая
11,53 м²
Кухня
10,49 м²
С/у
3,43 м²
Техническое помещение
4,40 м²
Гараж
44,19 м²
Терраса
4,93 м²
Терраса
18,48 м²
2 Этаж площадь
60,10 м²
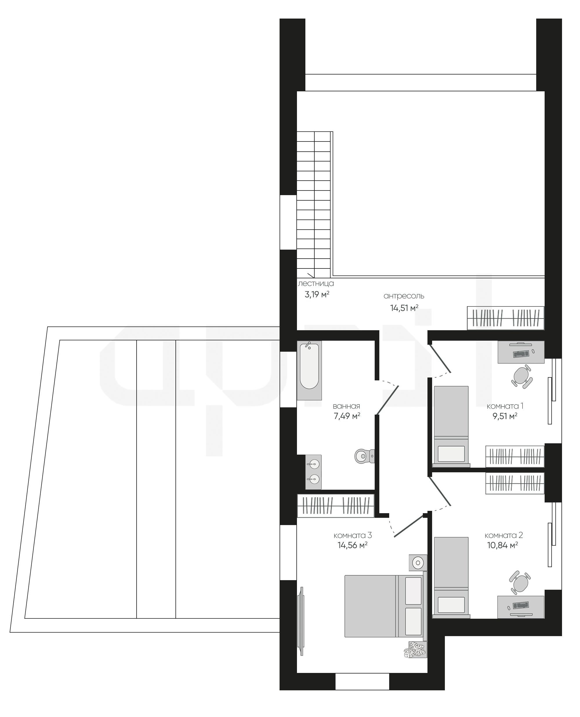
Лестница
3,19 м² (2 эт.)
Антресоль
14,51 м² (2 эт.)
Комната 1
9,51 м² (2 эт.)
Комната 2
10,84 м² (2 эт.)
Комната 3
14,56 м² (2 эт.)
Ванная
7,49 м² (2 эт.)
планировка
все характеристики
все характеристики
жилой дом
Общая площадь
185.01 м²
1 Этаж площадь
124,91 м²
Прихожая
5,07 м²
Коридор
9 м²
Гостиная
36,80 м²
Столовая
11,53 м²
Кухня
10,49 м²
С/у
3,43 м²
Техническое помещение
4,40 м²
Гараж
44,19 м²
Терраса
4,93 м²
Терраса
18,48 м²
2 Этаж площадь
60,10 м²
Лестница
3,19 м² (2 эт.)
Антресоль
14,51 м² (2 эт.)
Комната 1
9,51 м² (2 эт.)
Комната 2
10,84 м² (2 эт.)
Комната 3
14,56 м² (2 эт.)
Ванная
7,49 м² (2 эт.)
экстерьер
Остались вопросы?
Напиши нам.
Наш ведущий инженер свяжется с вами в ближайшее время.
Обязательно к заполнению
Обязательно к заполнению
ДАННЫЕ ПОЛУЧЕНЫ

данные успешно отправлены

Ведущий инженер компании свяжется с вами в ближайшее время.
мы используем файлы cookie
Используя сайт april-dom.ru, Вы соглашаетесь с использованием файлов cookie, которые указаны в Политике обработки Персональных данных.
/projects/a422/