о проекте

Продуманный проект двухэтажного дома, сочетающего в себе современную эстетику и повседневный комфорт предназначен для людей, которые ищут дом с четкой практичной функциональной планировкой.

ЭТАЖНОСТЬ
2
ПЛОЩАДЬ
291.50 м²
1
этаж
2
этаж
ПАРАМЕТРЫ ПРОЕКТА
291.50 м²
Общая площадь
291.50 м²
1 Этаж площадь
195,20 м²
Прихожая
4,20 м²
Гардероб
5 м²
Холл
17,20 м²
Гостиная
47,40 м²
Кухня-столовая
42,20 м²
Кладовая
3,90 м²
Техническое помещение
11,10 м²
1 этаж
2 этаж
все характеристики
жилой дом
Общая площадь
291.50 м²
1 Этаж площадь
195,20 м²
Прихожая
4,20 м²
Гардероб
5 м²
Холл
17,20 м²
Гостиная
47,40 м²
Кухня-столовая
42,20 м²
Кладовая
3,90 м²
Техническое помещение
11,10 м²
С/у
3,40 м²
Комната 1
16,30 м²
Гараж
44,50 м²
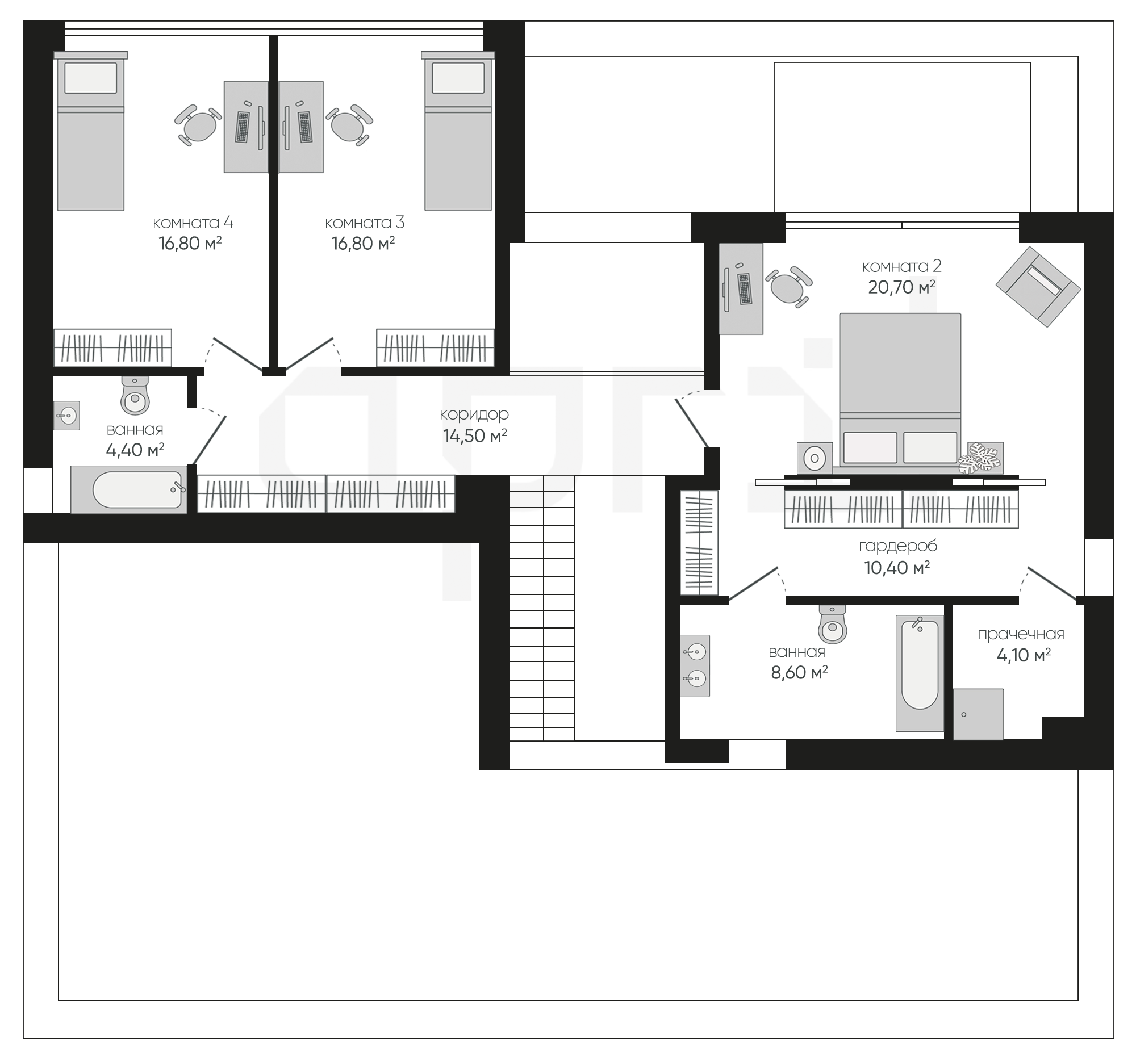
2 Этаж площадь
96,30 м²
Коридор
14,50 м² (2 эт.)
Комната 2
20,70 м² (2 эт.)
Гардероб
10,40 м² (2 эт.)
Ванная
8,60 м² (2 эт.)
Прачечная
4,10 м² (2 эт.)
Комната 3
16,80 м² (2 эт.)
Комната 4
16,80 м² (2 эт.)
Ванная
4,40 м² (2 эт.)
планировка
все характеристики
все характеристики
жилой дом
Общая площадь
291.50 м²
1 Этаж площадь
195,20 м²
Прихожая
4,20 м²
Гардероб
5 м²
Холл
17,20 м²
Гостиная
47,40 м²
Кухня-столовая
42,20 м²
Кладовая
3,90 м²
Техническое помещение
11,10 м²
С/у
3,40 м²
Комната 1
16,30 м²
Гараж
44,50 м²
2 Этаж площадь
96,30 м²
Коридор
14,50 м² (2 эт.)
Комната 2
20,70 м² (2 эт.)
Гардероб
10,40 м² (2 эт.)
Ванная
8,60 м² (2 эт.)
Прачечная
4,10 м² (2 эт.)
Комната 3
16,80 м² (2 эт.)
Комната 4
16,80 м² (2 эт.)
Ванная
4,40 м² (2 эт.)
экстерьер
гостиная-столовая
Остались вопросы?
Напиши нам.
Наш ведущий инженер свяжется с вами в ближайшее время.
Обязательно к заполнению
Обязательно к заполнению
ДАННЫЕ ПОЛУЧЕНЫ

данные успешно отправлены

Ведущий инженер компании свяжется с вами в ближайшее время.
мы используем файлы cookie
Используя сайт april-dom.ru, Вы соглашаетесь с использованием файлов cookie, которые указаны в Политике обработки Персональных данных.
/projects/a360/