о проекте

В проекте учли комфорт жильцов и придали большое значение функциональности интерьеров. Планировка была организована на три основные зоны: дневную, ночную и техническую. Такой подход помог создать гармоничное и комфортное пространство для жизни.

ЭТАЖНОСТЬ
2
ПЛОЩАДЬ
292.60 м²
1
этаж
2
этаж
ПАРАМЕТРЫ ПРОЕКТА
292.60 м²
Общая площадь
292.60 м²
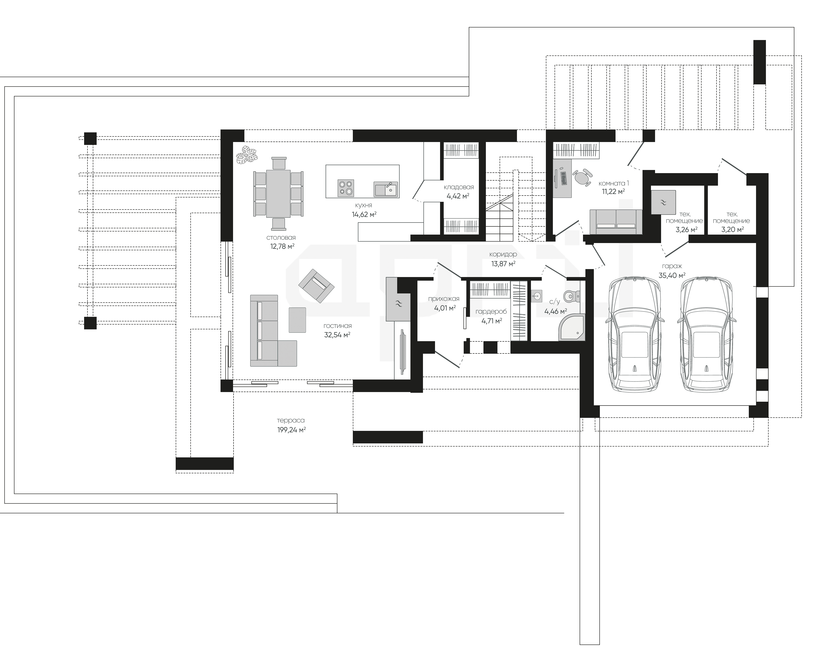
1 Этаж площадь
144,49 м²
Прихожая
4,01 м²
Гардероб
4,71 м²
Гостиная
32,54 м²
Столовая
12,78 м²
Кухня
14,62 м²
Кладовая
4,42 м²
Коридор
13,87 м²
1 этаж
2 этаж
все характеристики
жилой дом
Общая площадь
292.60 м²
1 Этаж площадь
144,49 м²
Прихожая
4,01 м²
Гардероб
4,71 м²
Гостиная
32,54 м²
Столовая
12,78 м²
Кухня
14,62 м²
Кладовая
4,42 м²
Коридор
13,87 м²
С/у
4,46 м²
Комната 1
11,22 м²
Техническое помещение
3,26 м²
Техническое помещение
3,20 м²
Гараж
35,40 м²
Терраса
199,24 м²
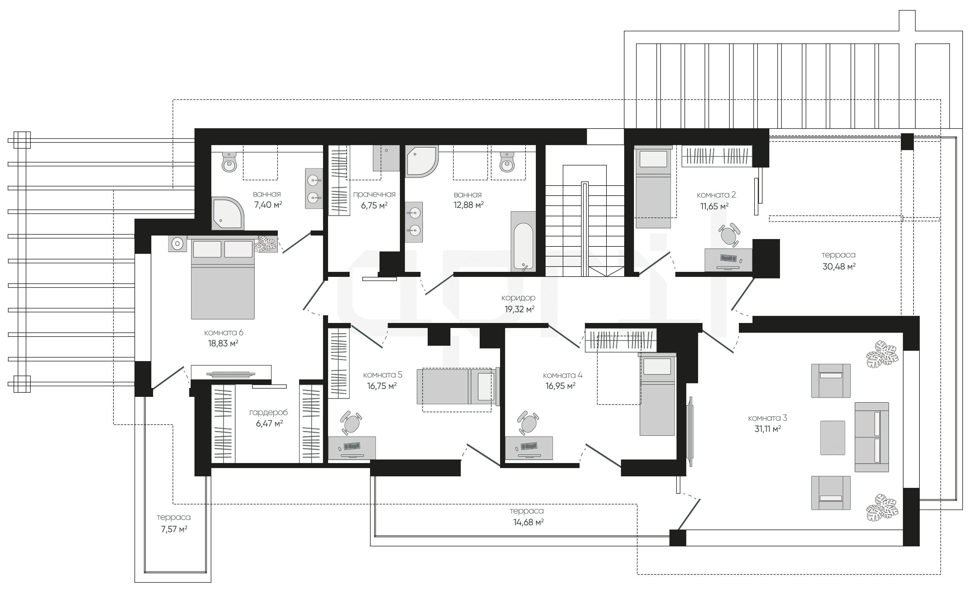
2 Этаж площадь
148,11 м²
Коридор
19,32 м² (2 эт.)
Комната 2
11,65 м² (2 эт.)
Комната 3
31,11 м² (2 эт.)
Комната 4
16,95 м² (2 эт.)
Комната 5
16,75 м² (2 эт.)
Комната 6
18,83 м² (2 эт.)
Ванная
7,40 м² (2 эт.)
Гардероб
6,47 м² (2 эт.)
Прачечная
6,75 м² (2 эт.)
Ванная
12,88 м² (2 эт.)
Терраса
30,48 м² (2 эт.)
Терраса
14,68 м² (2 эт.)
Терраса
7,57 м² (2 эт.)
планировка
все характеристики
все характеристики
жилой дом
Общая площадь
292.60 м²
1 Этаж площадь
144,49 м²
Прихожая
4,01 м²
Гардероб
4,71 м²
Гостиная
32,54 м²
Столовая
12,78 м²
Кухня
14,62 м²
Кладовая
4,42 м²
Коридор
13,87 м²
С/у
4,46 м²
Комната 1
11,22 м²
Техническое помещение
3,26 м²
Техническое помещение
3,20 м²
Гараж
35,40 м²
Терраса
199,24 м²
2 Этаж площадь
148,11 м²
Коридор
19,32 м² (2 эт.)
Комната 2
11,65 м² (2 эт.)
Комната 3
31,11 м² (2 эт.)
Комната 4
16,95 м² (2 эт.)
Комната 5
16,75 м² (2 эт.)
Комната 6
18,83 м² (2 эт.)
Ванная
7,40 м² (2 эт.)
Гардероб
6,47 м² (2 эт.)
Прачечная
6,75 м² (2 эт.)
Ванная
12,88 м² (2 эт.)
Терраса
30,48 м² (2 эт.)
Терраса
14,68 м² (2 эт.)
Терраса
7,57 м² (2 эт.)
экстерьер
Остались вопросы?
Напиши нам.
Наш ведущий инженер свяжется с вами в ближайшее время.
Обязательно к заполнению
Обязательно к заполнению
ДАННЫЕ ПОЛУЧЕНЫ

данные успешно отправлены

Ведущий инженер компании свяжется с вами в ближайшее время.
мы используем файлы cookie
Используя сайт april-dom.ru, Вы соглашаетесь с использованием файлов cookie, которые указаны в Политике обработки Персональных данных.
/projects/a348/