о проекте

Проект представляет собой предложение современного дома с мансардой и необычной функциональной планировкой.

ЭТАЖНОСТЬ
2
ПЛОЩАДЬ
302.78 м²
1
этаж
2
этаж
ПАРАМЕТРЫ ПРОЕКТА
302.78 м²
Общая площадь
302.78 м²
1 Этаж площадь
172,37 м²
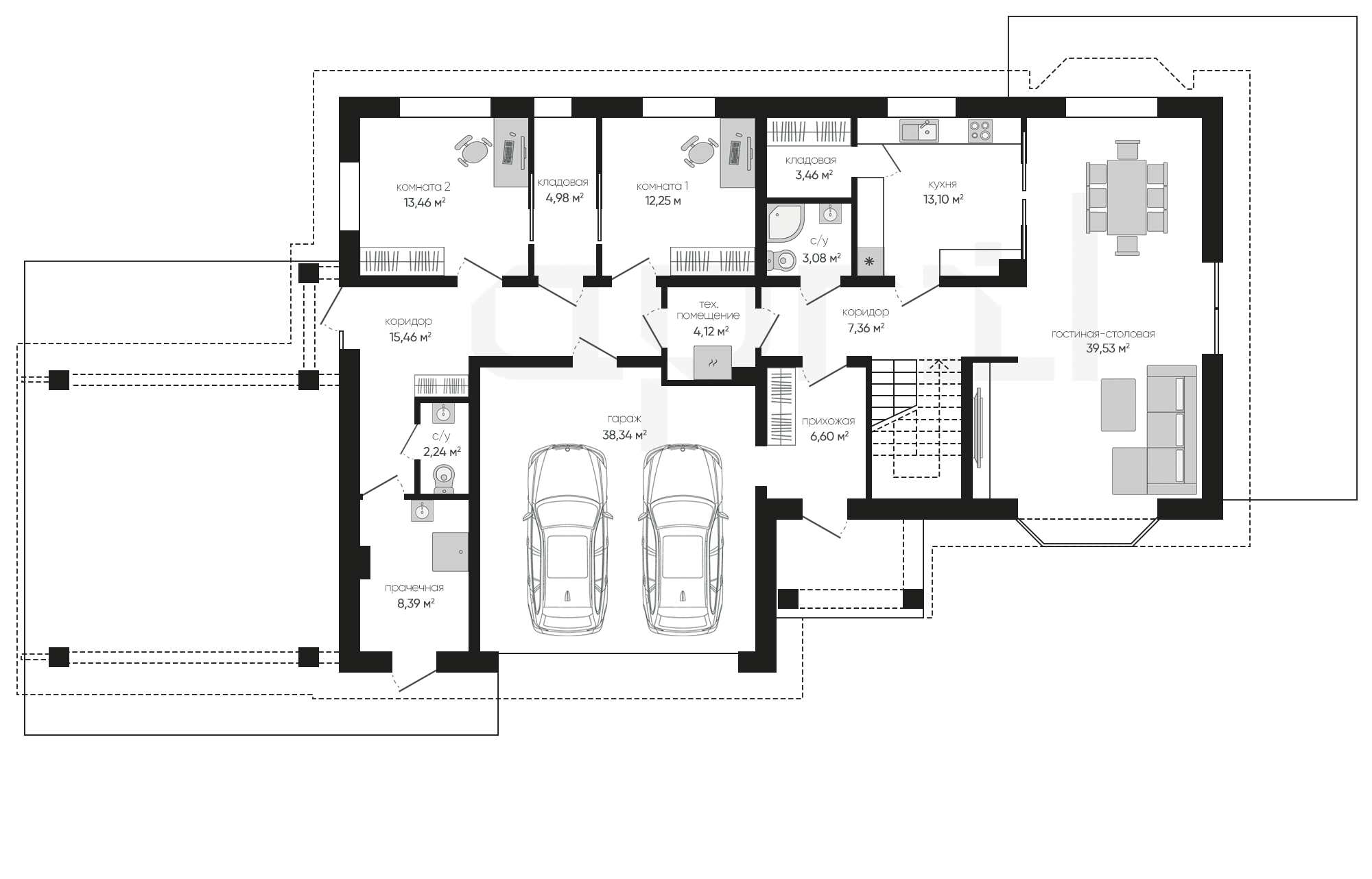
Прихожая
6,60 м²
Коридор
7,36 м²
Гостиная-столовая
39,53 м²
Кухня
13,10 м²
Кладовая
3,46 м²
С/у
3,08 м²
Техническое помещение
4,12 м²
1 этаж
2 этаж
все характеристики
жилой дом
Общая площадь
302.78 м²
1 Этаж площадь
172,37 м²
Прихожая
6,60 м²
Коридор
7,36 м²
Гостиная-столовая
39,53 м²
Кухня
13,10 м²
Кладовая
3,46 м²
С/у
3,08 м²
Техническое помещение
4,12 м²
Комната 1
12,25 м²
Кладовая
4,98 м²
Комната 2
13,46 м²
Коридор
15,46 м²
С/у
2,24 м²
Прачечная
8,39 м²
Гараж
38,34 м²
2 Этаж площадь
130,41 м²
Коридор
16,35 м² (2 эт.)
Комната 3
20,20 м² (2 эт.)
Комната 4
14 м² (2 эт.)
Комната 5
13,88 м² (2 эт.)
Прачечная
4,38 м² (2 эт.)
Ванная
11,61 м² (2 эт.)
Комната 6
18,63 м² (2 эт.)
Комната 7
22,55 м² (2 эт.)
Гардероб
4,68 м² (2 эт.)
Гардероб
4,13 м² (2 эт.)
планировка
все характеристики
все характеристики
жилой дом
Общая площадь
302.78 м²
1 Этаж площадь
172,37 м²
Прихожая
6,60 м²
Коридор
7,36 м²
Гостиная-столовая
39,53 м²
Кухня
13,10 м²
Кладовая
3,46 м²
С/у
3,08 м²
Техническое помещение
4,12 м²
Комната 1
12,25 м²
Кладовая
4,98 м²
Комната 2
13,46 м²
Коридор
15,46 м²
С/у
2,24 м²
Прачечная
8,39 м²
Гараж
38,34 м²
2 Этаж площадь
130,41 м²
Коридор
16,35 м² (2 эт.)
Комната 3
20,20 м² (2 эт.)
Комната 4
14 м² (2 эт.)
Комната 5
13,88 м² (2 эт.)
Прачечная
4,38 м² (2 эт.)
Ванная
11,61 м² (2 эт.)
Комната 6
18,63 м² (2 эт.)
Комната 7
22,55 м² (2 эт.)
Гардероб
4,68 м² (2 эт.)
Гардероб
4,13 м² (2 эт.)
экстерьер
Остались вопросы?
Напиши нам.
Наш ведущий инженер свяжется с вами в ближайшее время.
Обязательно к заполнению
Обязательно к заполнению
ДАННЫЕ ПОЛУЧЕНЫ

данные успешно отправлены

Ведущий инженер компании свяжется с вами в ближайшее время.
мы используем файлы cookie
Используя сайт april-dom.ru, Вы соглашаетесь с использованием файлов cookie, которые указаны в Политике обработки Персональных данных.
/projects/a254/