а443
Проект современного одноэтажного дома с плоской крышей, гаражом и террасой.
В отделке фасадов гармонично сочетаются светлый клинкерный кирпич и вертикальные декоративные панели, а венчающий здание белый оштукатуренный карниз придает облику завершенность.
Сочетание плоской кровли, панорамного остекления и премиальных материалов создает актуальный, «вне времени», облик.
В отделке фасадов гармонично сочетаются светлый клинкерный кирпич и вертикальные декоративные панели, а венчающий здание белый оштукатуренный карниз придает облику завершенность.
Сочетание плоской кровли, панорамного остекления и премиальных материалов создает актуальный, «вне времени», облик.
о проекте
Проект является современным решением для семьи, которая ценит лаконичный дизайн, логику в пространстве и стремится к комфорту одноэтажного проживания.
ЭТАЖНОСТЬ
1
ПЛОЩАДЬ
260.22 м²
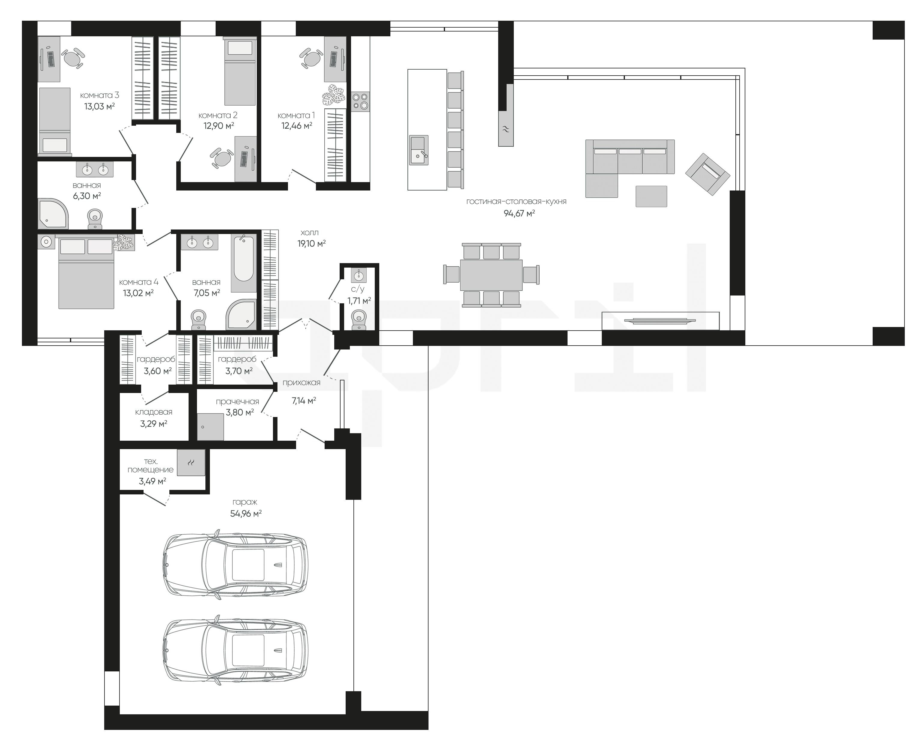
ПАРАМЕТРЫ ПРОЕКТА
260.22 м²
Общая площадь
260.22 м²
Прихожая
7,14 м²
Холл
19,10 м²
С/у
1,71 м²
Гостиная-столовая-кухня
94,67 м²
Комната 1
12,46 м²
Комната 2
12,90 м²
Комната 3
13,03 м²
Ванная
6,30 м²
Остались вопросы?
Напиши нам.
Напиши нам.
Наш ведущий инженер свяжется с вами в ближайшее время.
ДАННЫЕ ПОЛУЧЕНЫ
данные успешно отправлены
Ведущий инженер компании свяжется с вами в ближайшее время.
Дома 1 этаж
Дома 2 этажа
Дома 1 этаж с гаражом
Дома 120 м2
Дома 150 м2
Дома 2 этажа с гаражом
Дома 200 м2
Дома 250 м2
Дома 3 этажа
Дома в скандинавском стиле
Дома в стиле райта
Дома в стиле хайтек
Дома до 100 м2
Дома с гаражом
Дома с мансардой
Дома с сауной
Дома 1 этаж с гаражом и террасой
Дома 1 этаж с террасой
Дома в стиле барнхаус
Дома в стиле шале
Дома из газобетона
Дома из газобетона 1 этаж
Дома из камня
Дома из керамических блоков
Дома из кирпича
Дома из пеноблоков
Дома с зимним садом
Дома с подвалом
Дома с террасой
Дома с цокольным этажом
Фахверковые дома
Дома с бассейном