а242
Проект двухэтажного дома с плоской крышей в современном стиле Хайтек.
Комбинация текстурных материалов, таких как деревесина, штукатурка и глянцевые фасадные плиты создали интересный и уникальный внешний вид.
Закрытая терраса предусмотрена для максимального комфорта, защищая от непогоды и предоставляя пространство для отдыха.
Комбинация текстурных материалов, таких как деревесина, штукатурка и глянцевые фасадные плиты создали интересный и уникальный внешний вид.
Закрытая терраса предусмотрена для максимального комфорта, защищая от непогоды и предоставляя пространство для отдыха.
о проекте
Проект двухэтажного дома с гаражом на две машины – продуманное и функциональное пространство для семьи 2+2.
ЭТАЖНОСТЬ
2
ПЛОЩАДЬ
240.74 м²
ПАРАМЕТРЫ ПРОЕКТА
240.74 м²
Общая площадь
240.74 м²
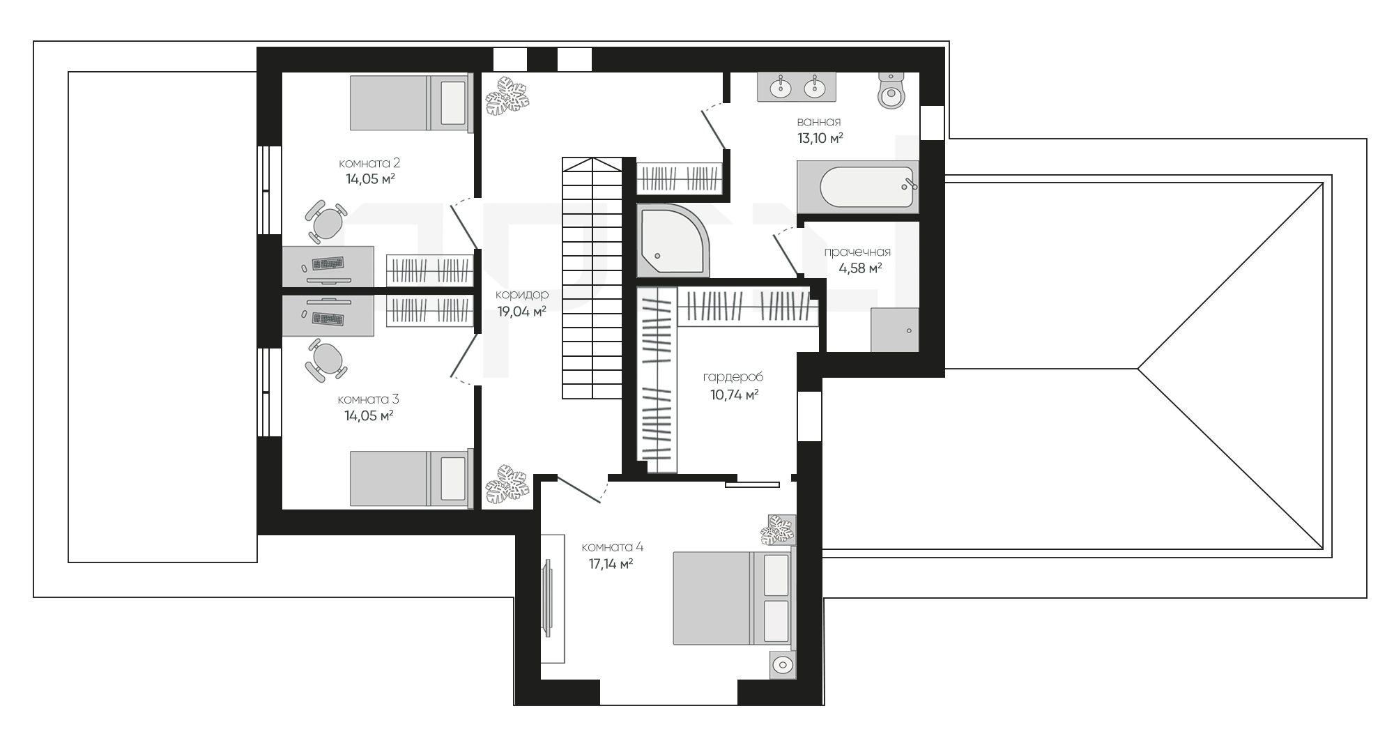
1 Этаж площадь
148,04 м²
Прихожая
10,75 м²
Коридор
7,42 м²
Гостиная-столовая
43,96 м²
Кухня
14,48 м²
Комната 1
11,66 м²
С/у
5,03 м²
Техническое помещение
7,92 м²
Остались вопросы?
Напиши нам.
Напиши нам.
Наш ведущий инженер свяжется с вами в ближайшее время.
ДАННЫЕ ПОЛУЧЕНЫ
данные успешно отправлены
Ведущий инженер компании свяжется с вами в ближайшее время.
Дома 1 этаж
Дома 2 этажа
Дома 1 этаж с гаражом
Дома 120 м2
Дома 150 м2
Дома 2 этажа с гаражом
Дома 200 м2
Дома 250 м2
Дома 3 этажа
Дома в скандинавском стиле
Дома в стиле райта
Дома в стиле хайтек
Дома до 100 м2
Дома с гаражом
Дома с мансардой
Дома с сауной
Дома 1 этаж с гаражом и террасой
Дома 1 этаж с террасой
Дома в стиле барнхаус
Дома в стиле шале
Дома из газобетона
Дома из газобетона 1 этаж
Дома из камня
Дома из керамических блоков
Дома из кирпича
Дома из пеноблоков
Дома с зимним садом
Дома с подвалом
Дома с террасой
Дома с цокольным этажом
Фахверковые дома
Дома с бассейном