о проекте

Проект двухэтажного дома в современном стиле хайтек с гаражом и террасой. Его элегантный внешний вид и уютный интерьер неизбежно привлекут внимание и восхищение. Внутреннее пространство четко разделено на функциональные зоны.

ЭТАЖНОСТЬ
2
ПЛОЩАДЬ
249.35 м²
1
этаж
2
этаж
ПАРАМЕТРЫ ПРОЕКТА
249.35 м²
Общая площадь
249.35 м²
1 Этаж площадь
152,73 м²
Прихожая
3,86 м²
Гардероб
4 м²
Техническое помещение
6,56 м²
Коридор
19,50 м²
Ванная комната
4,24 м²
Гостиная+столовая
43,46 м²
Кухня
15,05 м²
1 этаж
2 этаж
все характеристики
жилой дом
Общая площадь
249.35 м²
1 Этаж площадь
152,73 м²
Прихожая
3,86 м²
Гардероб
4 м²
Техническое помещение
6,56 м²
Коридор
19,50 м²
Ванная комната
4,24 м²
Гостиная+столовая
43,46 м²
Кухня
15,05 м²
Кладовая
3,56 м²
Комната 1
12 м²
Техническое помещение
5,10 м²
Гараж
35,40 м²
Терраса
66,36 м²
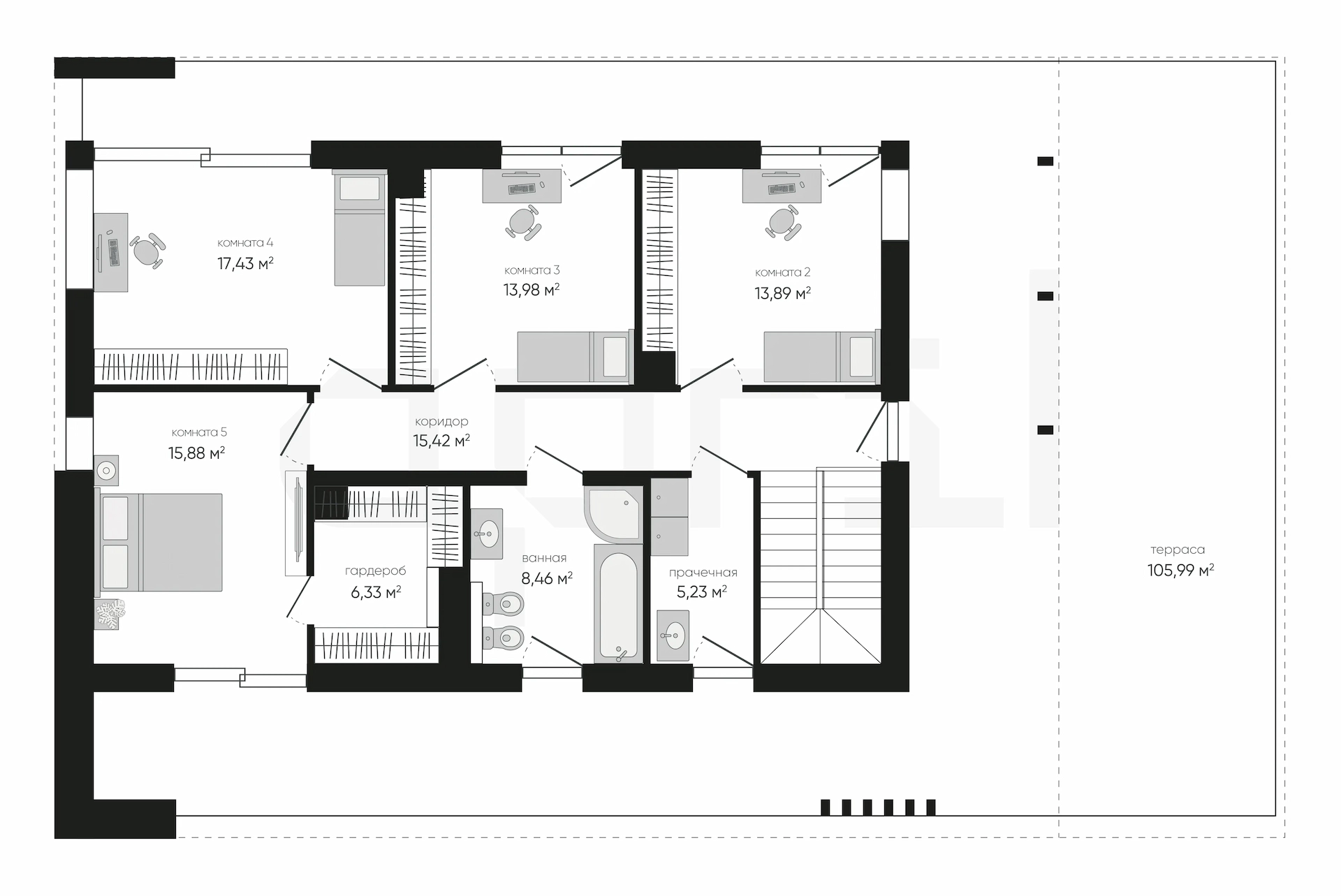
2 Этаж площадь
96,62 м²
Коридор
15,42 м² (2 эт.)
Комната 2
13,89 м² (2 эт.)
Комната 3
13,98 м² (2 эт.)
Комната 4
17,43 м² (2 эт.)
Комната 5
15,88 м² (2 эт.)
Гардероб
6,33 м² (2 эт.)
Ванная комната
8,46 м² (2 эт.)
Прачечная
5,23 м² (2 эт.)
Терраса
105,99 м² (2 эт.)
планировка
все характеристики
все характеристики
жилой дом
Общая площадь
249.35 м²
1 Этаж площадь
152,73 м²
Прихожая
3,86 м²
Гардероб
4 м²
Техническое помещение
6,56 м²
Коридор
19,50 м²
Ванная комната
4,24 м²
Гостиная+столовая
43,46 м²
Кухня
15,05 м²
Кладовая
3,56 м²
Комната 1
12 м²
Техническое помещение
5,10 м²
Гараж
35,40 м²
Терраса
66,36 м²
2 Этаж площадь
96,62 м²
Коридор
15,42 м² (2 эт.)
Комната 2
13,89 м² (2 эт.)
Комната 3
13,98 м² (2 эт.)
Комната 4
17,43 м² (2 эт.)
Комната 5
15,88 м² (2 эт.)
Гардероб
6,33 м² (2 эт.)
Ванная комната
8,46 м² (2 эт.)
Прачечная
5,23 м² (2 эт.)
Терраса
105,99 м² (2 эт.)
экстерьер
гостиная-столовая
Остались вопросы?
Напиши нам.
Наш ведущий инженер свяжется с вами в ближайшее время.
Обязательно к заполнению
Обязательно к заполнению
ДАННЫЕ ПОЛУЧЕНЫ

данные успешно отправлены

Ведущий инженер компании свяжется с вами в ближайшее время.
мы используем файлы cookie
Используя сайт april-dom.ru, Вы соглашаетесь с использованием файлов cookie, которые указаны в Политике обработки Персональных данных.
/projects/a103/