a127
Проект одноэтажного дома с двускатной крышей и террасой.
Крыша дома покрыта металлическими листами серого цвета. Фасад дома покрыт белой штукатуркой с элементами серой штукатурки вокруг окон, входной двери и террасы. Дом имеет несколько больших окон, рамы которых, также как и входная дверь выполнены в черном цвете, создавая контраст со светлыми стенами.
Крыша дома покрыта металлическими листами серого цвета. Фасад дома покрыт белой штукатуркой с элементами серой штукатурки вокруг окон, входной двери и террасы. Дом имеет несколько больших окон, рамы которых, также как и входная дверь выполнены в черном цвете, создавая контраст со светлыми стенами.
о проекте
Отсутствие лишних деталей и украшений придает дому лаконичность и элегантность. Благодаря чистым линиям и простым формам такой дом выглядит аккуратно и ухоженно.
ЭТАЖНОСТЬ
1
ПЛОЩАДЬ
118.62 м²
ПАРАМЕТРЫ ПРОЕКТА
118.62 м²
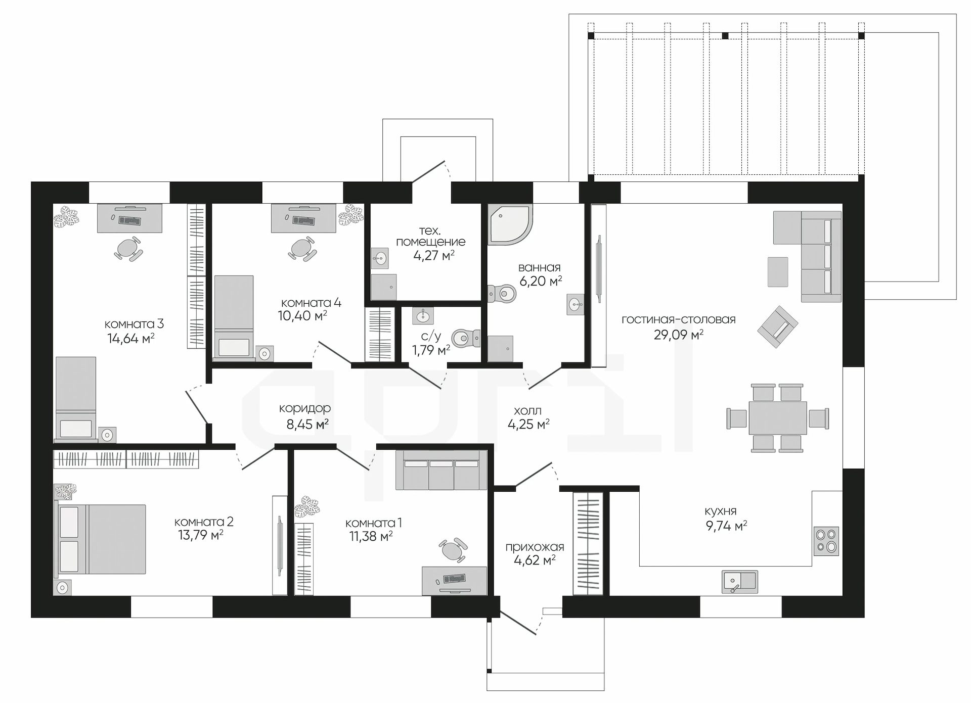
Общая площадь
118.62 м²
Прихожая
4,62 м²
Холл
4,25 м²
Гостиная+столовая
29,09 м²
Кухня
9,74 м²
Коридор
8,45 м²
Комната 1
11,38 м²
Комната 2
13,79 м²
Комната 3
14,64 м²
Остались вопросы?
Напиши нам.
Напиши нам.
Наш ведущий инженер свяжется с вами в ближайшее время.
ДАННЫЕ ПОЛУЧЕНЫ
данные успешно отправлены
Ведущий инженер компании свяжется с вами в ближайшее время.
Дома 1 этаж
Дома 2 этажа
Дома 1 этаж с гаражом
Дома 120 м2
Дома 150 м2
Дома 2 этажа с гаражом
Дома 200 м2
Дома 250 м2
Дома 3 этажа
Дома в скандинавском стиле
Дома в стиле райта
Дома в стиле хайтек
Дома до 100 м2
Дома с гаражом
Дома с мансардой
Дома с сауной
Дома 1 этаж с гаражом и террасой
Дома 1 этаж с террасой
Дома в стиле барнхаус
Дома в стиле шале
Дома из газобетона
Дома из газобетона 1 этаж
Дома из камня
Дома из керамических блоков
Дома из кирпича
Дома из пеноблоков
Дома с зимним садом
Дома с подвалом
Дома с террасой
Дома с цокольным этажом
Фахверковые дома
Дома с бассейном