о проекте

Дом имеет строгие геометрические формы, плоскую крышу и чистые линии, что является отличительной чертой современного минимализма.

ЭТАЖНОСТЬ
2
ПЛОЩАДЬ
284.20 м²
1
этаж
2
этаж
ПАРАМЕТРЫ ПРОЕКТА
284.20 м²
Общая площадь
284.20 м²
1 Этаж площадь
179,40 м²
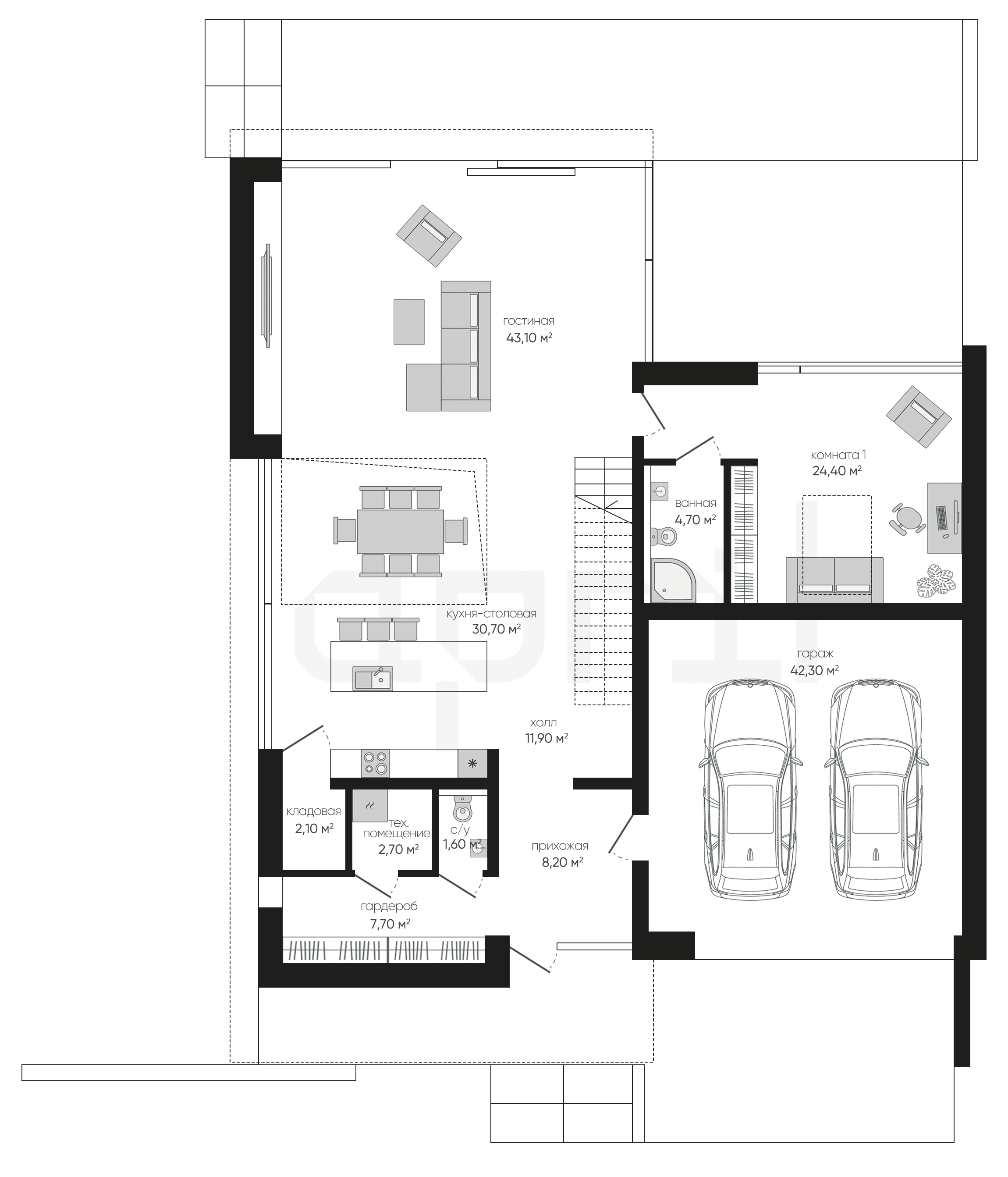
Прихожая
8,20 м²
Гардероб
7,70 м²
С/у
1,60 м²
Техническое помещение
2,70 м²
Холл
11,90 м²
Гостиная
43,10 м²
Кухня-столовая
30,70 м²
1 этаж
2 этаж
все характеристики
жилой дом
Общая площадь
284.20 м²
1 Этаж площадь
179,40 м²
Прихожая
8,20 м²
Гардероб
7,70 м²
С/у
1,60 м²
Техническое помещение
2,70 м²
Холл
11,90 м²
Гостиная
43,10 м²
Кухня-столовая
30,70 м²
Кладовая
2,10 м²
Комната 1
24,40 м²
Ванная
4,70 м²
Гараж
42,30 м²
2 Этаж площадь
104,80 м²
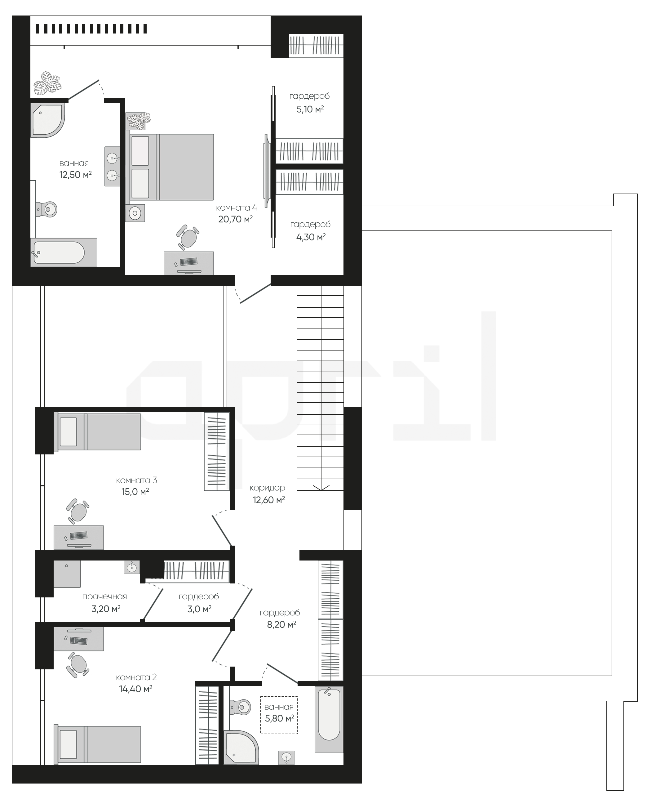
Коридор
12,60 м² (2 эт.)
Гардероб
8,20 м² (2 эт.)
Ванная
5,80 м² (2 эт.)
Комната 2
14,40 м² (2 эт.)
Гардероб
3 м² (2 эт.)
Прачечная
3,20 м² (2 эт.)
Комната 3
15 м² (2 эт.)
Комната 4
20,70 м² (2 эт.)
Ванная
12,50 м² (2 эт.)
Гардероб
5,10 м² (2 эт.)
Гардероб
4,30 м² (2 эт.)
планировка
все характеристики
все характеристики
жилой дом
Общая площадь
284.20 м²
1 Этаж площадь
179,40 м²
Прихожая
8,20 м²
Гардероб
7,70 м²
С/у
1,60 м²
Техническое помещение
2,70 м²
Холл
11,90 м²
Гостиная
43,10 м²
Кухня-столовая
30,70 м²
Кладовая
2,10 м²
Комната 1
24,40 м²
Ванная
4,70 м²
Гараж
42,30 м²
2 Этаж площадь
104,80 м²
Коридор
12,60 м² (2 эт.)
Гардероб
8,20 м² (2 эт.)
Ванная
5,80 м² (2 эт.)
Комната 2
14,40 м² (2 эт.)
Гардероб
3 м² (2 эт.)
Прачечная
3,20 м² (2 эт.)
Комната 3
15 м² (2 эт.)
Комната 4
20,70 м² (2 эт.)
Ванная
12,50 м² (2 эт.)
Гардероб
5,10 м² (2 эт.)
Гардероб
4,30 м² (2 эт.)
экстерьер
гостиная-столовая
Остались вопросы?
Напиши нам.
Наш ведущий инженер свяжется с вами в ближайшее время.
Обязательно к заполнению
Обязательно к заполнению
ДАННЫЕ ПОЛУЧЕНЫ

данные успешно отправлены

Ведущий инженер компании свяжется с вами в ближайшее время.
мы используем файлы cookie
Используя сайт april-dom.ru, Вы соглашаетесь с использованием файлов cookie, которые указаны в Политике обработки Персональных данных.
/projects/a368/