о проекте

Простая форма дома была дополнена беседкой со стороны сада, благодаря чему проект получил представительную зону отдыха на террасе. В этом проекте есть гараж на две машины.

ЭТАЖНОСТЬ
2
ПЛОЩАДЬ
216.72 м²
1
этаж
2
этаж
ПАРАМЕТРЫ ПРОЕКТА
216.72 м²
Общая площадь
216.72 м²
1 Этаж площадь
125,14 м²
Прихожая
7,82 м²
С/у
2,40 м²
Гостиная-столовая
44,75 м²
Кухня
16,50 м²
Комната 1
12,13 м²
Техническое помещение
4,21 м²
Гараж
37,33 м²
1 этаж
2 этаж
все характеристики
жилой дом
Общая площадь
216.72 м²
1 Этаж площадь
125,14 м²
Прихожая
7,82 м²
С/у
2,40 м²
Гостиная-столовая
44,75 м²
Кухня
16,50 м²
Комната 1
12,13 м²
Техническое помещение
4,21 м²
Гараж
37,33 м²
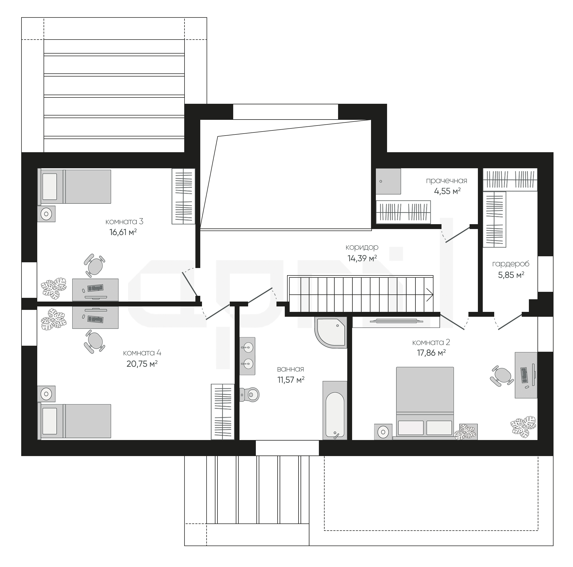
2 Этаж площадь
91,58 м²
Коридор
14,39 м² (2 эт.)
Прачечная
4,55 м² (2 эт.)
Комната 2
17,86 м² (2 эт.)
Гардероб
5,85 м² (2 эт.)
Ванная
11,57 м² (2 эт.)
Комната 3
16,61 м² (2 эт.)
Комната 4
20,75 м² (2 эт.)
планировка
все характеристики
все характеристики
жилой дом
Общая площадь
216.72 м²
1 Этаж площадь
125,14 м²
Прихожая
7,82 м²
С/у
2,40 м²
Гостиная-столовая
44,75 м²
Кухня
16,50 м²
Комната 1
12,13 м²
Техническое помещение
4,21 м²
Гараж
37,33 м²
2 Этаж площадь
91,58 м²
Коридор
14,39 м² (2 эт.)
Прачечная
4,55 м² (2 эт.)
Комната 2
17,86 м² (2 эт.)
Гардероб
5,85 м² (2 эт.)
Ванная
11,57 м² (2 эт.)
Комната 3
16,61 м² (2 эт.)
Комната 4
20,75 м² (2 эт.)
экстерьер
Остались вопросы?
Напиши нам.
Наш ведущий инженер свяжется с вами в ближайшее время.
Обязательно к заполнению
Обязательно к заполнению
ДАННЫЕ ПОЛУЧЕНЫ

данные успешно отправлены

Ведущий инженер компании свяжется с вами в ближайшее время.
мы используем файлы cookie
Используя сайт april-dom.ru, Вы соглашаетесь с использованием файлов cookie, которые указаны в Политике обработки Персональных данных.
/projects/a217/