о проекте

Дом выглядит чрезвычайно современным и просторным, что обусловлено, в том числе, большими окнами и антресолью.

ЭТАЖНОСТЬ
2
ПЛОЩАДЬ
164.68 м²
1
этаж
2
этаж
ПАРАМЕТРЫ ПРОЕКТА
164.68 м²
Общая площадь
164.68 м²
1 Этаж площадь
104,33 м²
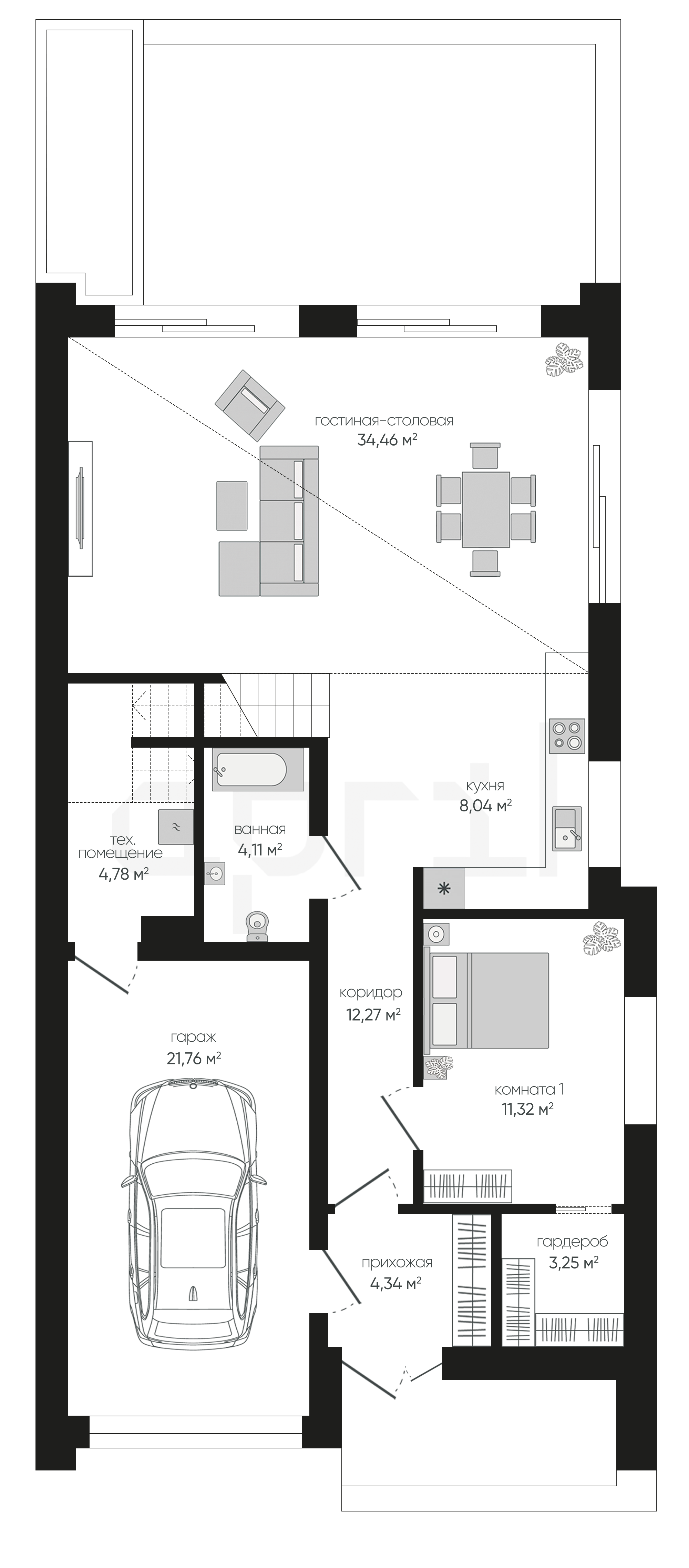
Прихожая
4,34 м²
Коридор
12,27 м²
Гостиная-столовая
34,46 м²
Кухня
8,04 м²
Ванная
4,11 м²
Комната 1
11,32 м²
Гардероб
3,25 м²
1 этаж
2 этаж
все характеристики
жилой дом
Общая площадь
164.68 м²
1 Этаж площадь
104,33 м²
Прихожая
4,34 м²
Коридор
12,27 м²
Гостиная-столовая
34,46 м²
Кухня
8,04 м²
Ванная
4,11 м²
Комната 1
11,32 м²
Гардероб
3,25 м²
Техническое помещение
4,78 м²
Гараж
21,76 м²
2 Этаж площадь
60,35 м²
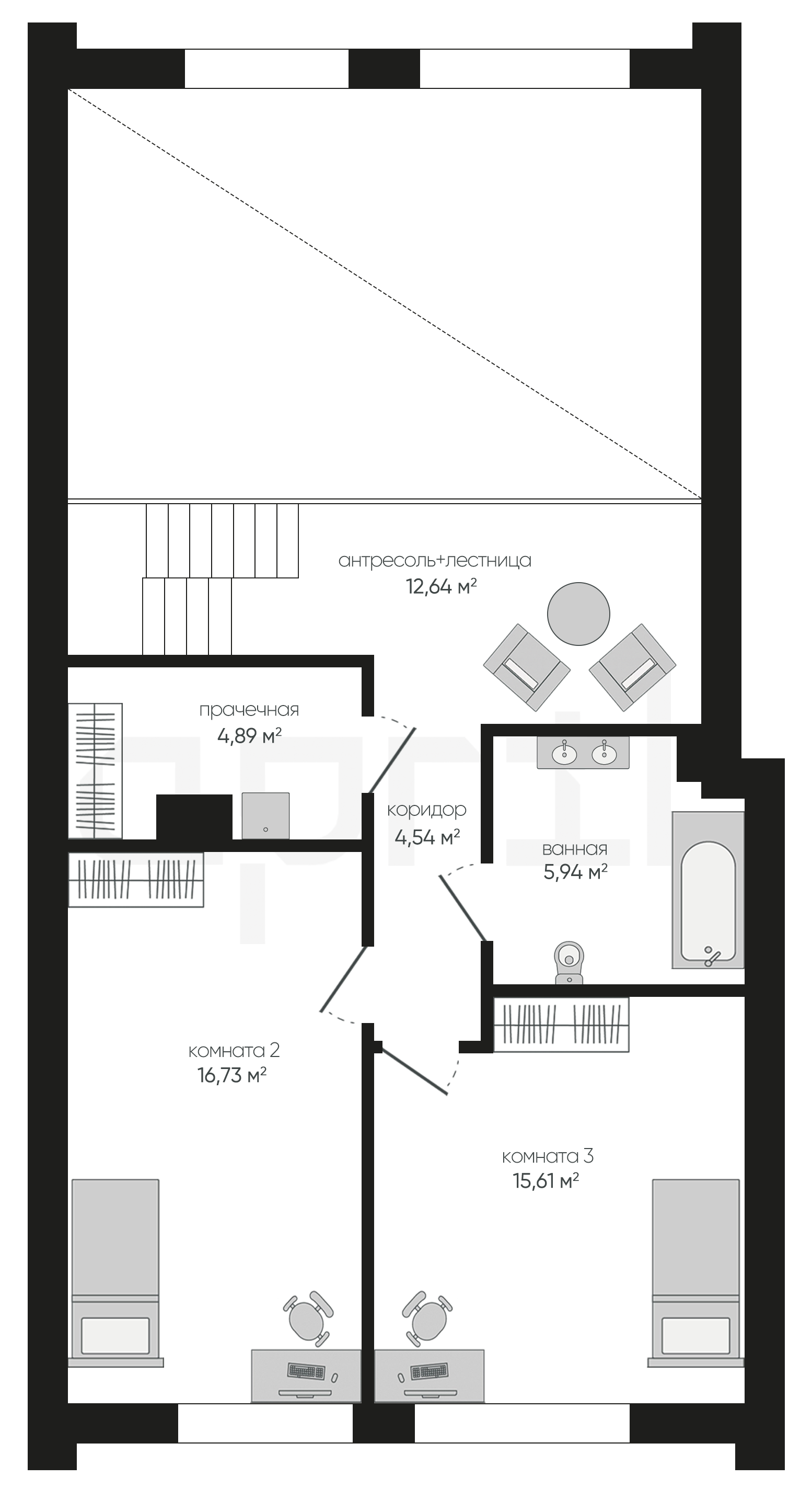
Антресоль+лестница
12,64 м² (2 эт.)
Коридор
4,54 м² (2 эт.)
Прачечная
4,89 м² (2 эт.)
Комната 2
16,73 м² (2 эт.)
Комната 3
15,61 м² (2 эт.)
Ванная
5,94 м² (2 эт.)
планировка
все характеристики
все характеристики
жилой дом
Общая площадь
164.68 м²
1 Этаж площадь
104,33 м²
Прихожая
4,34 м²
Коридор
12,27 м²
Гостиная-столовая
34,46 м²
Кухня
8,04 м²
Ванная
4,11 м²
Комната 1
11,32 м²
Гардероб
3,25 м²
Техническое помещение
4,78 м²
Гараж
21,76 м²
2 Этаж площадь
60,35 м²
Антресоль+лестница
12,64 м² (2 эт.)
Коридор
4,54 м² (2 эт.)
Прачечная
4,89 м² (2 эт.)
Комната 2
16,73 м² (2 эт.)
Комната 3
15,61 м² (2 эт.)
Ванная
5,94 м² (2 эт.)
экстерьер
Остались вопросы?
Напиши нам.
Наш ведущий инженер свяжется с вами в ближайшее время.
Обязательно к заполнению
Обязательно к заполнению
ДАННЫЕ ПОЛУЧЕНЫ

данные успешно отправлены

Ведущий инженер компании свяжется с вами в ближайшее время.
мы используем файлы cookie
Используя сайт april-dom.ru, Вы соглашаетесь с использованием файлов cookie, которые указаны в Политике обработки Персональных данных.
/projects/a213/