о проекте

Дом имеет оригинальную форму в сочетании с продуманной функциональной планировкой.

ЭТАЖНОСТЬ
2
ПЛОЩАДЬ
225.69 м²
1
этаж
2
этаж
ПАРАМЕТРЫ ПРОЕКТА
225.69 м²
Общая площадь
225.69 м²
1 Этаж площадь
152,60 м²
Прихожая
5,12 м²
Коридор
6,14 м²
Гостиная-столовая
44,21 м²
Кухня
15,24 м²
Кладовая
2,41 м²
С/у
4,48 м²
Комната 1
12,78 м²
1 этаж
2 этаж
все характеристики
жилой дом
Общая площадь
225.69 м²
1 Этаж площадь
152,60 м²
Прихожая
5,12 м²
Коридор
6,14 м²
Гостиная-столовая
44,21 м²
Кухня
15,24 м²
Кладовая
2,41 м²
С/у
4,48 м²
Комната 1
12,78 м²
Лестница
5,32 м²
Техническое помещение
14,86 м²
Техническое помещение
4,14 м²
Гараж
37,90
Терраса
35,65
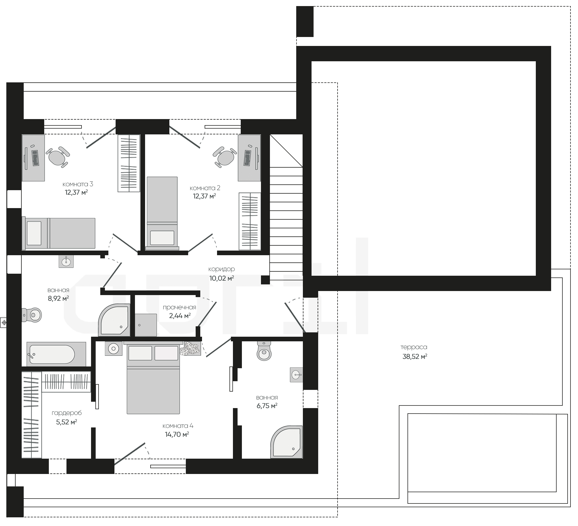
2 Этаж площадь
73,09 м²
Коридор
10,02 м² (2 эт.)
Комната 2
12,37 м² (2 эт.)
Комната 3
12,37 м² (2 эт.)
Ванная
8,92 м² (2 эт.)
Прачечная
2,44 м² (2 эт.)
Комната 4
14,70 м² (2 эт.)
Гардероб
5,52 м² (2 эт.)
Ванная
6,75 м² (2 эт.)
Терраса
38,52 м² (2 эт.)
планировка
все характеристики
все характеристики
жилой дом
Общая площадь
225.69 м²
1 Этаж площадь
152,60 м²
Прихожая
5,12 м²
Коридор
6,14 м²
Гостиная-столовая
44,21 м²
Кухня
15,24 м²
Кладовая
2,41 м²
С/у
4,48 м²
Комната 1
12,78 м²
Лестница
5,32 м²
Техническое помещение
14,86 м²
Техническое помещение
4,14 м²
Гараж
37,90
Терраса
35,65
2 Этаж площадь
73,09 м²
Коридор
10,02 м² (2 эт.)
Комната 2
12,37 м² (2 эт.)
Комната 3
12,37 м² (2 эт.)
Ванная
8,92 м² (2 эт.)
Прачечная
2,44 м² (2 эт.)
Комната 4
14,70 м² (2 эт.)
Гардероб
5,52 м² (2 эт.)
Ванная
6,75 м² (2 эт.)
Терраса
38,52 м² (2 эт.)
экстерьер
Остались вопросы?
Напиши нам.
Наш ведущий инженер свяжется с вами в ближайшее время.
Обязательно к заполнению
Обязательно к заполнению
ДАННЫЕ ПОЛУЧЕНЫ

данные успешно отправлены

Ведущий инженер компании свяжется с вами в ближайшее время.
мы используем файлы cookie
Используя сайт april-dom.ru, Вы соглашаетесь с использованием файлов cookie, которые указаны в Политике обработки Персональных данных.
/projects/a196/