о проекте

Двухэтажный стильный дом на две семьи с гаражом на две машины и навесом был спроектирован с учетом комфорта жильцов. В доме две независимые квартиры с отдельными входами.

ЭТАЖНОСТЬ
2
ПЛОЩАДЬ
225.42 м²
1
этаж
2
этаж
ПАРАМЕТРЫ ПРОЕКТА
225.42 м²
Общая площадь
225.42 м²
1 Этаж площадь
113,24 м²
Левая часть дома площадь
110,38 м²
Прихожая
6,60 м²
Гостиная-столовая
29,28 м²
Кухня
10,02 м²
С/у
3,27 м²
Комната 1
12,57 м²
Техническое помещение
4,71 м²
1 этаж
2 этаж
все характеристики
жилой дом
Общая площадь
225.42 м²
1 Этаж площадь
113,24 м²
Левая часть дома площадь
110,38 м²
Прихожая
6,60 м²
Гостиная-столовая
29,28 м²
Кухня
10,02 м²
С/у
3,27 м²
Комната 1
12,57 м²
Техническое помещение
4,71 м²
Гараж
43,93 м²
Правая часть дома площадь
2,86 м²
Прихожая
2,86 м²
2 Этаж площадь
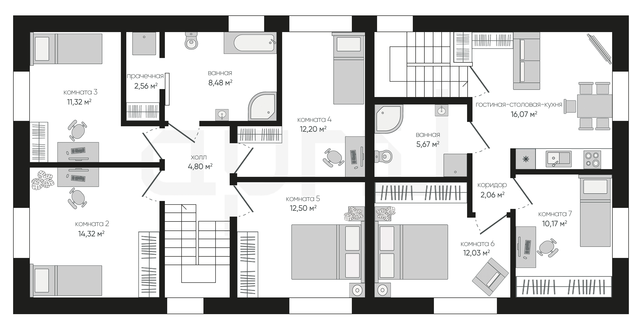
112,18 м²
Левая часть дома площадь
66,18 м² (2 эт.)
Холл
4,80 м² (2 эт.)
Комната 2
14,32 м² (2 эт.)
Комната 3
11,32 м² (2 эт.)
Ванная
8,48 м² (2 эт.)
Прачечная
2,56 м² (2 эт.)
Комната 4
12,20 м² (2 эт.)
Комната 5
12,50 м² (2 эт.)
Правая часть дома площадь
46 м² (2 эт.)
Гостиная-столовая-кухня
16,07 м² (2 эт.)
Ванная
5,67 м² (2 эт.)
Коридор
2,06 м² (2 эт.)
Комната 6
12,03 м² (2 эт.)
Комната 7
10,17 м² (2 эт.)
планировка
все характеристики
все характеристики
жилой дом
Общая площадь
225.42 м²
1 Этаж площадь
113,24 м²
Левая часть дома площадь
110,38 м²
Прихожая
6,60 м²
Гостиная-столовая
29,28 м²
Кухня
10,02 м²
С/у
3,27 м²
Комната 1
12,57 м²
Техническое помещение
4,71 м²
Гараж
43,93 м²
Правая часть дома площадь
2,86 м²
Прихожая
2,86 м²
2 Этаж площадь
112,18 м²
Левая часть дома площадь
66,18 м² (2 эт.)
Холл
4,80 м² (2 эт.)
Комната 2
14,32 м² (2 эт.)
Комната 3
11,32 м² (2 эт.)
Ванная
8,48 м² (2 эт.)
Прачечная
2,56 м² (2 эт.)
Комната 4
12,20 м² (2 эт.)
Комната 5
12,50 м² (2 эт.)
Правая часть дома площадь
46 м² (2 эт.)
Гостиная-столовая-кухня
16,07 м² (2 эт.)
Ванная
5,67 м² (2 эт.)
Коридор
2,06 м² (2 эт.)
Комната 6
12,03 м² (2 эт.)
Комната 7
10,17 м² (2 эт.)
экстерьер
Остались вопросы?
Напиши нам.
Наш ведущий инженер свяжется с вами в ближайшее время.
Обязательно к заполнению
Обязательно к заполнению
ДАННЫЕ ПОЛУЧЕНЫ

данные успешно отправлены

Ведущий инженер компании свяжется с вами в ближайшее время.
мы используем файлы cookie
Используя сайт april-dom.ru, Вы соглашаетесь с использованием файлов cookie, которые указаны в Политике обработки Персональных данных.
/projects/a312/