о проекте

Проект представляет собой двухэтажный дом прямоугольной формы с террасой и гаражом на две машины. Продуманная и четко разделенная планировка на зоны помогла улучшить организацию пространства, обеспечить комфорт и уют в доме, а также создать гармоничный интерьерный дизайн.

ЭТАЖНОСТЬ
2
ПЛОЩАДЬ
177.19 м²
1
этаж
2
этаж
ПАРАМЕТРЫ ПРОЕКТА
177.19 м²
Общая площадь
177.19 м²
1 Этаж площадь
106,36 м²
Прихожая
3,60 м²
Гардероб
4,74 м²
Прачечная
3,25 м²
Ванная комната
2,50 м²
Гостиная+столовая
30,47 м²
Кухня
8,53 м²
Кладовая
1,73 м²
1 этаж
2 этаж
все характеристики
жилой дом
Общая площадь
177.19 м²
1 Этаж площадь
106,36 м²
Прихожая
3,60 м²
Гардероб
4,74 м²
Прачечная
3,25 м²
Ванная комната
2,50 м²
Гостиная+столовая
30,47 м²
Кухня
8,53 м²
Кладовая
1,73 м²
Комната 1
9,49 м²
Техническое помещение
4,52 м²
Гараж
37,53 м²
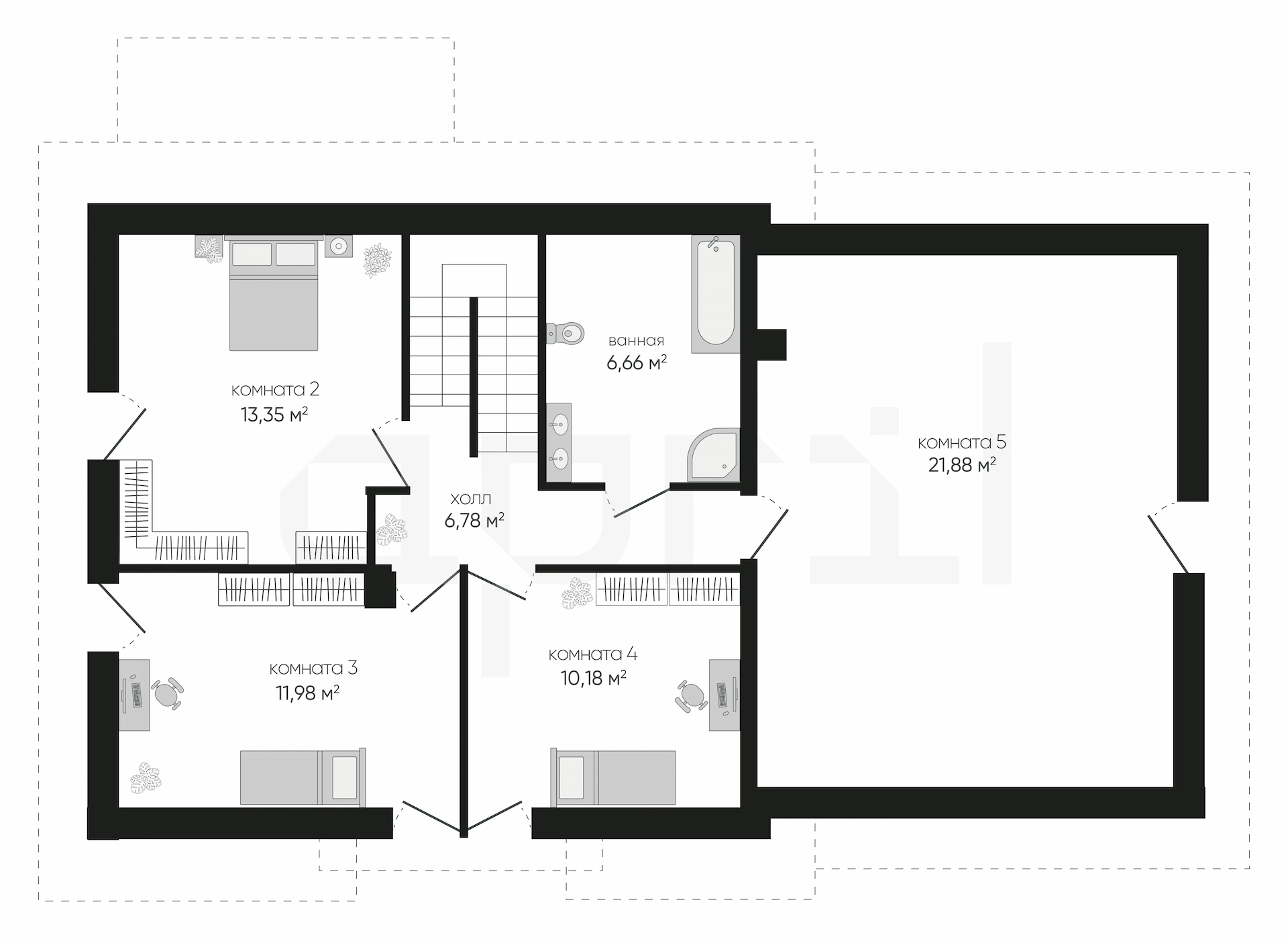
2 Этаж площадь
70,83 м²
Холл
6,78 м² (2 эт.)
Комната 2
13,35 м² (2 эт.)
Комната 3
11,98 м² (2 эт.)
Комната 4
10,18 м² (2 эт.)
Комната 5
21,88 м² (2 эт.)
Ванная комната
6,66 м² (2 эт.)
планировка
все характеристики
все характеристики
жилой дом
Общая площадь
177.19 м²
1 Этаж площадь
106,36 м²
Прихожая
3,60 м²
Гардероб
4,74 м²
Прачечная
3,25 м²
Ванная комната
2,50 м²
Гостиная+столовая
30,47 м²
Кухня
8,53 м²
Кладовая
1,73 м²
Комната 1
9,49 м²
Техническое помещение
4,52 м²
Гараж
37,53 м²
2 Этаж площадь
70,83 м²
Холл
6,78 м² (2 эт.)
Комната 2
13,35 м² (2 эт.)
Комната 3
11,98 м² (2 эт.)
Комната 4
10,18 м² (2 эт.)
Комната 5
21,88 м² (2 эт.)
Ванная комната
6,66 м² (2 эт.)
экстерьер
гостиная
спальня
Остались вопросы?
Напиши нам.
Наш ведущий инженер свяжется с вами в ближайшее время.
Обязательно к заполнению
Обязательно к заполнению
ДАННЫЕ ПОЛУЧЕНЫ

данные успешно отправлены

Ведущий инженер компании свяжется с вами в ближайшее время.
мы используем файлы cookie
Используя сайт april-dom.ru, Вы соглашаетесь с использованием файлов cookie, которые указаны в Политике обработки Персональных данных.
/projects/a78/