а326
Проект современного дома с мансардным этажом и террасой.
Крыша двускатная, покрыта листовым металлом, и оборудована большими мансардными окнами для дополнительного естественного освещения.
Фасад дома комбинирует белую и серую штукатурку с деревянными элементами, что придает тепло и современность общему виду. Впереди дома есть крытая терраса, оформленная деревом, создающая уютный вход.
Крыша двускатная, покрыта листовым металлом, и оборудована большими мансардными окнами для дополнительного естественного освещения.
Фасад дома комбинирует белую и серую штукатурку с деревянными элементами, что придает тепло и современность общему виду. Впереди дома есть крытая терраса, оформленная деревом, создающая уютный вход.
о проекте
Проект дома представляет собой динамичную форму здания, смягченную двускатной крышей. Несмотря на небольшую площадь, дом производит оптическое впечатление гораздо большего здания.
ЭТАЖНОСТЬ
2
ПЛОЩАДЬ
148.44 м²
ПАРАМЕТРЫ ПРОЕКТА
148.44 м²
Общая площадь
148.44 м²
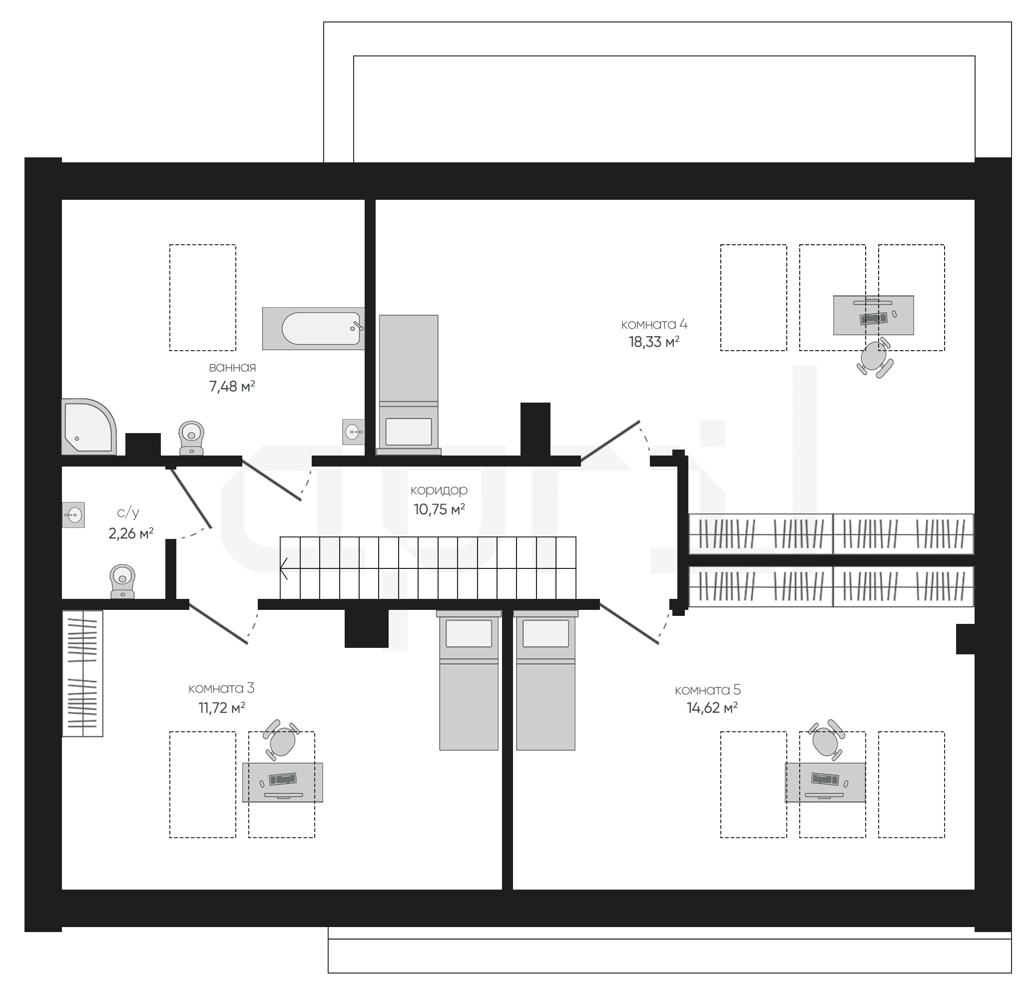
1 Этаж площадь
83,28 м²
Прихожая
5,21 м²
Гостиная-столовая
30 м²
Кухня
6,53 м²
Коридор
4,78 м²
Ванная
7,78 м²
Комната 1
11,22 м²
Комната 2
13,51 м²
Остались вопросы?
Напиши нам.
Напиши нам.
Наш ведущий инженер свяжется с вами в ближайшее время.
ДАННЫЕ ПОЛУЧЕНЫ
данные успешно отправлены
Ведущий инженер компании свяжется с вами в ближайшее время.
Дома 1 этаж
Дома 2 этажа
Дома 1 этаж с гаражом
Дома 120 м2
Дома 150 м2
Дома 2 этажа с гаражом
Дома 200 м2
Дома 250 м2
Дома 3 этажа
Дома в скандинавском стиле
Дома в стиле райта
Дома в стиле хайтек
Дома до 100 м2
Дома с гаражом
Дома с мансардой
Дома с сауной
Дома 1 этаж с гаражом и террасой
Дома 1 этаж с террасой
Дома в стиле барнхаус
Дома в стиле шале
Дома из газобетона
Дома из газобетона 1 этаж
Дома из камня
Дома из керамических блоков
Дома из кирпича
Дома из пеноблоков
Дома с зимним садом
Дома с подвалом
Дома с террасой
Дома с цокольным этажом
Фахверковые дома
Дома с бассейном