а527
Проект компактного дома с мансардой и террасой.
Дом имеет простую прямоугольную форму с двускатной крышей без свесов, что создает лаконичный и современный силуэт.
Главным акцентом проекта является полностью застекленный торцевой фасад, который объединяет внутреннее пространство с окружающим ландшафтом.
Светлое дерево с композитной плиткой на фасадах и фронтоне гармонично сочетается со строгим графитовым металлом, который плавно переходит с кровли на стены.
Дом имеет простую прямоугольную форму с двускатной крышей без свесов, что создает лаконичный и современный силуэт.
Главным акцентом проекта является полностью застекленный торцевой фасад, который объединяет внутреннее пространство с окружающим ландшафтом.
Светлое дерево с композитной плиткой на фасадах и фронтоне гармонично сочетается со строгим графитовым металлом, который плавно переходит с кровли на стены.
о проекте
Проект представляет собой функциональное и продуманное жилое пространство, которое по своим габаритам и комфорту выступает полноценным загородным аналогом современной городской квартиры.
ЭТАЖНОСТЬ
2
ПЛОЩАДЬ
73.85 м²
ПАРАМЕТРЫ ПРОЕКТА
73.85 м²
Общая площадь
73.85 м²
1 Этаж площадь
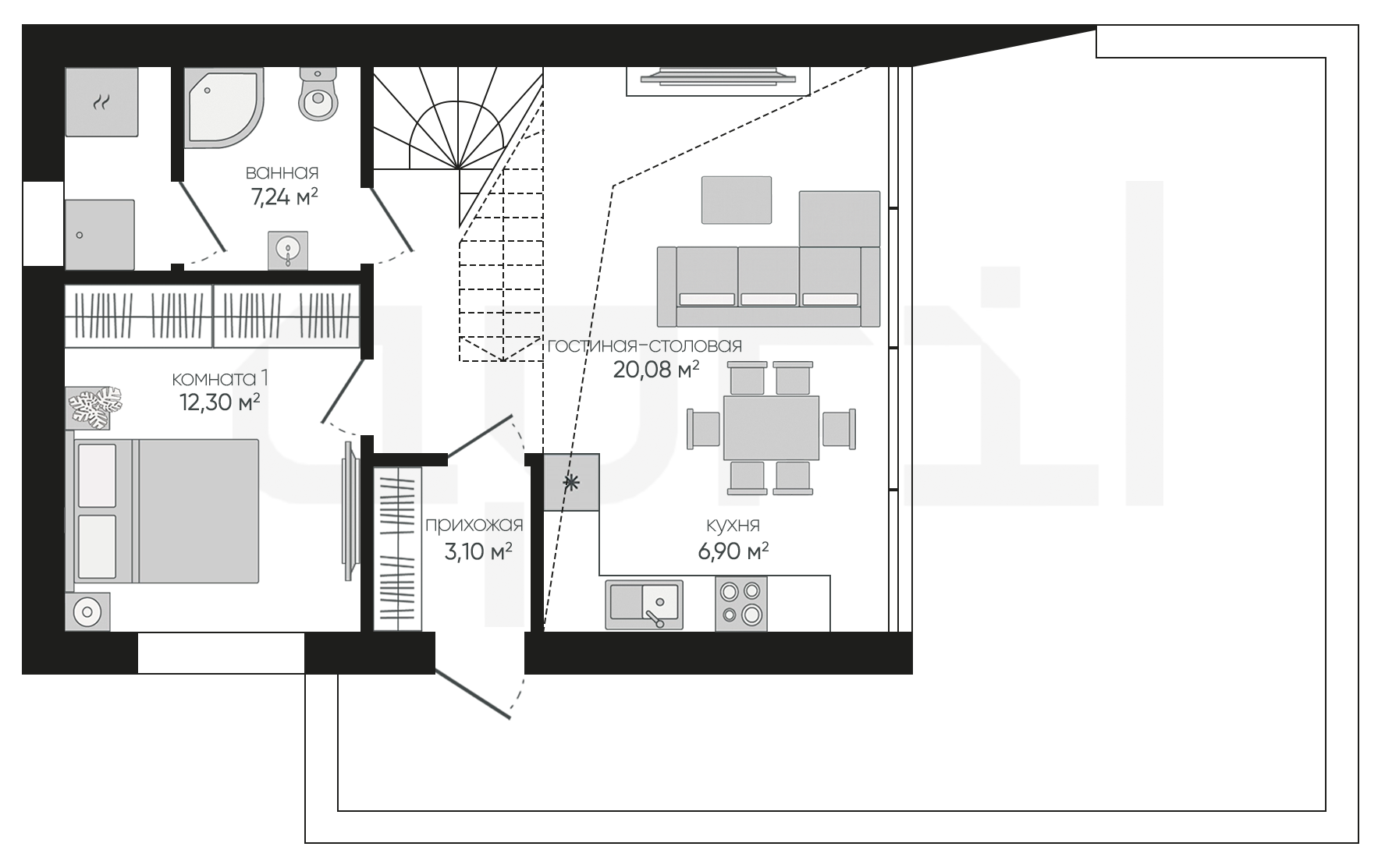
49,62 м²
Прихожая
3,10 м²
Гостиная-столовая
20,08 м²
Кухня
6,90 м²
Ванная
7,24 м²
Комната 1
12,30 м²
2 Этаж площадь
24,23 м²
Комната 2
24,23 м² (2 эт.)
Остались вопросы?
Напиши нам.
Напиши нам.
Наш ведущий инженер свяжется с вами в ближайшее время.
ДАННЫЕ ПОЛУЧЕНЫ
данные успешно отправлены
Ведущий инженер компании свяжется с вами в ближайшее время.
Дома 1 этаж
Дома 2 этажа
Дома 1 этаж с гаражом
Дома 120 м2
Дома 150 м2
Дома 2 этажа с гаражом
Дома 200 м2
Дома 250 м2
Дома 3 этажа
Дома в скандинавском стиле
Дома в стиле райта
Дома в стиле хайтек
Дома до 100 м2
Дома с гаражом
Дома с мансардой
Дома с сауной
Дома 1 этаж с гаражом и террасой
Дома 1 этаж с террасой
Дома в стиле барнхаус
Дома в стиле шале
Дома из газобетона
Дома из газобетона 1 этаж
Дома из камня
Дома из керамических блоков
Дома из кирпича
Дома из пеноблоков
Дома с зимним садом
Дома с подвалом
Дома с террасой
Дома с цокольным этажом
Фахверковые дома
Дома с бассейном