а528
Проект компактного одноэтажного дома с двускатной крышей и террасой.
Лаконичный фасад построен на эффектном контрасте фактур. Основные поверхности отделаны силиконовой штукатуркой холодного белого цвета. Акцентные вставки из крупноформатного керамогранита под бетон придают облику архитектурную выразительность и премиальный вид. Элементы из деревянного планкена завершают образ, добавляя уют и смягчая строгость линий.
Лаконичный фасад построен на эффектном контрасте фактур. Основные поверхности отделаны силиконовой штукатуркой холодного белого цвета. Акцентные вставки из крупноформатного керамогранита под бетон придают облику архитектурную выразительность и премиальный вид. Элементы из деревянного планкена завершают образ, добавляя уют и смягчая строгость линий.
о проекте
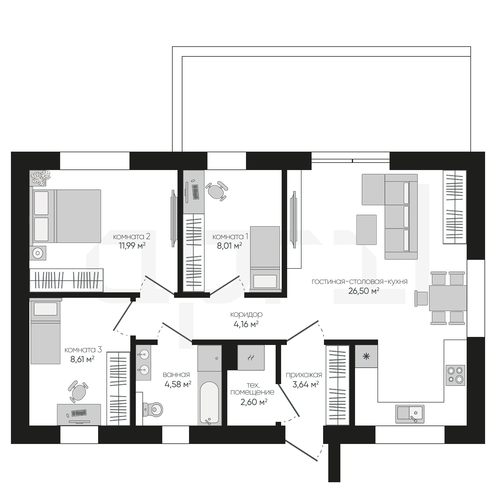
Эргономичная планировка делает проект удобным для узких участков, где важен каждый метр. Дом станет комфортной резиденцией для маленькой семьи или технологичной альтернативой классической даче.
ЭТАЖНОСТЬ
1
ПЛОЩАДЬ
70.09 м²
ПАРАМЕТРЫ ПРОЕКТА
70.09 м²
Общая площадь
70.09 м²
Прихожая
3,64 м²
Коридор
4,16 м²
Гостиная-столовая-кухня
26,50 м²
Комната 1
8,01 м²
Комната 2
11,99 м²
Комната 3
8,61 м²
Ванная
4,58 м²
Техническое помещение
2,60 м²
Остались вопросы?
Напиши нам.
Напиши нам.
Наш ведущий инженер свяжется с вами в ближайшее время.
ДАННЫЕ ПОЛУЧЕНЫ
данные успешно отправлены
Ведущий инженер компании свяжется с вами в ближайшее время.
Дома 1 этаж
Дома 2 этажа
Дома 1 этаж с гаражом
Дома 120 м2
Дома 150 м2
Дома 2 этажа с гаражом
Дома 200 м2
Дома 250 м2
Дома 3 этажа
Дома в скандинавском стиле
Дома в стиле райта
Дома в стиле хайтек
Дома до 100 м2
Дома с гаражом
Дома с мансардой
Дома с сауной
Дома 1 этаж с гаражом и террасой
Дома 1 этаж с террасой
Дома в стиле барнхаус
Дома в стиле шале
Дома из газобетона
Дома из газобетона 1 этаж
Дома из камня
Дома из керамических блоков
Дома из кирпича
Дома из пеноблоков
Дома с зимним садом
Дома с подвалом
Дома с террасой
Дома с цокольным этажом
Фахверковые дома
Дома с бассейном