о проекте

Проект воплощает эстетику минимализма и функциональности. Благодаря большим окнам «в пол» со стороны внутреннего двора, массивное здание кажется легким и наполненным светом.

ЭТАЖНОСТЬ
2
ПЛОЩАДЬ
350.18 м²
1
этаж
2
этаж
ПАРАМЕТРЫ ПРОЕКТА
350.18 м²
Общая площадь
350.18 м²
1 Этаж площадь
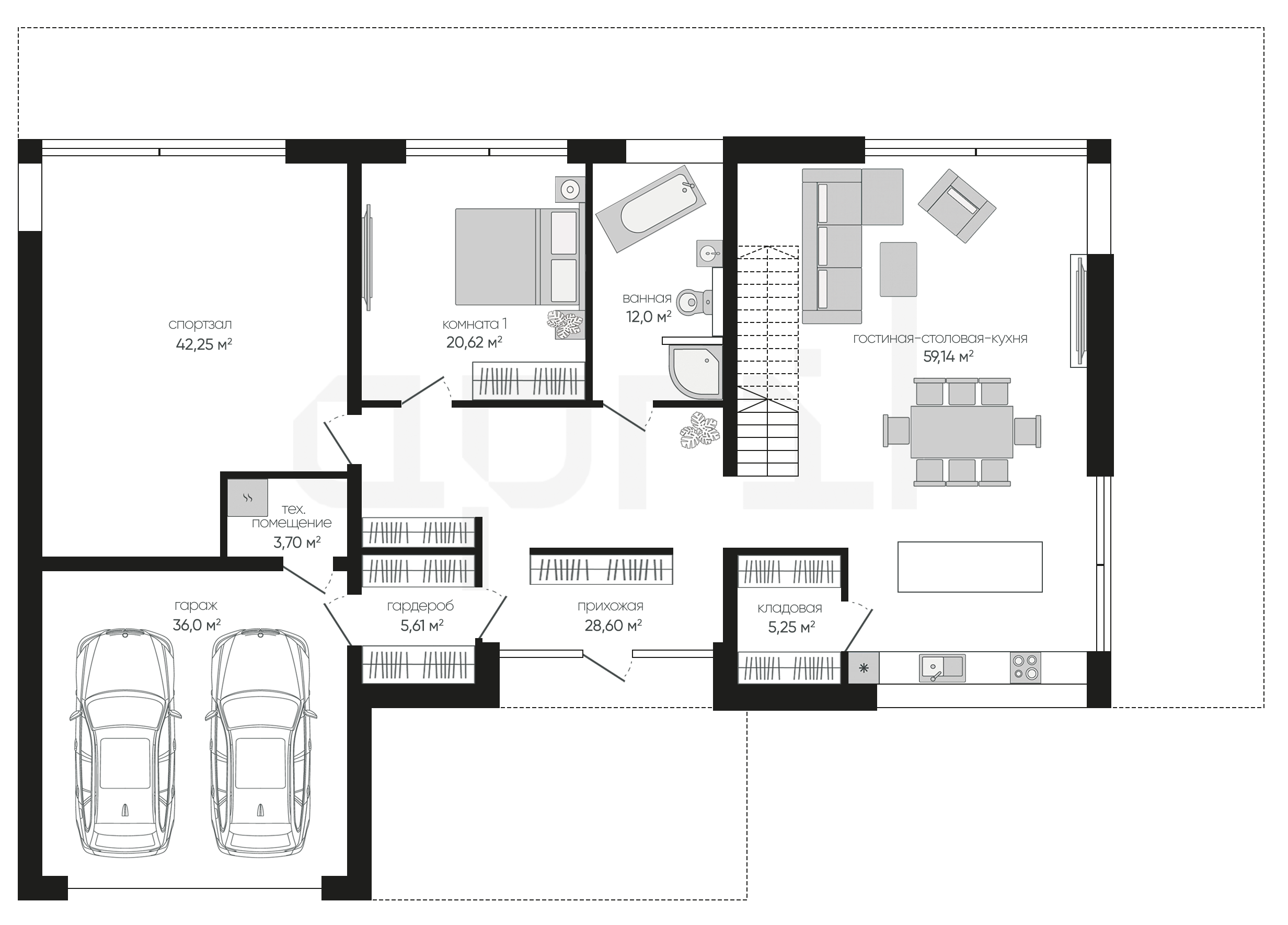
216,17 м²
Прихожая
28,60 м²
Гостиная-столовая-кухня
59,14 м²
Кладовая
5,25 м²
Ванная
12 м²
Комната 1
20,62 м²
Спортзал
45,25 м²
Гардероб
5,61 м²
1 этаж
2 этаж
все характеристики
жилой дом
Общая площадь
350.18 м²
1 Этаж площадь
216,17 м²
Прихожая
28,60 м²
Гостиная-столовая-кухня
59,14 м²
Кладовая
5,25 м²
Ванная
12 м²
Комната 1
20,62 м²
Спортзал
45,25 м²
Гардероб
5,61 м²
Техническое помещение
3,70 м²
Гараж
36 м²
2 Этаж площадь
134,01 м²
Коридор
15,38 м² (2 эт.)
Прачечная
7,20 м² (2 эт.)
Комната 2
19,25 м² (2 эт.)
Ванная
4,22 м² (2 эт.)
Гардероб
11,20 м² (2 эт.)
Комната 3
17,23 м² (2 эт.)
Гардероб
3,13 м² (2 эт.)
Комната 4
19,32 м² (2 эт.)
Гардероб
3,16 м² (2 эт.)
Ванная
8,25 м² (2 эт.)
Комната 5
18,26 м² (2 эт.)
Гардероб
7,41 м² (2 эт.)
планировка
все характеристики
все характеристики
жилой дом
Общая площадь
350.18 м²
1 Этаж площадь
216,17 м²
Прихожая
28,60 м²
Гостиная-столовая-кухня
59,14 м²
Кладовая
5,25 м²
Ванная
12 м²
Комната 1
20,62 м²
Спортзал
45,25 м²
Гардероб
5,61 м²
Техническое помещение
3,70 м²
Гараж
36 м²
2 Этаж площадь
134,01 м²
Коридор
15,38 м² (2 эт.)
Прачечная
7,20 м² (2 эт.)
Комната 2
19,25 м² (2 эт.)
Ванная
4,22 м² (2 эт.)
Гардероб
11,20 м² (2 эт.)
Комната 3
17,23 м² (2 эт.)
Гардероб
3,13 м² (2 эт.)
Комната 4
19,32 м² (2 эт.)
Гардероб
3,16 м² (2 эт.)
Ванная
8,25 м² (2 эт.)
Комната 5
18,26 м² (2 эт.)
Гардероб
7,41 м² (2 эт.)
экстерьер
Остались вопросы?
Напиши нам.
Наш ведущий инженер свяжется с вами в ближайшее время.
Обязательно к заполнению
Обязательно к заполнению
ДАННЫЕ ПОЛУЧЕНЫ

данные успешно отправлены

Ведущий инженер компании свяжется с вами в ближайшее время.
мы используем файлы cookie
Используя сайт april-dom.ru, Вы соглашаетесь с использованием файлов cookie, которые указаны в Политике обработки Персональных данных.
/projects/a444/