а406
Проект одноэтажного дома с плоской крышей, гаражом и террасой.
Фасад комбинированный, используются белая и серая штукатурка с облицовкой под кирпич серо-коричневых оттенков, что придает дому текстуру и контраст.
Дом украшает большое панорамное остекление и современная архитектура.
Фасад комбинированный, используются белая и серая штукатурка с облицовкой под кирпич серо-коричневых оттенков, что придает дому текстуру и контраст.
Дом украшает большое панорамное остекление и современная архитектура.
о проекте
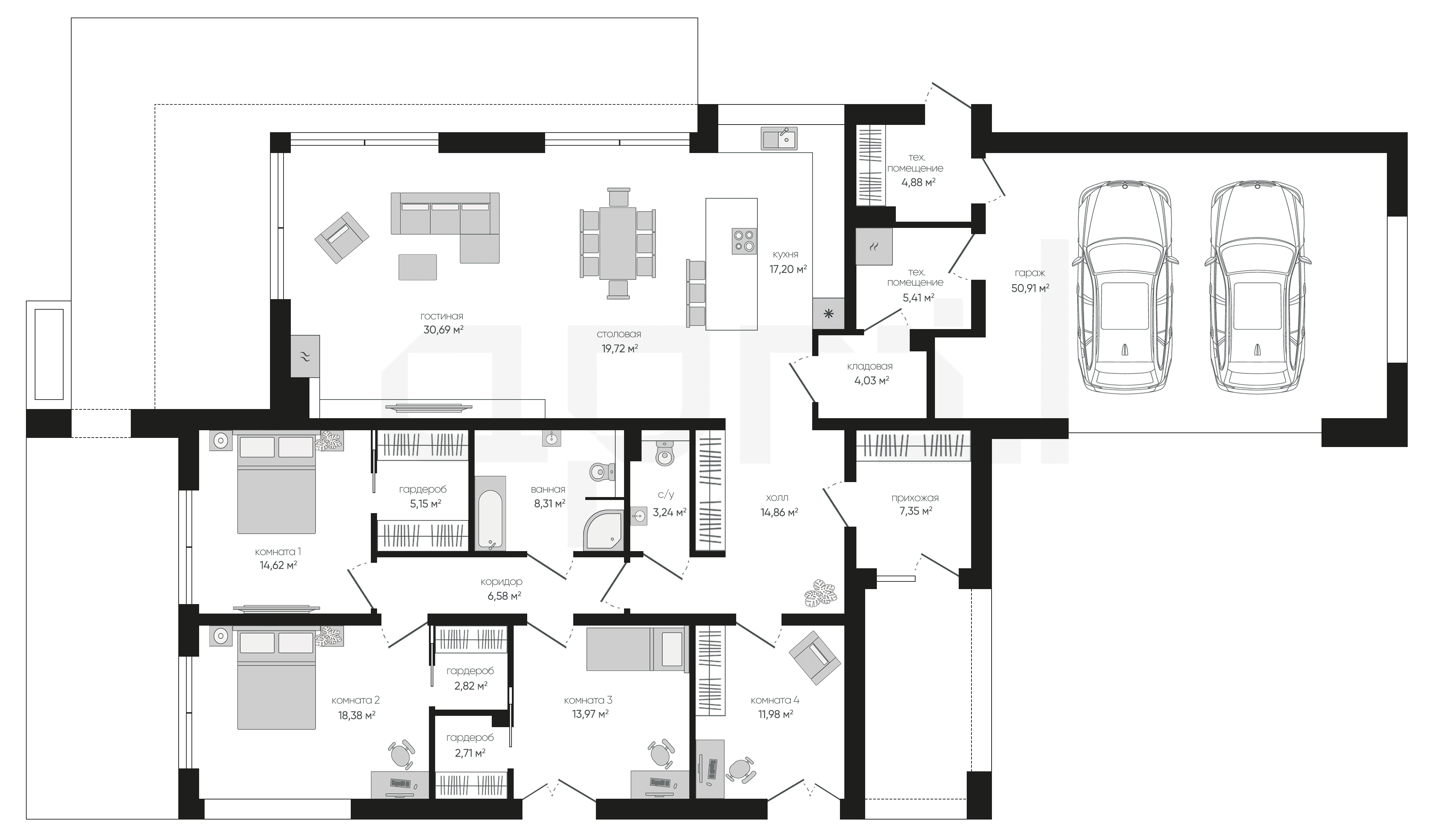
Современный одноэтажный дом имеет эстетичный минималистичный дизайн с простыми и чистыми линиями. Внутри дом гармонично сочетает в себе приватные и общественные зоны, обеспечивая комфортное проживание для всей семьи.
ЭТАЖНОСТЬ
1
ПЛОЩАДЬ
242.81 м²
ПАРАМЕТРЫ ПРОЕКТА
242.81 м²
Общая площадь
242.81 м²
Прихожая
7,35 м²
Холл
14,86 м²
Гостиная
30,69 м²
Столовая
19,72 м²
Кухня
17,20 м²
Кладовая
4,03 м²
С/у
3,24 м²
Коридор
6,58 м²
Остались вопросы?
Напиши нам.
Напиши нам.
Наш ведущий инженер свяжется с вами в ближайшее время.
ДАННЫЕ ПОЛУЧЕНЫ
данные успешно отправлены
Ведущий инженер компании свяжется с вами в ближайшее время.
Дома 1 этаж
Дома 2 этажа
Дома 1 этаж с гаражом
Дома 120 м2
Дома 150 м2
Дома 2 этажа с гаражом
Дома 200 м2
Дома 250 м2
Дома 3 этажа
Дома в скандинавском стиле
Дома в стиле райта
Дома в стиле хайтек
Дома до 100 м2
Дома с гаражом
Дома с мансардой
Дома с сауной
Дома 1 этаж с гаражом и террасой
Дома 1 этаж с террасой
Дома в стиле барнхаус
Дома в стиле шале
Дома из газобетона
Дома из газобетона 1 этаж
Дома из камня
Дома из керамических блоков
Дома из кирпича
Дома из пеноблоков
Дома с зимним садом
Дома с подвалом
Дома с террасой
Дома с цокольным этажом
Фахверковые дома
Дома с бассейном