о проекте

Дом имеет четкие геометрические формы и плоскую крышу, что характерно для современной архитектуры и стиля Хайтек.

ЭТАЖНОСТЬ
2
ПЛОЩАДЬ
234.87 м²
1
этаж
2
этаж
ПАРАМЕТРЫ ПРОЕКТА
234.87 м²
Общая площадь
234.87 м²
1 Этаж площадь
138,14 м²
Прихожая
11,97 м²
Гостиная-столовая
45,27 м²
Кухня
16,44 м²
Кладовая
2,95 м²
Коридор
5,19 м²
С/у
3,79 м²
Комната 1
11 м²
1 этаж
2 этаж
все характеристики
жилой дом
Общая площадь
234.87 м²
1 Этаж площадь
138,14 м²
Прихожая
11,97 м²
Гостиная-столовая
45,27 м²
Кухня
16,44 м²
Кладовая
2,95 м²
Коридор
5,19 м²
С/у
3,79 м²
Комната 1
11 м²
Техническое помещение
16,39 м²
Гараж
25,14 м²
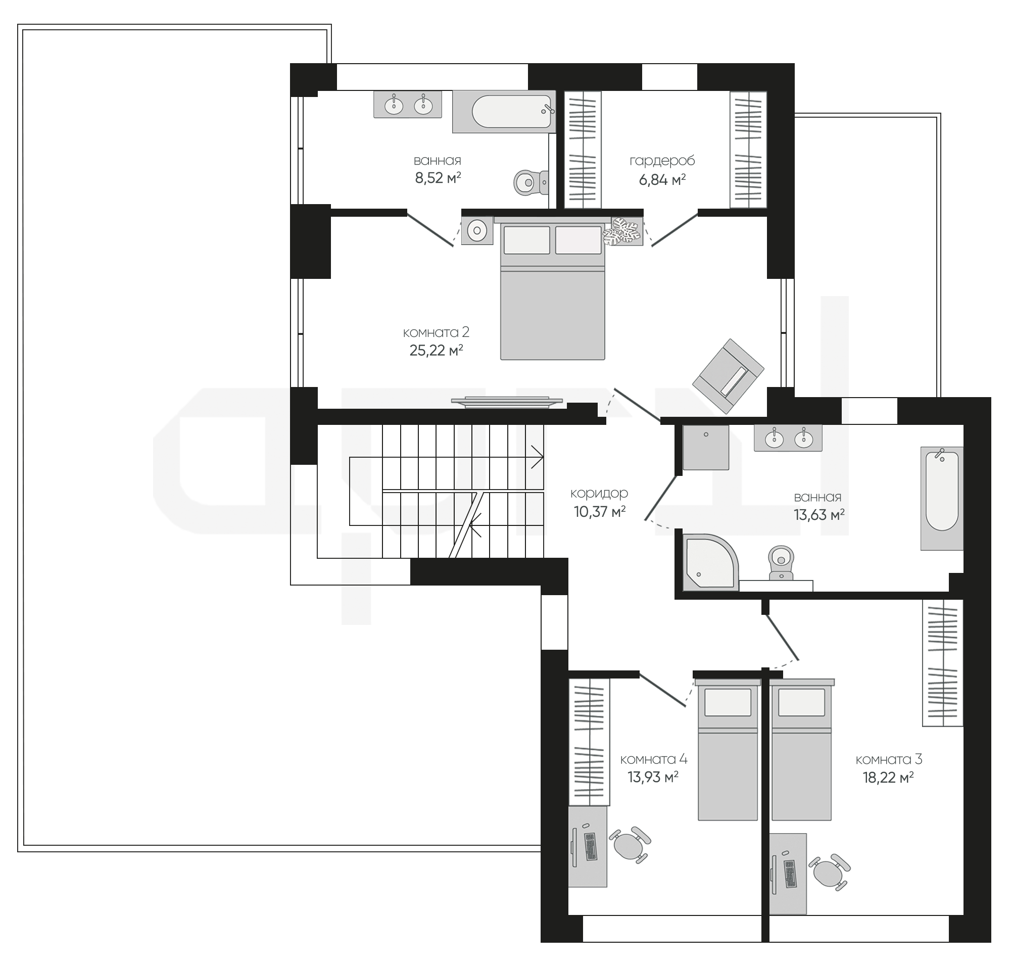
2 Этаж площадь
96,73 м²
Коридор
10,37 м² (2 эт.)
Комната 2
25,22 м² (2 эт.)
Ванная
8,52 м² (2 эт.)
Гардероб
6,84 м² (2 эт.)
Ванная
13,63 м² (2 эт.)
Комната 3
18,22 м² (2 эт.)
Комната 4
13,93 м² (2 эт.)
планировка
все характеристики
все характеристики
жилой дом
Общая площадь
234.87 м²
1 Этаж площадь
138,14 м²
Прихожая
11,97 м²
Гостиная-столовая
45,27 м²
Кухня
16,44 м²
Кладовая
2,95 м²
Коридор
5,19 м²
С/у
3,79 м²
Комната 1
11 м²
Техническое помещение
16,39 м²
Гараж
25,14 м²
2 Этаж площадь
96,73 м²
Коридор
10,37 м² (2 эт.)
Комната 2
25,22 м² (2 эт.)
Ванная
8,52 м² (2 эт.)
Гардероб
6,84 м² (2 эт.)
Ванная
13,63 м² (2 эт.)
Комната 3
18,22 м² (2 эт.)
Комната 4
13,93 м² (2 эт.)
экстерьер
Остались вопросы?
Напиши нам.
Наш ведущий инженер свяжется с вами в ближайшее время.
Обязательно к заполнению
Обязательно к заполнению
ДАННЫЕ ПОЛУЧЕНЫ

данные успешно отправлены

Ведущий инженер компании свяжется с вами в ближайшее время.
мы используем файлы cookie
Используя сайт april-dom.ru, Вы соглашаетесь с использованием файлов cookie, которые указаны в Политике обработки Персональных данных.
/projects/a374/