о проекте

Проект двухэтажного дома с гаражом и террасой представляет собой современный стиль и комфорт, где каждая деталь продумана и спланирована для создания уютной и функциональной атмосферы.

ЭТАЖНОСТЬ
2
ПЛОЩАДЬ
176.87 м²
1
этаж
2
этаж
ПАРАМЕТРЫ ПРОЕКТА
176.87 м²
Общая площадь
176.87 м²
1 Этаж площадь
111,24 м²
Прихожая
4,04 м²
Холл
7,43 м²
Гостиная-столовая
30,11 м²
Кухня
10,92 м²
Кладовая
5,22 м²
С/у
3,20 м²
Кладовая
1,76 м²
1 этаж
2 этаж
все характеристики
жилой дом
Общая площадь
176.87 м²
1 Этаж площадь
111,24 м²
Прихожая
4,04 м²
Холл
7,43 м²
Гостиная-столовая
30,11 м²
Кухня
10,92 м²
Кладовая
5,22 м²
С/у
3,20 м²
Кладовая
1,76 м²
Комната 1
9,71 м²
Техническое помещение
5,80 м²
Гараж
33,05 м²
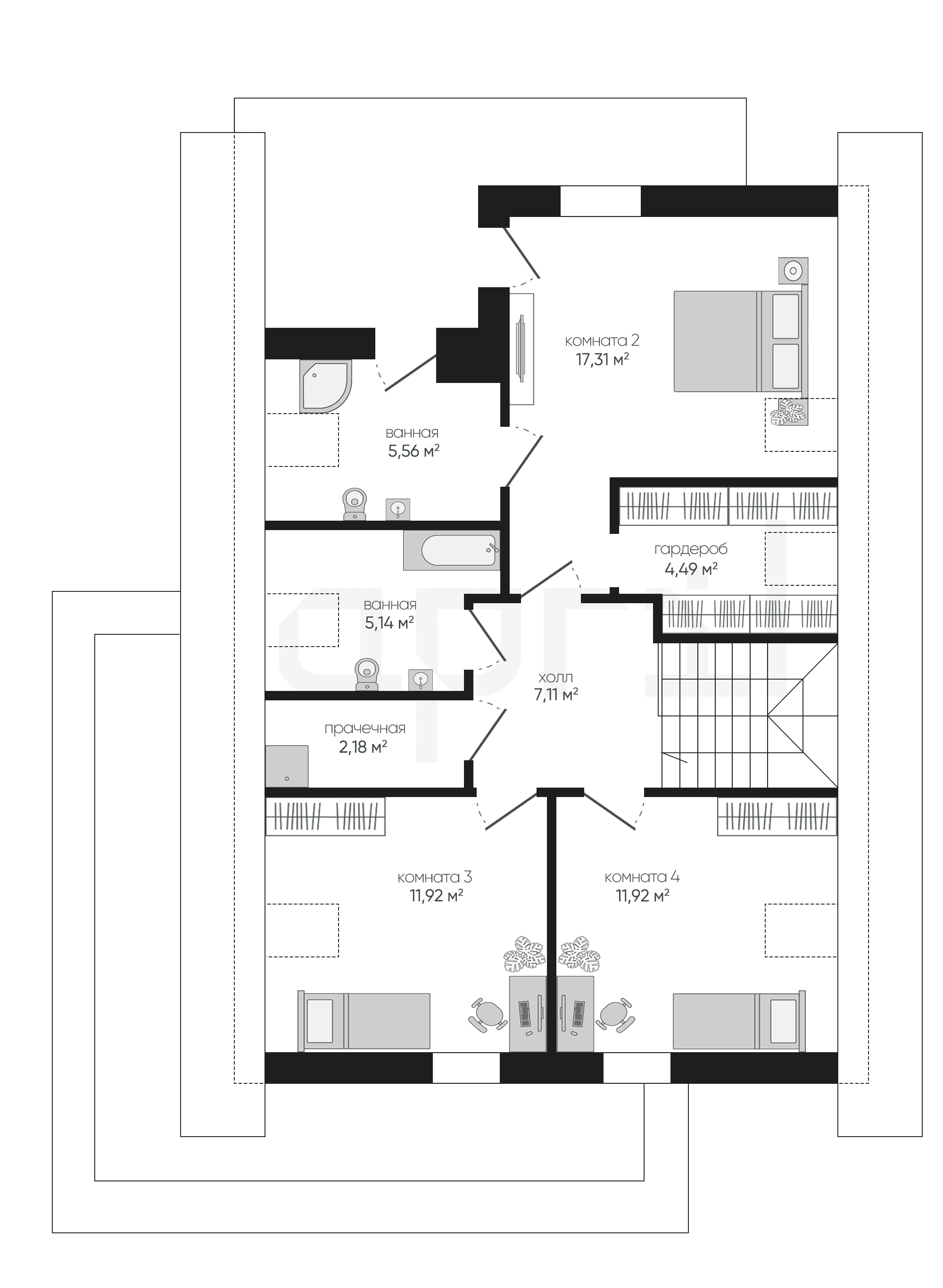
2 Этаж площадь
65,63 м²
Холл
7,11 м² (2 эт.)
Комната 2
17,31 м² (2 эт.)
Ванная
5,56 м² (2 эт.)
Гардероб
4,49 м² (2 эт.)
Ванная
5,14 м² (2 эт.)
Прачечная
2,18 м² (2 эт.)
Комната 3
11,92 м² (2 эт.)
Комната 4
11,92 м² (2 эт.)
планировка
все характеристики
все характеристики
жилой дом
Общая площадь
176.87 м²
1 Этаж площадь
111,24 м²
Прихожая
4,04 м²
Холл
7,43 м²
Гостиная-столовая
30,11 м²
Кухня
10,92 м²
Кладовая
5,22 м²
С/у
3,20 м²
Кладовая
1,76 м²
Комната 1
9,71 м²
Техническое помещение
5,80 м²
Гараж
33,05 м²
2 Этаж площадь
65,63 м²
Холл
7,11 м² (2 эт.)
Комната 2
17,31 м² (2 эт.)
Ванная
5,56 м² (2 эт.)
Гардероб
4,49 м² (2 эт.)
Ванная
5,14 м² (2 эт.)
Прачечная
2,18 м² (2 эт.)
Комната 3
11,92 м² (2 эт.)
Комната 4
11,92 м² (2 эт.)
экстерьер
гостиная-столовая
Остались вопросы?
Напиши нам.
Наш ведущий инженер свяжется с вами в ближайшее время.
Обязательно к заполнению
Обязательно к заполнению
ДАННЫЕ ПОЛУЧЕНЫ

данные успешно отправлены

Ведущий инженер компании свяжется с вами в ближайшее время.
мы используем файлы cookie
Используя сайт april-dom.ru, Вы соглашаетесь с использованием файлов cookie, которые указаны в Политике обработки Персональных данных.
/projects/a157/