а352
Проект небольшого одноэтажного дома с террасой.
На фасаде использованы современные материалы, придающие дому актуальный вид. Белая штукатурка дополнена клинкерной плиткой в зоне террасы и входа в дом. Деревянные панели в верхней части фасада служат акцентом, подчеркивая естественность и теплый характер дома.
На фасаде использованы современные материалы, придающие дому актуальный вид. Белая штукатурка дополнена клинкерной плиткой в зоне террасы и входа в дом. Деревянные панели в верхней части фасада служат акцентом, подчеркивая естественность и теплый характер дома.
о проекте
Современный одноэтажный дом с двускатной крышей без карнизов, в плане Г-образной формы отлично подходит как для сезонного, так и для круглогодичного проживания небольшой семьи.
ЭТАЖНОСТЬ
1
ПЛОЩАДЬ
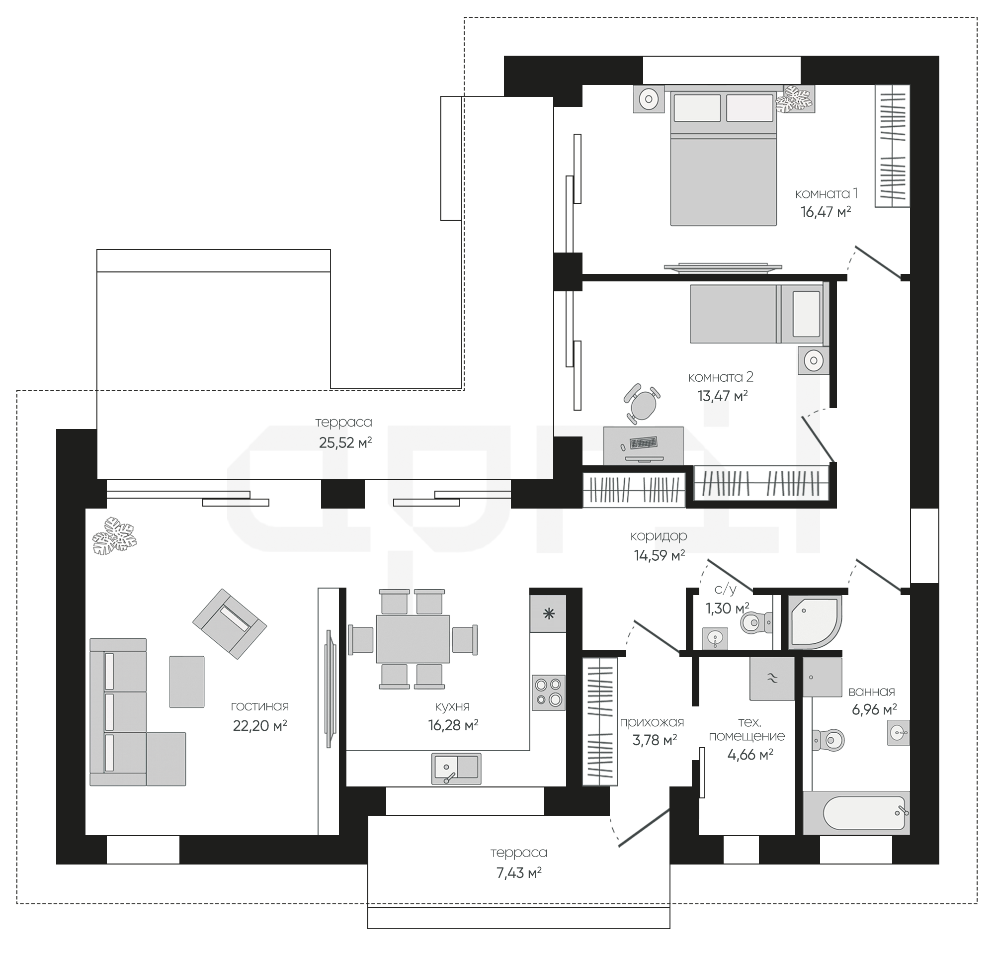
99.71 м²
ПАРАМЕТРЫ ПРОЕКТА
99.71 м²
Общая площадь
99.71 м²
Прихожая
3,78 м²
Коридор
14,59 м²
Гостиная
22,20 м²
Кухня
16,28 м²
С/у
1,30 м²
Ванная
6,96 м²
Комната 1
16,47 м²
Комната 2
13,47 м²
Остались вопросы?
Напиши нам.
Напиши нам.
Наш ведущий инженер свяжется с вами в ближайшее время.
ДАННЫЕ ПОЛУЧЕНЫ
данные успешно отправлены
Ведущий инженер компании свяжется с вами в ближайшее время.
Дома 1 этаж
Дома 2 этажа
Дома 1 этаж с гаражом
Дома 120 м2
Дома 150 м2
Дома 2 этажа с гаражом
Дома 200 м2
Дома 250 м2
Дома 3 этажа
Дома в скандинавском стиле
Дома в стиле райта
Дома в стиле хайтек
Дома до 100 м2
Дома с гаражом
Дома с мансардой
Дома с сауной
Дома 1 этаж с гаражом и террасой
Дома 1 этаж с террасой
Дома в стиле барнхаус
Дома в стиле шале
Дома из газобетона
Дома из газобетона 1 этаж
Дома из камня
Дома из керамических блоков
Дома из кирпича
Дома из пеноблоков
Дома с зимним садом
Дома с подвалом
Дома с террасой
Дома с цокольным этажом
Фахверковые дома
Дома с бассейном