о проекте

Добавив двускатную крышу с карнизом к фасаду здания, современное остекление и балкон со стороны сада, удалось обеспечить привлекательный внешний вид простой форме дома.

ЭТАЖНОСТЬ
2
ПЛОЩАДЬ
149.66 м²
1
этаж
2
этаж
ПАРАМЕТРЫ ПРОЕКТА
149.66 м²
Общая площадь
149.66 м²
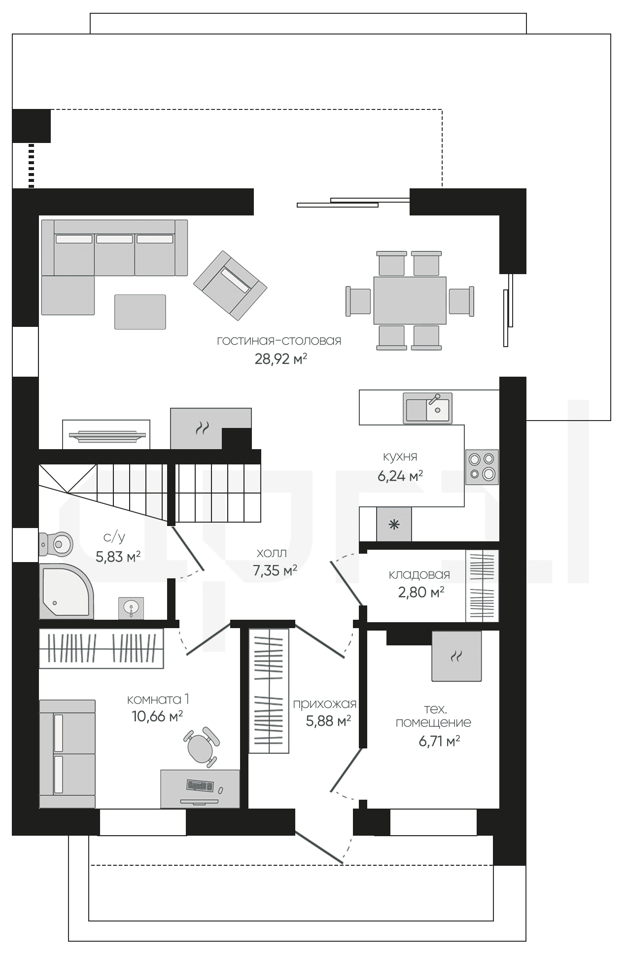
1 Этаж площадь
74,39 м²
Прихожая
5,88 м²
Холл
7,35 м²
Гостиная-столовая
28,92 м²
Кухня
6,24 м²
Кладовая
2,80 м²
С/у
5,83 м²
Комната 1
10,66 м²
1 этаж
2 этаж
все характеристики
жилой дом
Общая площадь
149.66 м²
1 Этаж площадь
74,39 м²
Прихожая
5,88 м²
Холл
7,35 м²
Гостиная-столовая
28,92 м²
Кухня
6,24 м²
Кладовая
2,80 м²
С/у
5,83 м²
Комната 1
10,66 м²
Техническое помещение
6,71 м²
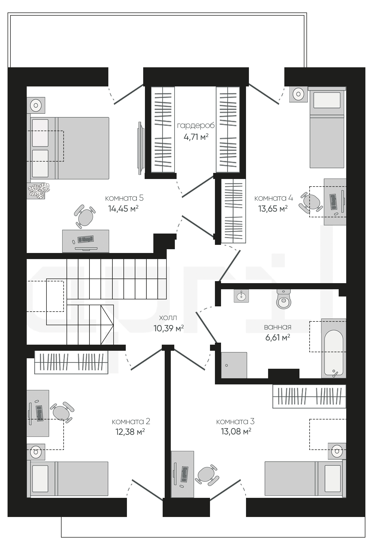
2 Этаж площадь
75,27 м²
Холл
10,39 м² (2 эт.)
Комната 2
12,38 м² (2 эт.)
Комната 3
13,08 м² (2 эт.)
Ванная
6,61 м² (2 эт.)
Комната 4
13,65 м² (2 эт.)
Комната 5
14,45 м² (2 эт.)
Гардероб
4,71 м² (2 эт.)
планировка
все характеристики
все характеристики
жилой дом
Общая площадь
149.66 м²
1 Этаж площадь
74,39 м²
Прихожая
5,88 м²
Холл
7,35 м²
Гостиная-столовая
28,92 м²
Кухня
6,24 м²
Кладовая
2,80 м²
С/у
5,83 м²
Комната 1
10,66 м²
Техническое помещение
6,71 м²
2 Этаж площадь
75,27 м²
Холл
10,39 м² (2 эт.)
Комната 2
12,38 м² (2 эт.)
Комната 3
13,08 м² (2 эт.)
Ванная
6,61 м² (2 эт.)
Комната 4
13,65 м² (2 эт.)
Комната 5
14,45 м² (2 эт.)
Гардероб
4,71 м² (2 эт.)
экстерьер
Остались вопросы?
Напиши нам.
Наш ведущий инженер свяжется с вами в ближайшее время.
Обязательно к заполнению
Обязательно к заполнению
ДАННЫЕ ПОЛУЧЕНЫ

данные успешно отправлены

Ведущий инженер компании свяжется с вами в ближайшее время.
мы используем файлы cookie
Используя сайт april-dom.ru, Вы соглашаетесь с использованием файлов cookie, которые указаны в Политике обработки Персональных данных.
/projects/a337/