а283
Проект двухэтажного дома с двускатной крышей и террасой.
Фасад дома выполнен из темного дерева, создающего стильный и элегантный вид. Окна большие и вертикальные, с жалюзи, которые добавляют современный штрих.
Крыша двускатная, что придает дому традиционную форму, но в современном исполнении.
Входная зона украшена освещением и защищена крытой террасой с поддерживающими колоннами.
Фасад дома выполнен из темного дерева, создающего стильный и элегантный вид. Окна большие и вертикальные, с жалюзи, которые добавляют современный штрих.
Крыша двускатная, что придает дому традиционную форму, но в современном исполнении.
Входная зона украшена освещением и защищена крытой террасой с поддерживающими колоннами.
о проекте
Современный дом имеет минималистичный дизайн с четкими линиями и простой геометрией.
ЭТАЖНОСТЬ
2
ПЛОЩАДЬ
143.62 м²
ПАРАМЕТРЫ ПРОЕКТА
143.62 м²
Общая площадь
143.62 м²
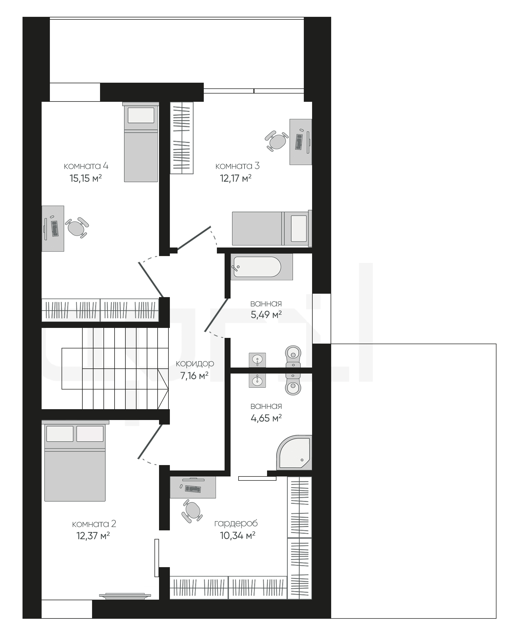
1 Этаж площадь
76,29 м²
Прихожая
7,05 м²
Коридор
7,32 м²
Гостиная-столовая
31,87 м²
Кухня
7,39 м²
С/у
5,55 м²
Комната 1
12,47 м²
Техническое помещение
4,64 м²
Остались вопросы?
Напиши нам.
Напиши нам.
Наш ведущий инженер свяжется с вами в ближайшее время.
ДАННЫЕ ПОЛУЧЕНЫ
данные успешно отправлены
Ведущий инженер компании свяжется с вами в ближайшее время.
Дома 1 этаж
Дома 2 этажа
Дома 1 этаж с гаражом
Дома 120 м2
Дома 150 м2
Дома 2 этажа с гаражом
Дома 200 м2
Дома 250 м2
Дома 3 этажа
Дома в скандинавском стиле
Дома в стиле райта
Дома в стиле хайтек
Дома до 100 м2
Дома с гаражом
Дома с мансардой
Дома с сауной
Дома 1 этаж с гаражом и террасой
Дома 1 этаж с террасой
Дома в стиле барнхаус
Дома в стиле шале
Дома из газобетона
Дома из газобетона 1 этаж
Дома из камня
Дома из керамических блоков
Дома из кирпича
Дома из пеноблоков
Дома с зимним садом
Дома с подвалом
Дома с террасой
Дома с цокольным этажом
Фахверковые дома
Дома с бассейном