о проекте

Проект современного дома сочетает стиль, функциональность и комфорт. Его продуманные пространства и современные решения делают его отличным выбором для жизни, способствуя уюту и гармонии.

ЭТАЖНОСТЬ
2
ПЛОЩАДЬ
182.52 м²
1
этаж
2
этаж
ПАРАМЕТРЫ ПРОЕКТА
182.52 м²
Общая площадь
182.52 м²
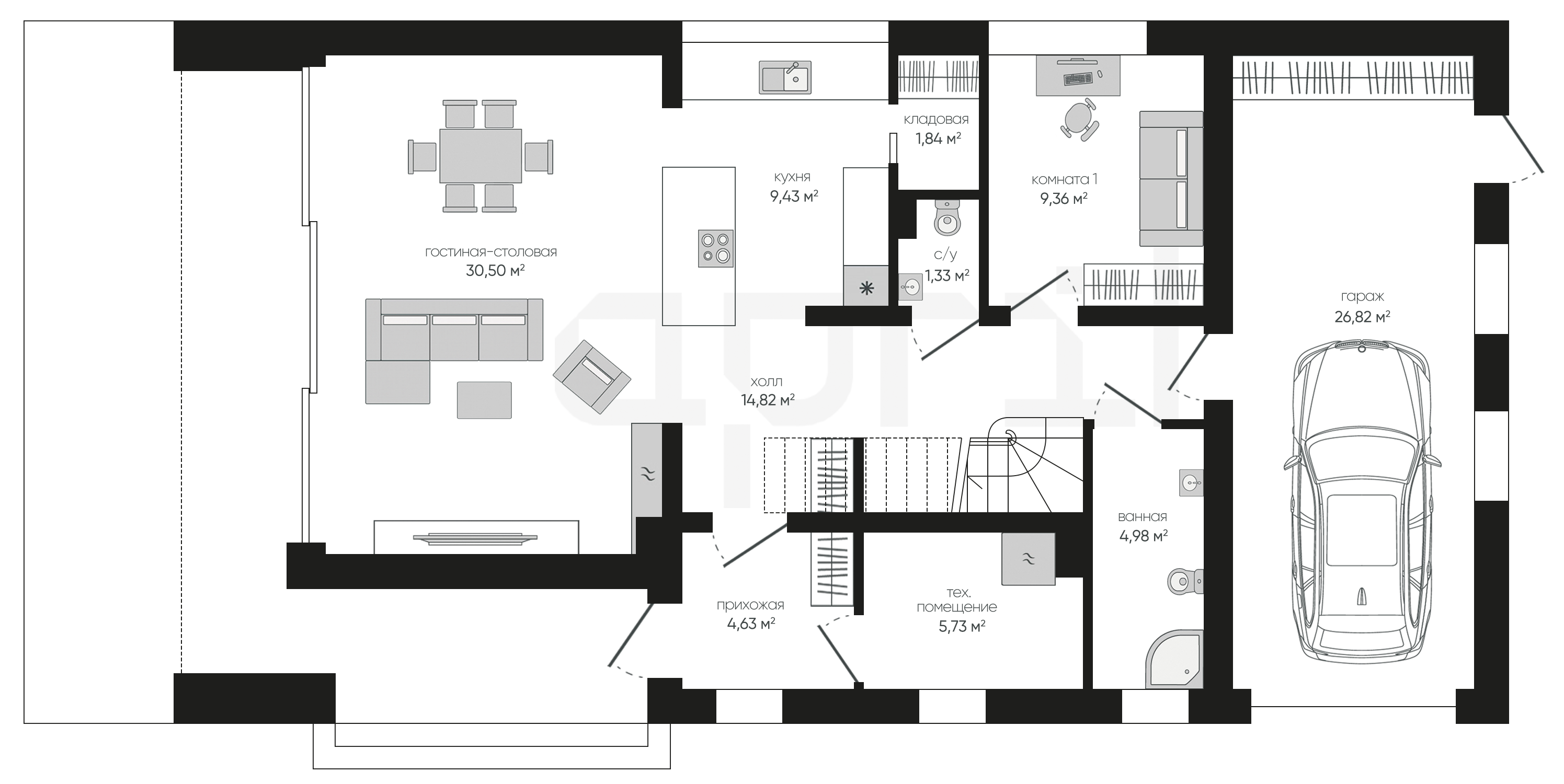
1 Этаж площадь
109,44 м²
Прихожая
4,63 м²
Холл
14,82 м²
Гостиная-столовая
30,50 м²
Кухня
9,43 м²
Кладовая
1,84 м²
С/у
1,33 м²
Комната 1
9,36 м²
1 этаж
2 этаж
все характеристики
жилой дом
Общая площадь
182.52 м²
1 Этаж площадь
109,44 м²
Прихожая
4,63 м²
Холл
14,82 м²
Гостиная-столовая
30,50 м²
Кухня
9,43 м²
Кладовая
1,84 м²
С/у
1,33 м²
Комната 1
9,36 м²
Ванная
4,98 м²
Техническое помещение
5,73 м²
Гараж
26,82 м²
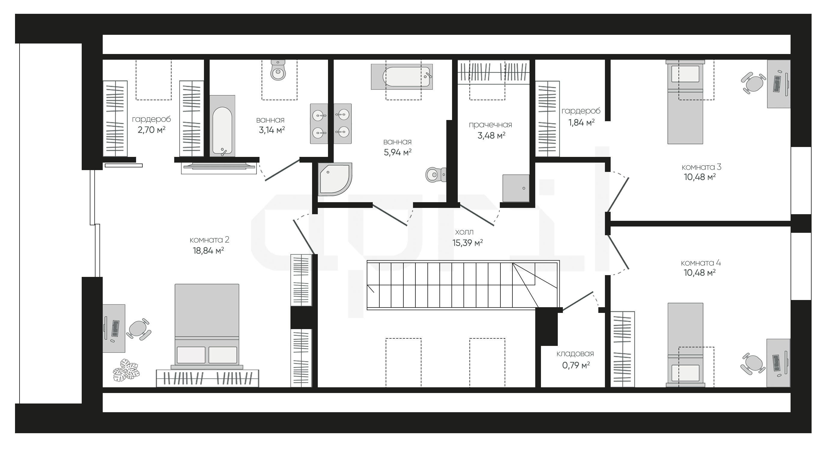
2 Этаж площадь
73,08 м²
Холл
15,39 м² (2 эт.)
Комната 2
18,84 м² (2 эт.)
Гардероб
2,70 м² (2 эт.)
Ванная
3,14 м² (2 эт.)
Ванная
5,94 м² (2 эт.)
Прачечная
3,48 м² (2 эт.)
Комната 3
10,48 м² (2 эт.)
Гардероб
1,84 м² (2 эт.)
Комната 4
10,48 м² (2 эт.)
Кладовая
0,79 м² (2 эт.)
планировка
все характеристики
все характеристики
жилой дом
Общая площадь
182.52 м²
1 Этаж площадь
109,44 м²
Прихожая
4,63 м²
Холл
14,82 м²
Гостиная-столовая
30,50 м²
Кухня
9,43 м²
Кладовая
1,84 м²
С/у
1,33 м²
Комната 1
9,36 м²
Ванная
4,98 м²
Техническое помещение
5,73 м²
Гараж
26,82 м²
2 Этаж площадь
73,08 м²
Холл
15,39 м² (2 эт.)
Комната 2
18,84 м² (2 эт.)
Гардероб
2,70 м² (2 эт.)
Ванная
3,14 м² (2 эт.)
Ванная
5,94 м² (2 эт.)
Прачечная
3,48 м² (2 эт.)
Комната 3
10,48 м² (2 эт.)
Гардероб
1,84 м² (2 эт.)
Комната 4
10,48 м² (2 эт.)
Кладовая
0,79 м² (2 эт.)
экстерьер
гостиная-столовая
Остались вопросы?
Напиши нам.
Наш ведущий инженер свяжется с вами в ближайшее время.
Обязательно к заполнению
Обязательно к заполнению
ДАННЫЕ ПОЛУЧЕНЫ

данные успешно отправлены

Ведущий инженер компании свяжется с вами в ближайшее время.
мы используем файлы cookie
Используя сайт april-dom.ru, Вы соглашаетесь с использованием файлов cookie, которые указаны в Политике обработки Персональных данных.
/projects/a333/