о проекте

Современные детали, материалы и используемые цвета создают неподвластное времени очарование. Дом прекрасно вписывается в современный стиль городской и пригородной застройки.

ЭТАЖНОСТЬ
2
ПЛОЩАДЬ
176.20 м²
1
этаж
2
этаж
ПАРАМЕТРЫ ПРОЕКТА
176.20 м²
Общая площадь
176.20 м²
1 Этаж площадь
106,01 м²
Прихожая
4,51 м²
Гостиная-столовая
30,85 м²
Кухня
10,65 м²
Коридор
2,80 м²
Комната 1
10,82 м²
С/у
3,99 м²
Лестница
4,16 м²
1 этаж
2 этаж
все характеристики
жилой дом
Общая площадь
176.20 м²
1 Этаж площадь
106,01 м²
Прихожая
4,51 м²
Гостиная-столовая
30,85 м²
Кухня
10,65 м²
Коридор
2,80 м²
Комната 1
10,82 м²
С/у
3,99 м²
Лестница
4,16 м²
Техническое помещение
4,11 м²
Гараж
34,12 м²
Терраса
29,35 м²
2 Этаж площадь
70,19 м²
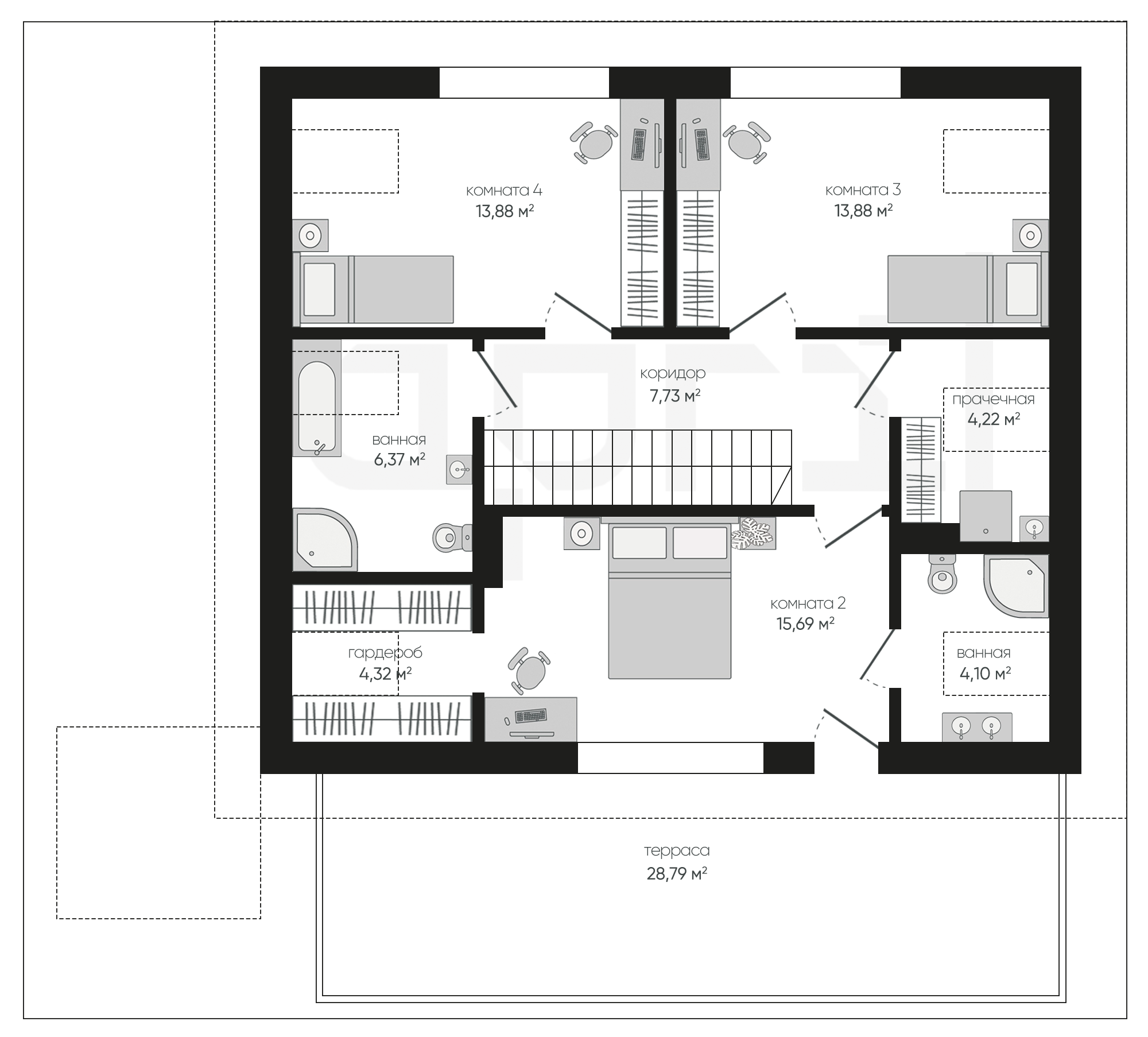
Коридор
7,73 м² (2 эт.)
Прачечная
4,22 м² (2 эт.)
Комната 2
15,69 м² (2 эт.)
Гардероб
4,32 м² (2 эт.)
Ванная
4,10 м² (2 эт.)
Комната 3
13,88 м² (2 эт.)
Комната 4
13,88 м² (2 эт.)
Ванная
6,37 м² (2 эт.)
Терраса
28,79 м² (2 эт.)
планировка
все характеристики
все характеристики
жилой дом
Общая площадь
176.20 м²
1 Этаж площадь
106,01 м²
Прихожая
4,51 м²
Гостиная-столовая
30,85 м²
Кухня
10,65 м²
Коридор
2,80 м²
Комната 1
10,82 м²
С/у
3,99 м²
Лестница
4,16 м²
Техническое помещение
4,11 м²
Гараж
34,12 м²
Терраса
29,35 м²
2 Этаж площадь
70,19 м²
Коридор
7,73 м² (2 эт.)
Прачечная
4,22 м² (2 эт.)
Комната 2
15,69 м² (2 эт.)
Гардероб
4,32 м² (2 эт.)
Ванная
4,10 м² (2 эт.)
Комната 3
13,88 м² (2 эт.)
Комната 4
13,88 м² (2 эт.)
Ванная
6,37 м² (2 эт.)
Терраса
28,79 м² (2 эт.)
экстерьер
Остались вопросы?
Напиши нам.
Наш ведущий инженер свяжется с вами в ближайшее время.
Обязательно к заполнению
Обязательно к заполнению
ДАННЫЕ ПОЛУЧЕНЫ

данные успешно отправлены

Ведущий инженер компании свяжется с вами в ближайшее время.
мы используем файлы cookie
Используя сайт april-dom.ru, Вы соглашаетесь с использованием файлов cookie, которые указаны в Политике обработки Персональных данных.
/projects/a309/