о проекте

Характерным элементом здания является большое и разнообразное остекление, а также уникальные свесы, которые придают динамичность форме дома.

ЭТАЖНОСТЬ
2
ПЛОЩАДЬ
245.10 м²
1
этаж
2
этаж
ПАРАМЕТРЫ ПРОЕКТА
245.10 м²
Общая площадь
245.10 м²
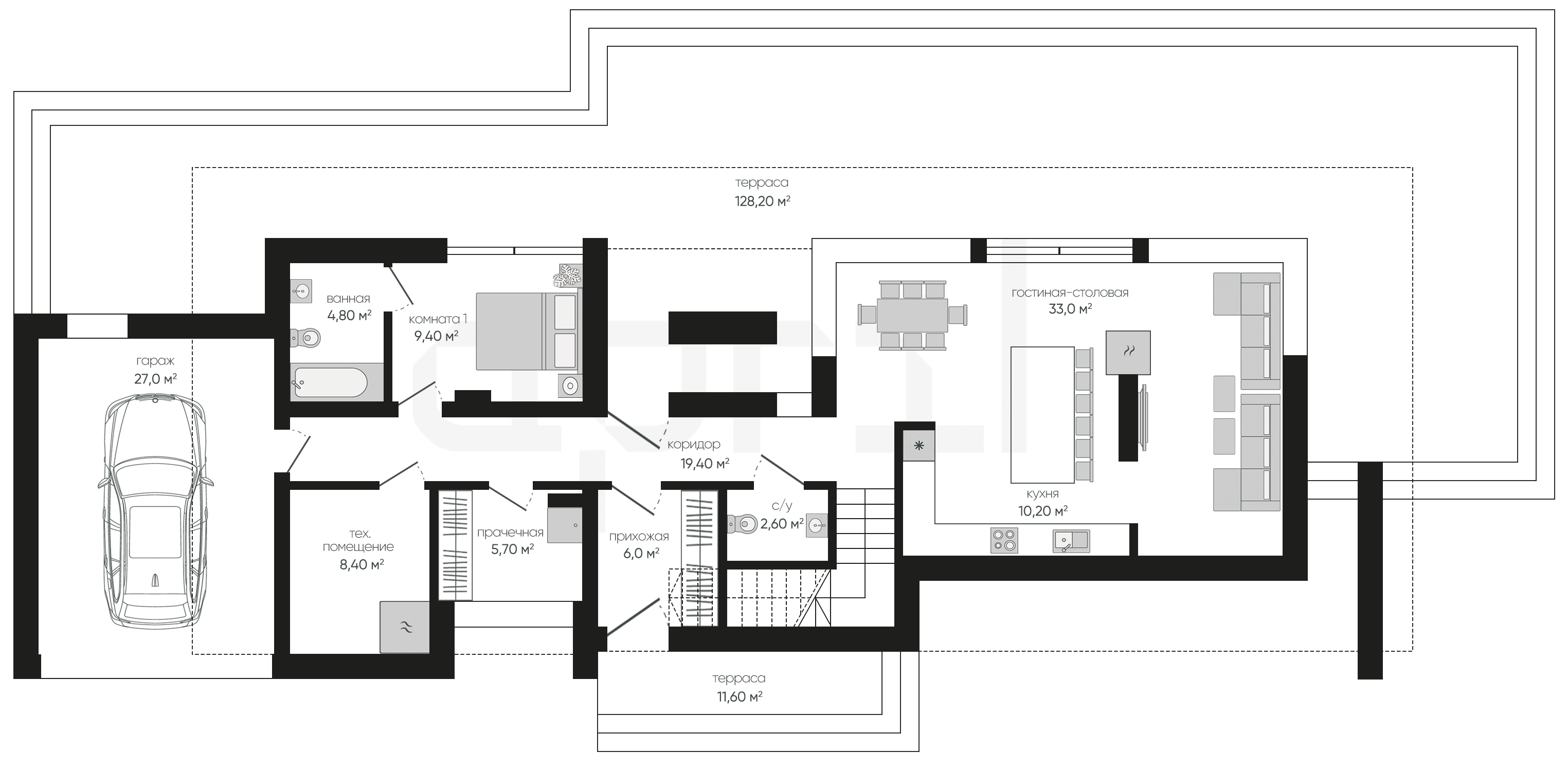
1 Этаж площадь
126,50 м²
Прихожая
6 м²
Коридор
19,40 м²
Гостиная-столовая
33 м²
Кухня
10,20 м²
С/у
2,60 м²
Комната 1
9,40 м²
Ванная
4,80 м²
1 этаж
2 этаж
все характеристики
жилой дом
Общая площадь
245.10 м²
1 Этаж площадь
126,50 м²
Прихожая
6 м²
Коридор
19,40 м²
Гостиная-столовая
33 м²
Кухня
10,20 м²
С/у
2,60 м²
Комната 1
9,40 м²
Ванная
4,80 м²
Прачечная
5,70 м²
Техническое помещение
8,40 м²
Гараж
27 м²
Терраса
11,60 м²
Терраса
128,20 м²
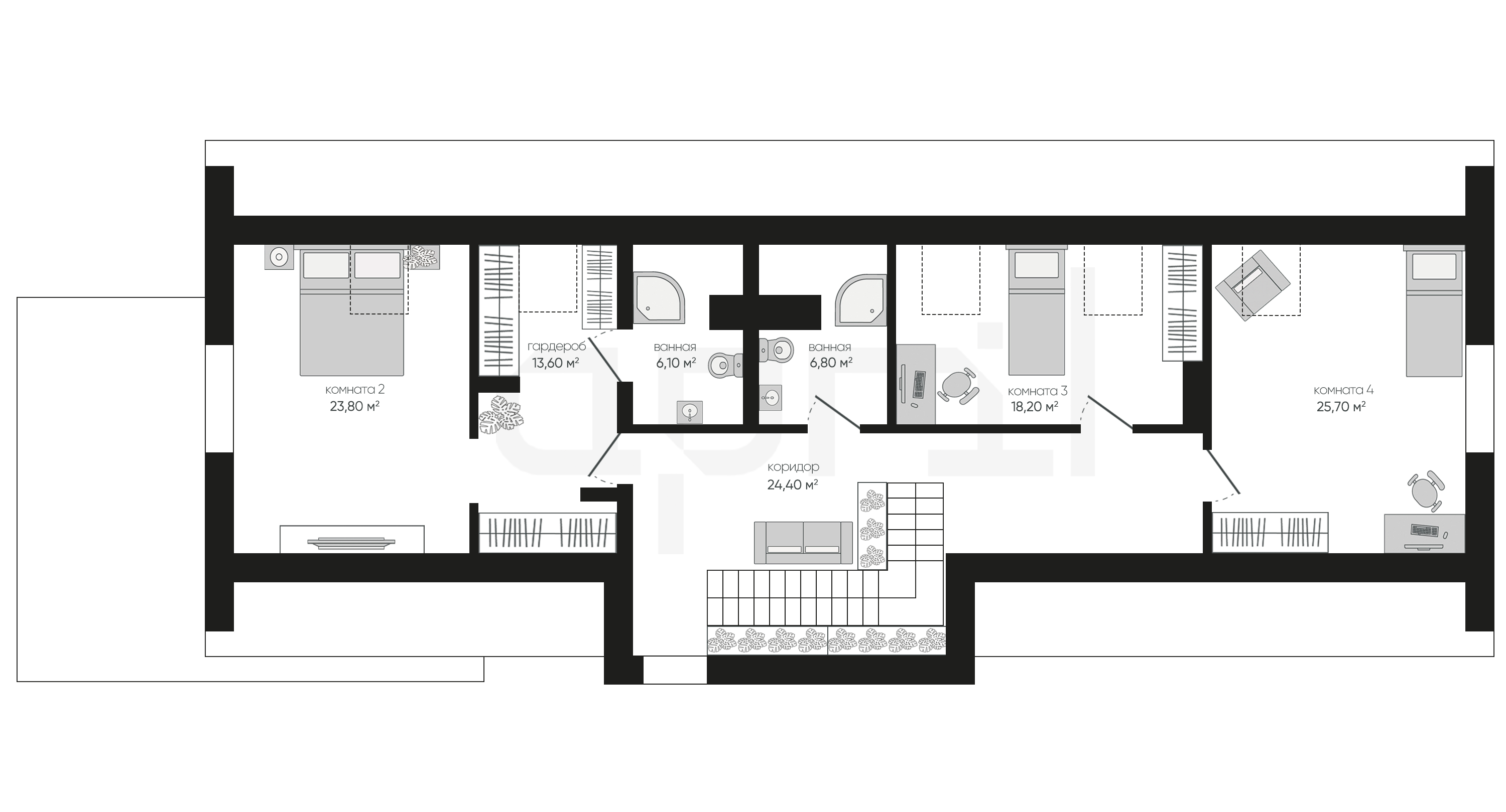
2 Этаж площадь
118,60 м²
Коридор
24,40 м² (2 эт.)
Комната 2
23,80 м² (2 эт.)
Гардероб
13,60 м² (2 эт.)
Ванная
6,10 м² (2 эт.)
Ванная
6,80 м² (2 эт.)
Комната 3
18,20 м² (2 эт.)
Комната 4
25,70 м² (2 эт.)
планировка
все характеристики
все характеристики
жилой дом
Общая площадь
245.10 м²
1 Этаж площадь
126,50 м²
Прихожая
6 м²
Коридор
19,40 м²
Гостиная-столовая
33 м²
Кухня
10,20 м²
С/у
2,60 м²
Комната 1
9,40 м²
Ванная
4,80 м²
Прачечная
5,70 м²
Техническое помещение
8,40 м²
Гараж
27 м²
Терраса
11,60 м²
Терраса
128,20 м²
2 Этаж площадь
118,60 м²
Коридор
24,40 м² (2 эт.)
Комната 2
23,80 м² (2 эт.)
Гардероб
13,60 м² (2 эт.)
Ванная
6,10 м² (2 эт.)
Ванная
6,80 м² (2 эт.)
Комната 3
18,20 м² (2 эт.)
Комната 4
25,70 м² (2 эт.)
экстерьер
Остались вопросы?
Напиши нам.
Наш ведущий инженер свяжется с вами в ближайшее время.
Обязательно к заполнению
Обязательно к заполнению
ДАННЫЕ ПОЛУЧЕНЫ

данные успешно отправлены

Ведущий инженер компании свяжется с вами в ближайшее время.
мы используем файлы cookie
Используя сайт april-dom.ru, Вы соглашаетесь с использованием файлов cookie, которые указаны в Политике обработки Персональных данных.
/projects/a329/