о проекте

Вместо гаража был спроектирован навес для машины, который прост в строительстве и не требует утепления.

ЭТАЖНОСТЬ
2
ПЛОЩАДЬ
100.31 м²
1
этаж
2
этаж
ПАРАМЕТРЫ ПРОЕКТА
100.31 м²
Общая площадь
100.31 м²
1 Этаж площадь
62,86 м²
Прихожая
3,63 м²
Холл
7,54 м²
Гостиная-столовая
23,86 м²
Кухня
7,64 м²
Кладовая
3,72 м²
Комната 1
10,35 м²
С/у
2,95 м²
1 этаж
2 этаж
все характеристики
жилой дом
Общая площадь
100.31 м²
1 Этаж площадь
62,86 м²
Прихожая
3,63 м²
Холл
7,54 м²
Гостиная-столовая
23,86 м²
Кухня
7,64 м²
Кладовая
3,72 м²
Комната 1
10,35 м²
С/у
2,95 м²
Техническое помещение
3,17 м²
Навес
27,98
Терраса
18,16 м²
2 Этаж площадь
37,45 м²
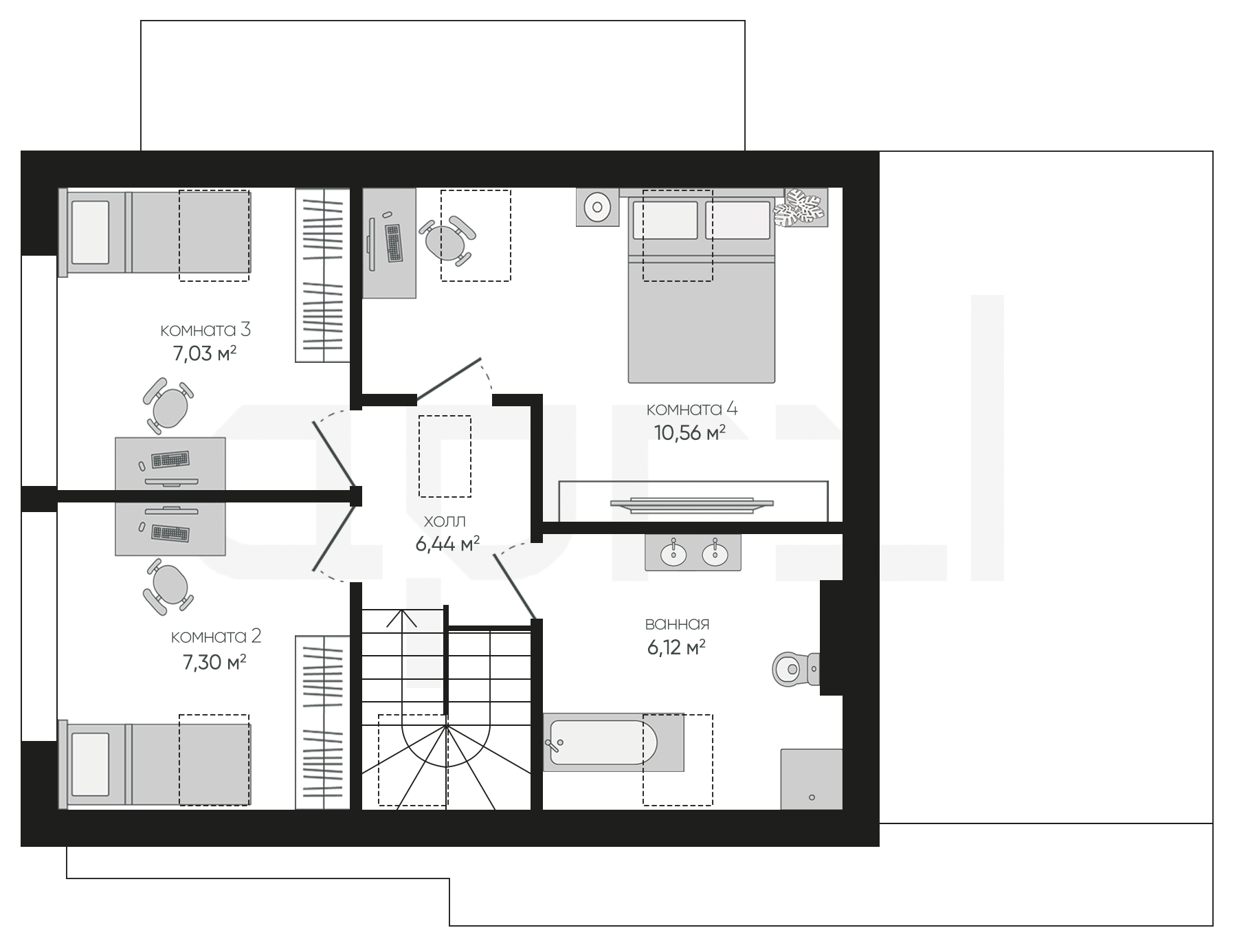
Холл
6,44 м² (2 эт.)
Комната 2
7,30 м² (2 эт.)
Комната 3
7,03 м² (2 эт.)
Комната 4
10,56 м² (2 эт.)
Ванная
6,12 м² (2 эт.)
планировка
все характеристики
все характеристики
жилой дом
Общая площадь
100.31 м²
1 Этаж площадь
62,86 м²
Прихожая
3,63 м²
Холл
7,54 м²
Гостиная-столовая
23,86 м²
Кухня
7,64 м²
Кладовая
3,72 м²
Комната 1
10,35 м²
С/у
2,95 м²
Техническое помещение
3,17 м²
Навес
27,98
Терраса
18,16 м²
2 Этаж площадь
37,45 м²
Холл
6,44 м² (2 эт.)
Комната 2
7,30 м² (2 эт.)
Комната 3
7,03 м² (2 эт.)
Комната 4
10,56 м² (2 эт.)
Ванная
6,12 м² (2 эт.)
экстерьер
гостиная-столовая
спальня
Остались вопросы?
Напиши нам.
Наш ведущий инженер свяжется с вами в ближайшее время.
Обязательно к заполнению
Обязательно к заполнению
ДАННЫЕ ПОЛУЧЕНЫ

данные успешно отправлены

Ведущий инженер компании свяжется с вами в ближайшее время.
мы используем файлы cookie
Используя сайт april-dom.ru, Вы соглашаетесь с использованием файлов cookie, которые указаны в Политике обработки Персональных данных.
/projects/a345/