о проекте

Проект одноэтажного дома в современном стиле предлагает функциональное планирование пространства, большую террасу и гараж на две машины.

ЭТАЖНОСТЬ
1
ПЛОЩАДЬ
177.96 м²
1
этаж
ПАРАМЕТРЫ ПРОЕКТА
177.96 м²
Общая площадь
177.96 м²
Прихожая
6,05 м²
Коридор
11,71 м²
Гостиная-столовая
28,83 м²
Кухня
11,85 м²
Кладовая
2,85 м²
Техническое помещение
3,65 м²
С/у
4,95 м²
Комната 1
11,90 м²
1 этаж
все характеристики
жилой дом
Общая площадь
177.96 м²
Прихожая
6,05 м²
Коридор
11,71 м²
Гостиная-столовая
28,83 м²
Кухня
11,85 м²
Кладовая
2,85 м²
Техническое помещение
3,65 м²
С/у
4,95 м²
Комната 1
11,90 м²
Комната 2
15,54 м²
Комната+гардероб
18,58 м²
Ванная
3,60 м²
Прачечная
3,64 м²
Ванная
8,65 м²
Комната 4
10,16 м²
Гараж
36 м²
Терраса
80,84 м²
планировка
все характеристики
все характеристики
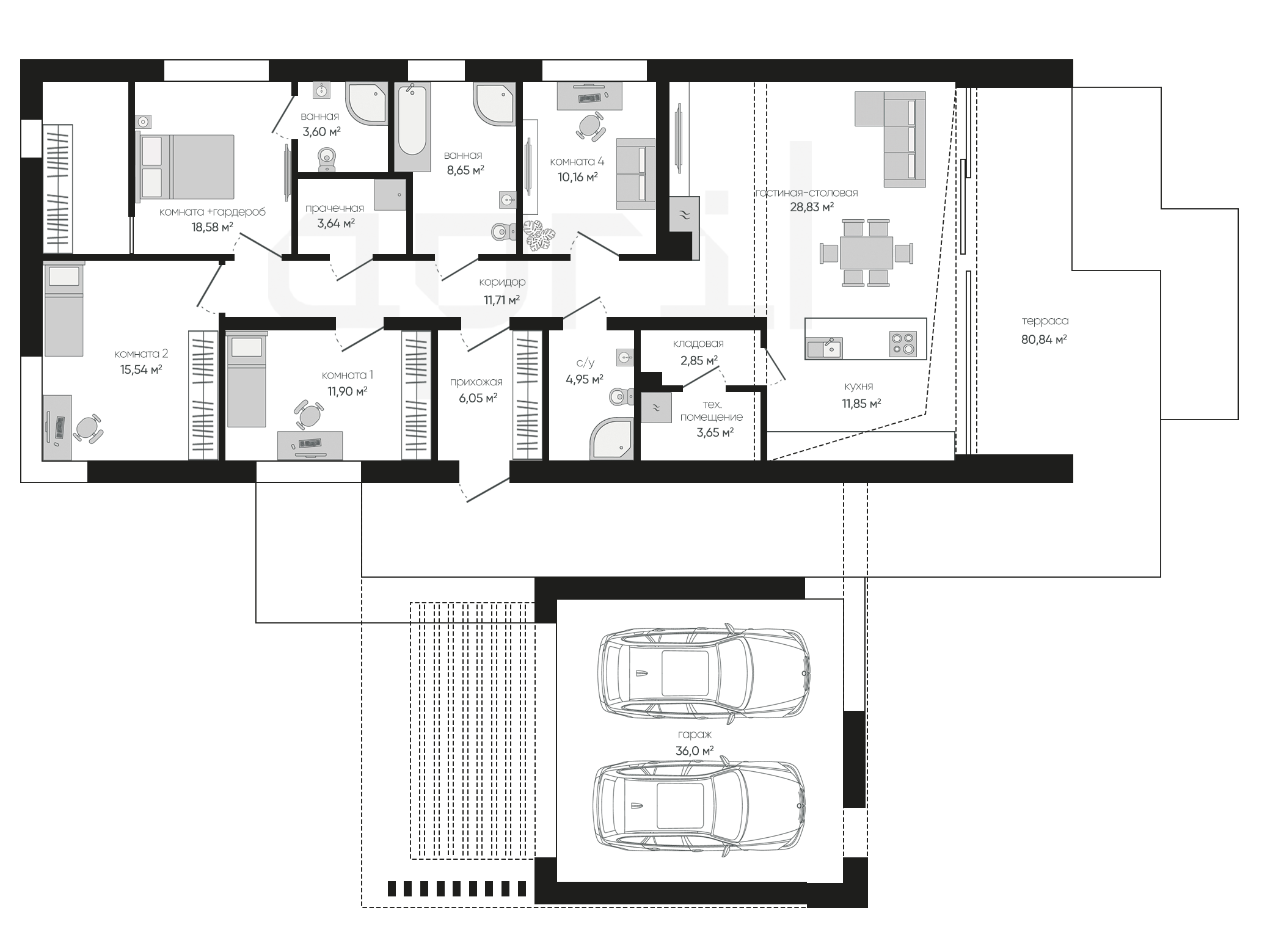
жилой дом
Общая площадь
177.96 м²
Прихожая
6,05 м²
Коридор
11,71 м²
Гостиная-столовая
28,83 м²
Кухня
11,85 м²
Кладовая
2,85 м²
Техническое помещение
3,65 м²
С/у
4,95 м²
Комната 1
11,90 м²
Комната 2
15,54 м²
Комната+гардероб
18,58 м²
Ванная
3,60 м²
Прачечная
3,64 м²
Ванная
8,65 м²
Комната 4
10,16 м²
Гараж
36 м²
Терраса
80,84 м²
экстерьер
Остались вопросы?
Напиши нам.
Наш ведущий инженер свяжется с вами в ближайшее время.
Обязательно к заполнению
Обязательно к заполнению
ДАННЫЕ ПОЛУЧЕНЫ

данные успешно отправлены

Ведущий инженер компании свяжется с вами в ближайшее время.
мы используем файлы cookie
Используя сайт april-dom.ru, Вы соглашаетесь с использованием файлов cookie, которые указаны в Политике обработки Персональных данных.
/projects/a158/