а303
Проект современного одноэтажного дома с террасой.
Крыша двускатная и покрыта темной черепицей, что создает контраст с белым фасадом. Фасад украшен крупными окнами, обеспечивающими обилие естественного света внутри. Дополнительно, элементы из дерева добавляют тепла и природной эстетики, гармонично смотрясь с общей концепцией дома.
Крыша двускатная и покрыта темной черепицей, что создает контраст с белым фасадом. Фасад украшен крупными окнами, обеспечивающими обилие естественного света внутри. Дополнительно, элементы из дерева добавляют тепла и природной эстетики, гармонично смотрясь с общей концепцией дома.
о проекте
Терраса выходит на задний двор и предлагает место для отдыха на свежем воздухе. Деревянные элементы подчеркивают связь с природой и создают комфортное пространство для развлечений или спокойных вечеров.
ЭТАЖНОСТЬ
1
ПЛОЩАДЬ
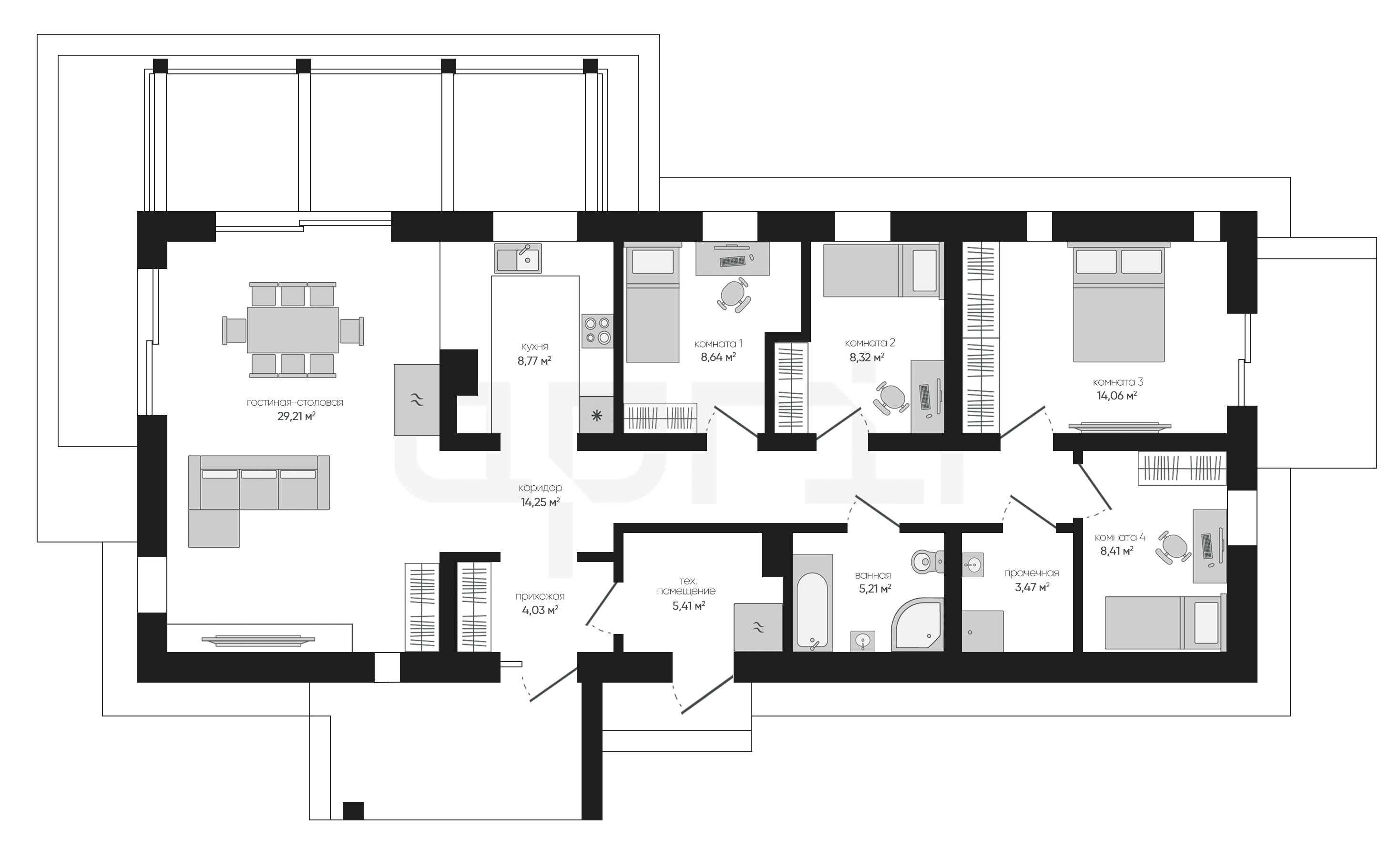
109.78 м²
ПАРАМЕТРЫ ПРОЕКТА
109.78 м²
Общая площадь
109.78 м²
Прихожая
4,03 м²
Коридор
14,25 м²
Гостиная-столовая
29,21 м²
Кухня
8,77 м²
Комната 1
8,64 м²
Комната 2
8,32 м²
Комната 3
14,06 м²
Комната 4
8,41 м²
Остались вопросы?
Напиши нам.
Напиши нам.
Наш ведущий инженер свяжется с вами в ближайшее время.
ДАННЫЕ ПОЛУЧЕНЫ
данные успешно отправлены
Ведущий инженер компании свяжется с вами в ближайшее время.
Дома 1 этаж
Дома 2 этажа
Дома 1 этаж с гаражом
Дома 120 м2
Дома 150 м2
Дома 2 этажа с гаражом
Дома 200 м2
Дома 250 м2
Дома 3 этажа
Дома в скандинавском стиле
Дома в стиле райта
Дома в стиле хайтек
Дома до 100 м2
Дома с гаражом
Дома с мансардой
Дома с сауной
Дома 1 этаж с гаражом и террасой
Дома 1 этаж с террасой
Дома в стиле барнхаус
Дома в стиле шале
Дома из газобетона
Дома из газобетона 1 этаж
Дома из камня
Дома из керамических блоков
Дома из кирпича
Дома из пеноблоков
Дома с зимним садом
Дома с подвалом
Дома с террасой
Дома с цокольным этажом
Фахверковые дома
Дома с бассейном