а289
Проект современного двухэтажного дома с террасой в стиле Хайтек.
Отделка фасада имеет светлые оттенки с контрастом, подчеркивающим своеобразие форм, из которых состоит конструкция дома.
Многочисленные высокие остекления аккуратно интегрированы в кубическую форму здания и подчеркивают современность дизайна, а дерево в отделке фасада добавляет необыкновенный уют.
Отделка фасада имеет светлые оттенки с контрастом, подчеркивающим своеобразие форм, из которых состоит конструкция дома.
Многочисленные высокие остекления аккуратно интегрированы в кубическую форму здания и подчеркивают современность дизайна, а дерево в отделке фасада добавляет необыкновенный уют.
о проекте
Благодаря продуманной архитектуре из двух наложенных друг на друга кубовидных форм, проект не только интригует своей формой, но и, прежде всего, обеспечивает комфортное полезное пространство при минимальной застроенной площади.
ЭТАЖНОСТЬ
2
ПЛОЩАДЬ
130.93 м²
ПАРАМЕТРЫ ПРОЕКТА
130.93 м²
Общая площадь
130.93 м²
1 Этаж площадь
70,22 м²
Прихожая
5,54 м²
Гостиная-столовая-кухня
50,82 м²
Техническое помещение
4,80 м²
С/у
3,33 м²
Лестница
5,73 м²
2 Этаж площадь
60,71 м²
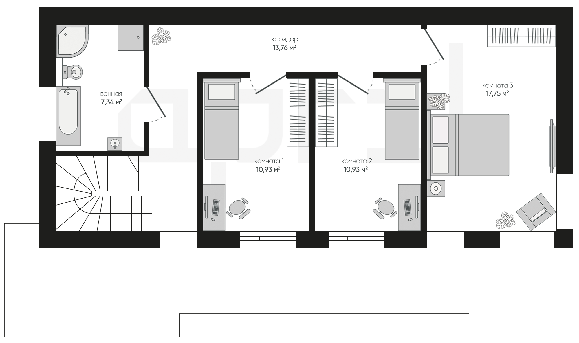
Коридор
13,76 м² (2 эт.)
Остались вопросы?
Напиши нам.
Напиши нам.
Наш ведущий инженер свяжется с вами в ближайшее время.
ДАННЫЕ ПОЛУЧЕНЫ
данные успешно отправлены
Ведущий инженер компании свяжется с вами в ближайшее время.
Дома 1 этаж
Дома 2 этажа
Дома 1 этаж с гаражом
Дома 120 м2
Дома 150 м2
Дома 2 этажа с гаражом
Дома 200 м2
Дома 250 м2
Дома 3 этажа
Дома в скандинавском стиле
Дома в стиле райта
Дома в стиле хайтек
Дома до 100 м2
Дома с гаражом
Дома с мансардой
Дома с сауной
Дома 1 этаж с гаражом и террасой
Дома 1 этаж с террасой
Дома в стиле барнхаус
Дома в стиле шале
Дома из газобетона
Дома из газобетона 1 этаж
Дома из камня
Дома из керамических блоков
Дома из кирпича
Дома из пеноблоков
Дома с зимним садом
Дома с подвалом
Дома с террасой
Дома с цокольным этажом
Фахверковые дома
Дома с бассейном