о проекте

Архитектурно этот проект относится к строго современному стилю, в нем есть и некоторые классические акценты, представленные прежде всего портиком, расположенным спереди. Таким образом, проект гармонично сочетает в себе современность и традиции.

ЭТАЖНОСТЬ
2
ПЛОЩАДЬ
179.58 м²
1
этаж
2
этаж
ПАРАМЕТРЫ ПРОЕКТА
179.58 м²
Общая площадь
179.58 м²
1 Этаж площадь
110,34 м²
Прихожая
5,16 м²
Холл
8,66 м²
Гостиная-столовая
32,60 м²
Кухня
12,49 м²
Кладовая
2,85 м²
Комната 1
14,93 м²
С/у
3,75 м²
1 этаж
2 этаж
все характеристики
жилой дом
Общая площадь
179.58 м²
1 Этаж площадь
110,34 м²
Прихожая
5,16 м²
Холл
8,66 м²
Гостиная-столовая
32,60 м²
Кухня
12,49 м²
Кладовая
2,85 м²
Комната 1
14,93 м²
С/у
3,75 м²
Лестница
2,36 м²
Техническое помещение
9,63 м²
Гараж
17,91 м²
2 Этаж площадь
69,24 м²
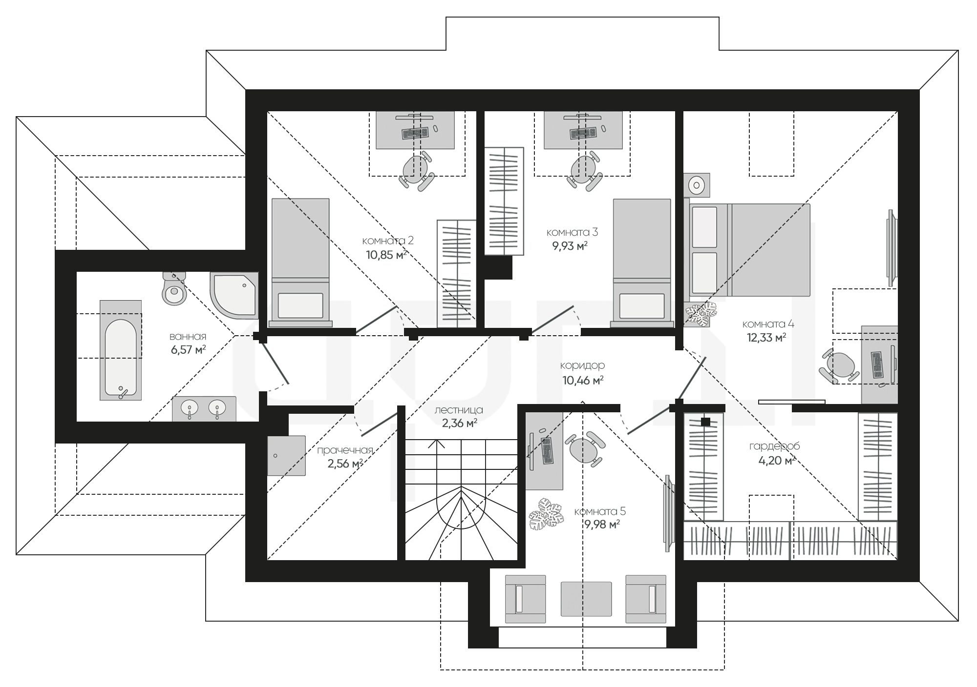
Лестница
2,36 м² (2 эт.)
Коридор
10,46 м² (2 эт.)
Прачечная
2,56 м² (2 эт.)
Ванная
6,57 м² (2 эт.)
Комната 2
10,85 м² (2 эт.)
Комната 3
9,93 м² (2 эт.)
Комната 4
12,33 м² (2 эт.)
Гардероб
4,20 м² (2 эт.)
Комната 5
9,98 м² (2 эт.)
планировка
все характеристики
все характеристики
жилой дом
Общая площадь
179.58 м²
1 Этаж площадь
110,34 м²
Прихожая
5,16 м²
Холл
8,66 м²
Гостиная-столовая
32,60 м²
Кухня
12,49 м²
Кладовая
2,85 м²
Комната 1
14,93 м²
С/у
3,75 м²
Лестница
2,36 м²
Техническое помещение
9,63 м²
Гараж
17,91 м²
2 Этаж площадь
69,24 м²
Лестница
2,36 м² (2 эт.)
Коридор
10,46 м² (2 эт.)
Прачечная
2,56 м² (2 эт.)
Ванная
6,57 м² (2 эт.)
Комната 2
10,85 м² (2 эт.)
Комната 3
9,93 м² (2 эт.)
Комната 4
12,33 м² (2 эт.)
Гардероб
4,20 м² (2 эт.)
Комната 5
9,98 м² (2 эт.)
экстерьер
Остались вопросы?
Напиши нам.
Наш ведущий инженер свяжется с вами в ближайшее время.
Обязательно к заполнению
Обязательно к заполнению
ДАННЫЕ ПОЛУЧЕНЫ

данные успешно отправлены

Ведущий инженер компании свяжется с вами в ближайшее время.
мы используем файлы cookie
Используя сайт april-dom.ru, Вы соглашаетесь с использованием файлов cookie, которые указаны в Политике обработки Персональных данных.
/projects/a281/