о проекте

Проект представляет собой гармоничное сочетание бескомпромиссной архитектуры в скандинавском стиле и функциональности частного дома с мансардой.

ЭТАЖНОСТЬ
2
ПЛОЩАДЬ
189.96 м²
1
этаж
2
этаж
ПАРАМЕТРЫ ПРОЕКТА
189.96 м²
Общая площадь
189.96 м²
1 Этаж площадь
121,32 м²
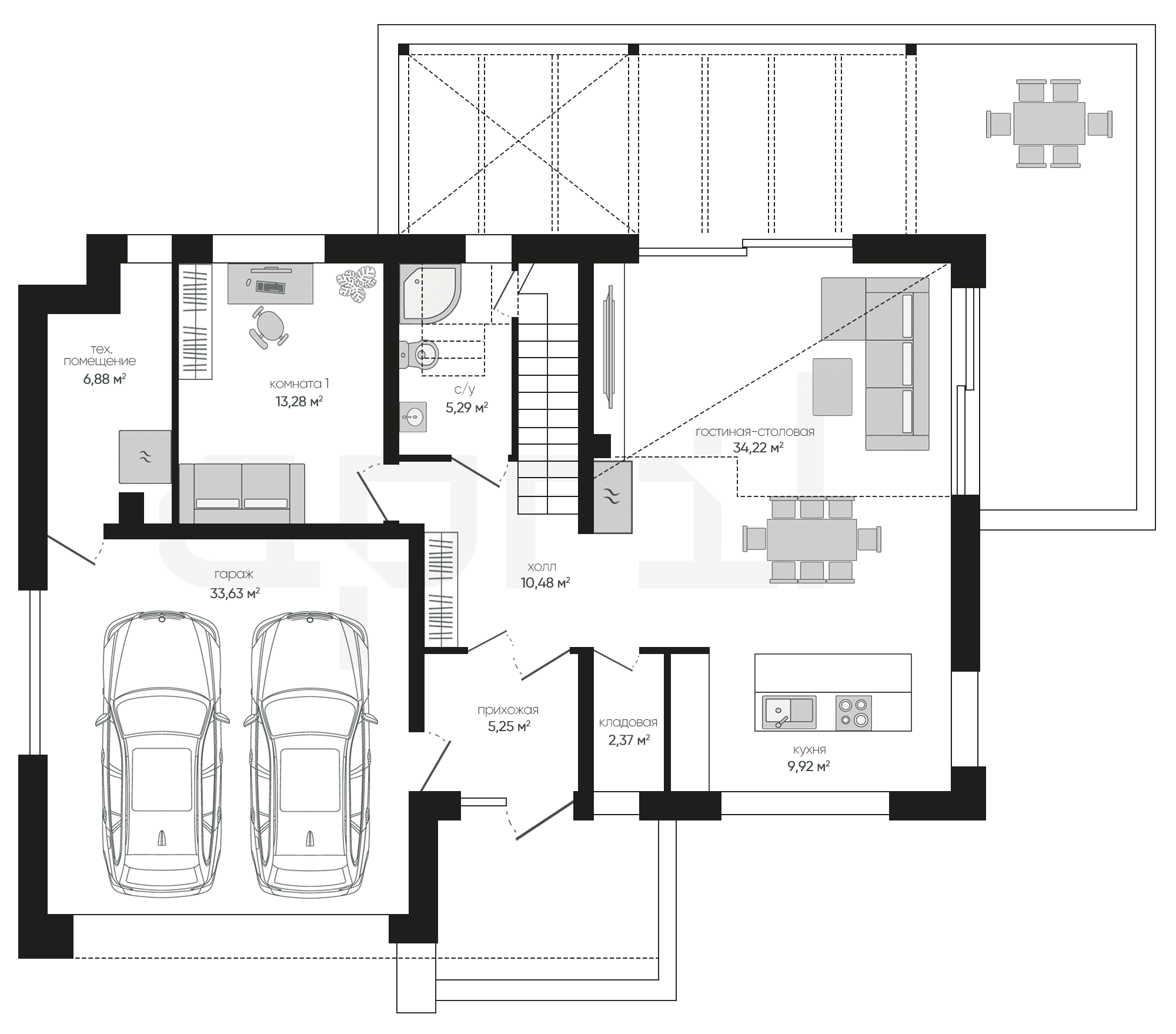
Прихожая
5,25 м²
Холл
10,48 м²
Гостиная-столовая
34,22 м²
Кухня
9,92 м²
Кладовая
2,37 м²
С/у
5,29 м²
Комната 1
13,28 м²
1 этаж
2 этаж
все характеристики
жилой дом
Общая площадь
189.96 м²
1 Этаж площадь
121,32 м²
Прихожая
5,25 м²
Холл
10,48 м²
Гостиная-столовая
34,22 м²
Кухня
9,92 м²
Кладовая
2,37 м²
С/у
5,29 м²
Комната 1
13,28 м²
Техническое помещение
6,88 м²
Гараж
33,63 м²
2 Этаж площадь
68,64 м²
Холл
10,53 м² (2 эт.)
Комната 2
14,66 м² (2 эт.)
Комната 3
15,60 м² (2 эт.)
Ванная
7,95 м² (2 эт.)
Комната 4
11,56 м² (2 эт.)
Гардероб
4,40 м² (2 эт.)
Ванная
3,94 м² (2 эт.)
планировка
все характеристики
все характеристики
жилой дом
Общая площадь
189.96 м²
1 Этаж площадь
121,32 м²
Прихожая
5,25 м²
Холл
10,48 м²
Гостиная-столовая
34,22 м²
Кухня
9,92 м²
Кладовая
2,37 м²
С/у
5,29 м²
Комната 1
13,28 м²
Техническое помещение
6,88 м²
Гараж
33,63 м²
2 Этаж площадь
68,64 м²
Холл
10,53 м² (2 эт.)
Комната 2
14,66 м² (2 эт.)
Комната 3
15,60 м² (2 эт.)
Ванная
7,95 м² (2 эт.)
Комната 4
11,56 м² (2 эт.)
Гардероб
4,40 м² (2 эт.)
Ванная
3,94 м² (2 эт.)
экстерьер
гостиная-столовая
Остались вопросы?
Напиши нам.
Наш ведущий инженер свяжется с вами в ближайшее время.
Обязательно к заполнению
Обязательно к заполнению
ДАННЫЕ ПОЛУЧЕНЫ

данные успешно отправлены

Ведущий инженер компании свяжется с вами в ближайшее время.
мы используем файлы cookie
Используя сайт april-dom.ru, Вы соглашаетесь с использованием файлов cookie, которые указаны в Политике обработки Персональных данных.
/projects/a244/