a233
Проект современного одноэтажного дома с террасой, гаражом и навесом.
Дом имеет двускатную крышу и плоскую крышу над гаражом. Внешний фасад спроектирован в коричнево-белых тонах. Бетонные беседки с вертикальными столбами, используемые у входа, в навесе и на террасе, придают форме этого дома современный характер.
Дом имеет двускатную крышу и плоскую крышу над гаражом. Внешний фасад спроектирован в коричнево-белых тонах. Бетонные беседки с вертикальными столбами, используемые у входа, в навесе и на террасе, придают форме этого дома современный характер.
о проекте
Особенностью, отличающей этот проект от других проектов домов, является дополнительный навес, обеспечивающий крытое парковочное место для второго автомобиля.
ЭТАЖНОСТЬ
1
ПЛОЩАДЬ
179.36 м²
ПАРАМЕТРЫ ПРОЕКТА
179.36 м²
Общая площадь
179.36 м²
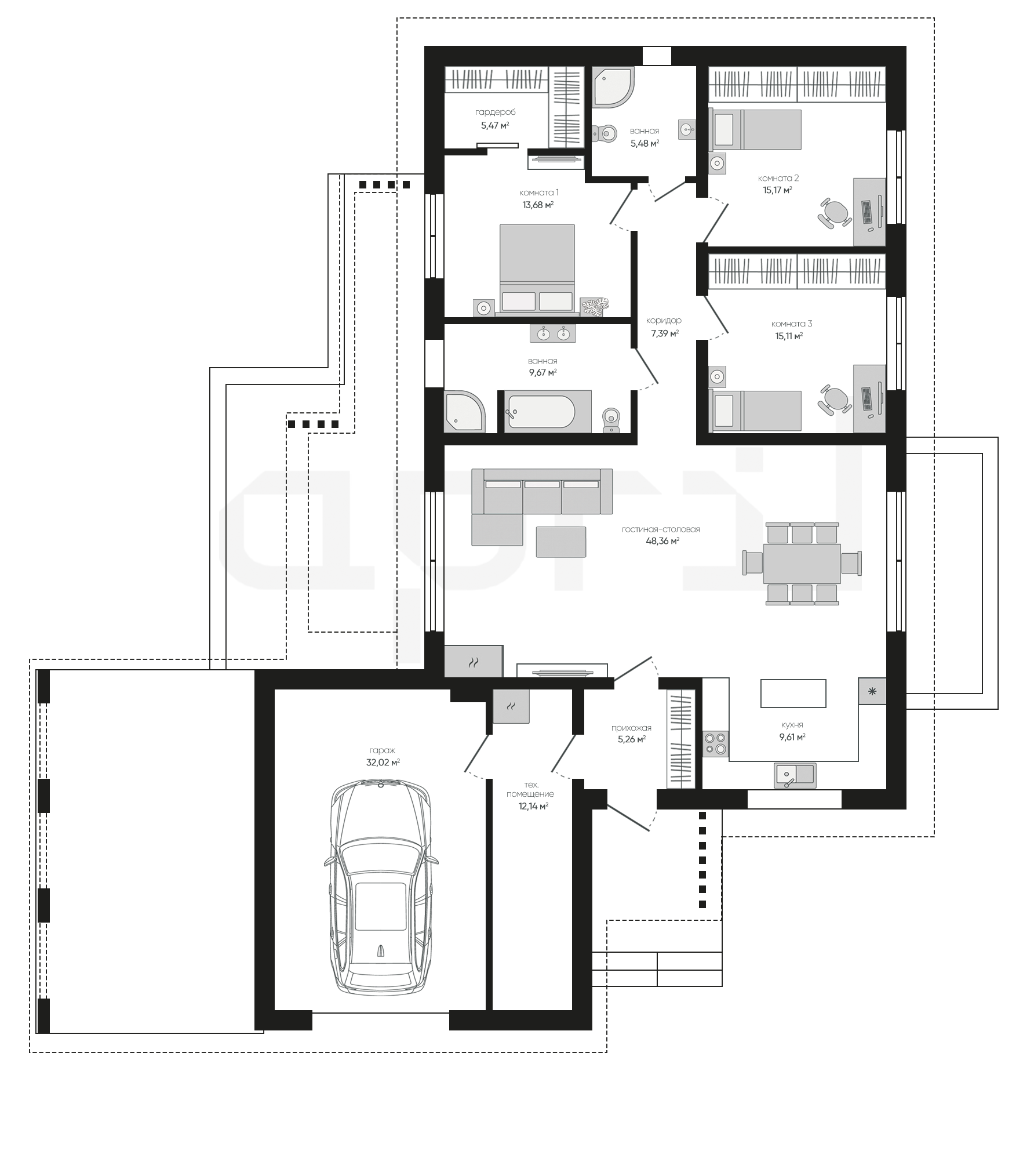
Прихожая
5,26 м²
Гостиная-столовая
48,36 м²
Кухня
9,61 м²
Коридор
7,39 м²
Ванная
9,67 м²
Комната 1
13,68 м²
Гардероб
5,47 м²
Ванная
5,48 м²
Остались вопросы?
Напиши нам.
Напиши нам.
Наш ведущий инженер свяжется с вами в ближайшее время.
ДАННЫЕ ПОЛУЧЕНЫ
данные успешно отправлены
Ведущий инженер компании свяжется с вами в ближайшее время.
Дома 1 этаж
Дома 2 этажа
Дома 1 этаж с гаражом
Дома 120 м2
Дома 150 м2
Дома 2 этажа с гаражом
Дома 200 м2
Дома 250 м2
Дома 3 этажа
Дома в скандинавском стиле
Дома в стиле райта
Дома в стиле хайтек
Дома до 100 м2
Дома с гаражом
Дома с мансардой
Дома с сауной
Дома 1 этаж с гаражом и террасой
Дома 1 этаж с террасой
Дома в стиле барнхаус
Дома в стиле шале
Дома из газобетона
Дома из газобетона 1 этаж
Дома из камня
Дома из керамических блоков
Дома из кирпича
Дома из пеноблоков
Дома с зимним садом
Дома с подвалом
Дома с террасой
Дома с цокольным этажом
Фахверковые дома
Дома с бассейном