а415
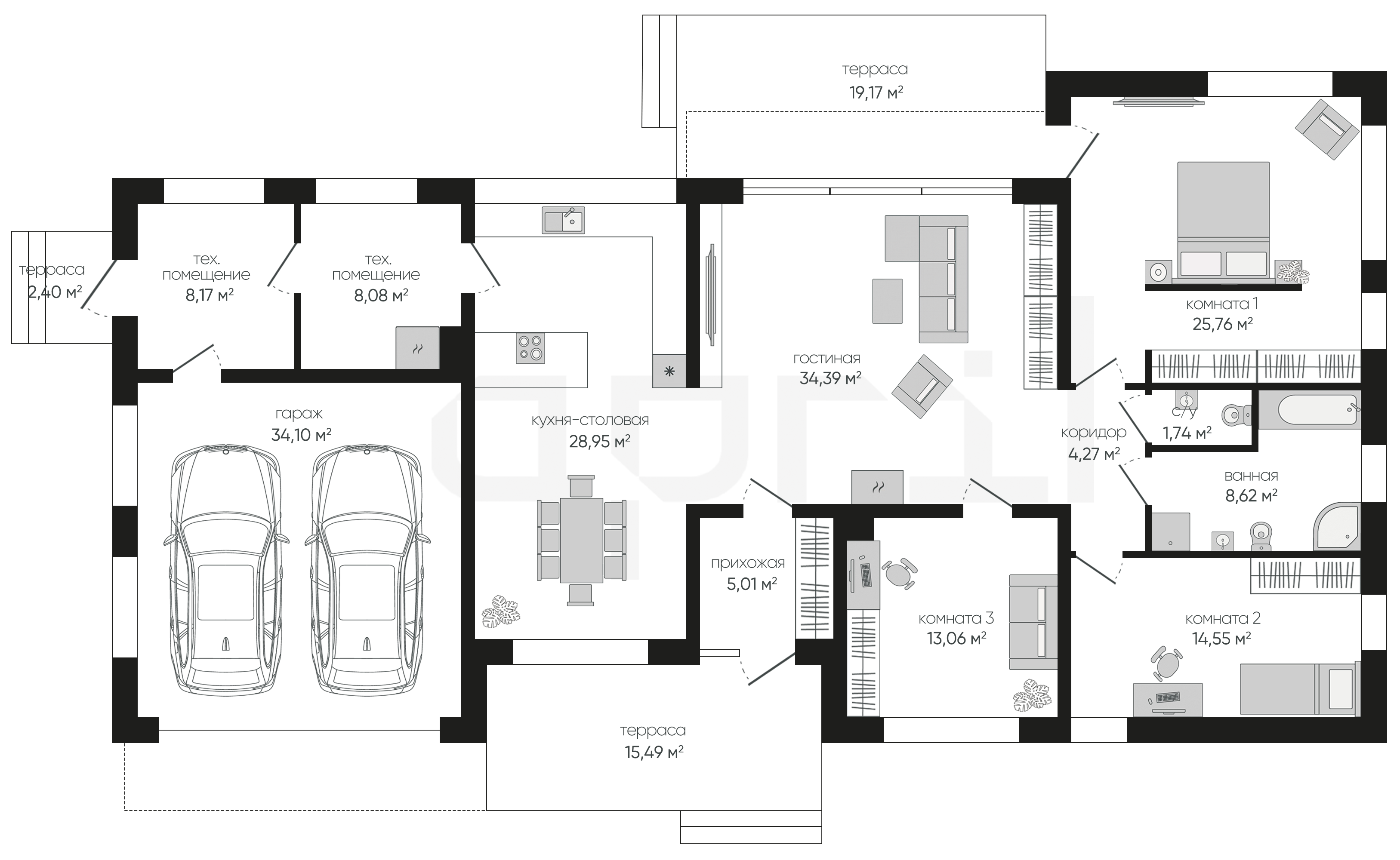
Проект одноэтажного дома с гаражом и террасой.
Дом в стиле Хайтек имеет плоскую крышу, современную архитектуру и прямые линии.
Дизайн сочетает темную отделку из клинкерной плитки и светлую штукатурку, а также элементы из дерева.
Дом в стиле Хайтек имеет плоскую крышу, современную архитектуру и прямые линии.
Дизайн сочетает темную отделку из клинкерной плитки и светлую штукатурку, а также элементы из дерева.
о проекте
Проект обращает на себя внимание простой и оригинальной отделкой, плоской кровлей, геометрической формой и понятной функциональной планировкой.
ЭТАЖНОСТЬ
1
ПЛОЩАДЬ
186.70 м²
ПАРАМЕТРЫ ПРОЕКТА
186.70 м²
Общая площадь
186.70 м²
Прихожая
5,01 м²
Гостиная
34,39 м²
Кухня-столовая
28,95 м²
Коридор
4,27 м²
Комната 1
25,76 м²
С/у
1,74 м²
Ванная
8,62 м²
Комната 2
14,55 м²
Остались вопросы?
Напиши нам.
Напиши нам.
Наш ведущий инженер свяжется с вами в ближайшее время.
ДАННЫЕ ПОЛУЧЕНЫ
данные успешно отправлены
Ведущий инженер компании свяжется с вами в ближайшее время.
Дома 1 этаж
Дома 2 этажа
Дома 1 этаж с гаражом
Дома 120 м2
Дома 150 м2
Дома 2 этажа с гаражом
Дома 200 м2
Дома 250 м2
Дома 3 этажа
Дома в скандинавском стиле
Дома в стиле райта
Дома в стиле хайтек
Дома до 100 м2
Дома с гаражом
Дома с мансардой
Дома с сауной
Дома 1 этаж с гаражом и террасой
Дома 1 этаж с террасой
Дома в стиле барнхаус
Дома в стиле шале
Дома из газобетона
Дома из газобетона 1 этаж
Дома из камня
Дома из керамических блоков
Дома из кирпича
Дома из пеноблоков
Дома с зимним садом
Дома с подвалом
Дома с террасой
Дома с цокольным этажом
Фахверковые дома
Дома с бассейном