a197
Проект небольшого одноэтажного дома в стиле Барнхаус.
На фасаде использована темная клинкерная плитка ручной формовки с шероховатой структурой. Входную зону и террасу украшает фасадная доска. Дизайн дома дополняют большие антрацитовые окна, серая листовая сталь, покрывающая крышу, а также стальная и стеклянная крыша над входом.
На фасаде использована темная клинкерная плитка ручной формовки с шероховатой структурой. Входную зону и террасу украшает фасадная доска. Дизайн дома дополняют большие антрацитовые окна, серая листовая сталь, покрывающая крышу, а также стальная и стеклянная крыша над входом.
о проекте
Простая, традиционная форма, покрытая двускатной крышей, приобрела современный облик благодаря использованию современных материалов и деталей.
ЭТАЖНОСТЬ
1
ПЛОЩАДЬ
99.30 м²
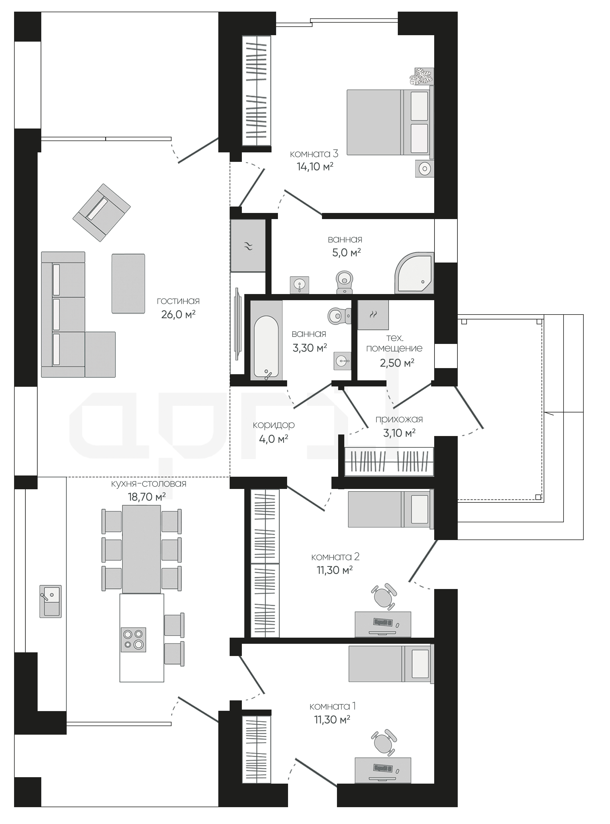
ПАРАМЕТРЫ ПРОЕКТА
99.30 м²
Общая площадь
99.30 м²
Прихожая
3,10 м²
Коридор
4 м²
Гостиная
26 м²
Кухня-столовая
18,70 м²
Комната 1
11,30 м²
Комната 2
11,30 м²
Комната 3
14,10 м²
Ванная
5 м²
Остались вопросы?
Напиши нам.
Напиши нам.
Наш ведущий инженер свяжется с вами в ближайшее время.
ДАННЫЕ ПОЛУЧЕНЫ
данные успешно отправлены
Ведущий инженер компании свяжется с вами в ближайшее время.
Дома 1 этаж
Дома 2 этажа
Дома 1 этаж с гаражом
Дома 120 м2
Дома 150 м2
Дома 2 этажа с гаражом
Дома 200 м2
Дома 250 м2
Дома 3 этажа
Дома в скандинавском стиле
Дома в стиле райта
Дома в стиле хайтек
Дома до 100 м2
Дома с гаражом
Дома с мансардой
Дома с сауной
Дома 1 этаж с гаражом и террасой
Дома 1 этаж с террасой
Дома в стиле барнхаус
Дома в стиле шале
Дома из газобетона
Дома из газобетона 1 этаж
Дома из камня
Дома из керамических блоков
Дома из кирпича
Дома из пеноблоков
Дома с зимним садом
Дома с подвалом
Дома с террасой
Дома с цокольным этажом
Фахверковые дома
Дома с бассейном