о проекте

Проект подходит для современных семей, желающих жить в гармонии с природой и современными тенденциями.

ЭТАЖНОСТЬ
2
ПЛОЩАДЬ
123.31 м²
1
этаж
2
этаж
ПАРАМЕТРЫ ПРОЕКТА
123.31 м²
Общая площадь
123.31 м²
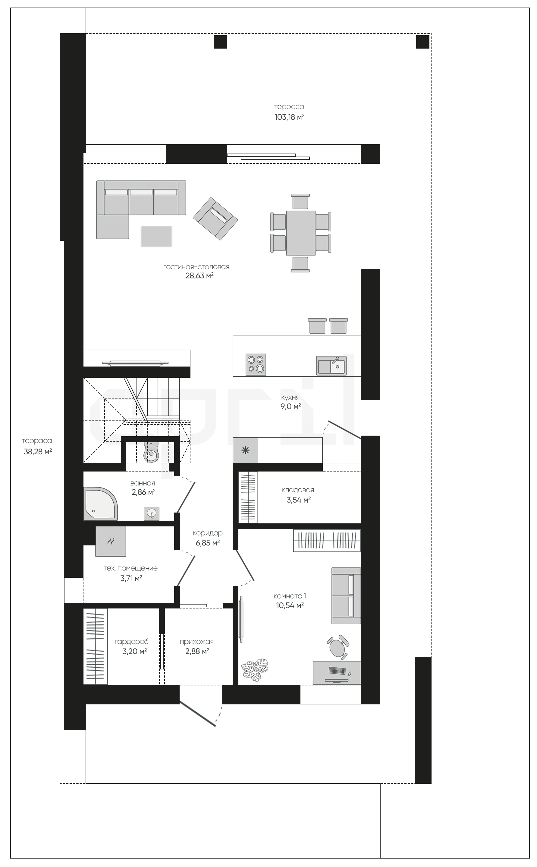
1 Этаж площадь
71,21 м²
Прихожая
2,88 м²
Гардероб
3,20 м²
Коридор
6,85 м²
Гостиная-столовая
28,63 м²
Кухня
9 м²
Кладовая
3,54 м²
Комната 1
10,54 м²
1 этаж
2 этаж
все характеристики
жилой дом
Общая площадь
123.31 м²
1 Этаж площадь
71,21 м²
Прихожая
2,88 м²
Гардероб
3,20 м²
Коридор
6,85 м²
Гостиная-столовая
28,63 м²
Кухня
9 м²
Кладовая
3,54 м²
Комната 1
10,54 м²
Ванная
2,86 м²
Техническое помещение
3,71 м²
Терраса
103,18 м²
Терраса
38,28 м²
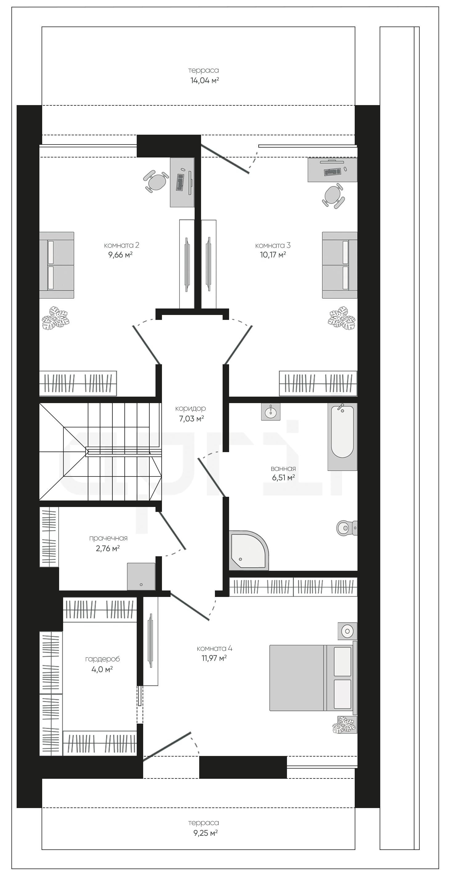
2 Этаж площадь
52,10 м²
Коридор
7,03 м² (2 эт.)
Комната 2
9,66 м² (2 эт.)
Комната 3
10,17 м² (2 эт.)
Ванная
6,51 м² (2 эт.)
Комната 4
11,97 м² (2 эт.)
Гардероб
4 м² (2 эт.)
Прачечная
2,76 м² (2 эт.)
Терраса
14,04 м² (2 эт.)
Терраса
9,25 м² (2 эт.)
планировка
все характеристики
все характеристики
жилой дом
Общая площадь
123.31 м²
1 Этаж площадь
71,21 м²
Прихожая
2,88 м²
Гардероб
3,20 м²
Коридор
6,85 м²
Гостиная-столовая
28,63 м²
Кухня
9 м²
Кладовая
3,54 м²
Комната 1
10,54 м²
Ванная
2,86 м²
Техническое помещение
3,71 м²
Терраса
103,18 м²
Терраса
38,28 м²
2 Этаж площадь
52,10 м²
Коридор
7,03 м² (2 эт.)
Комната 2
9,66 м² (2 эт.)
Комната 3
10,17 м² (2 эт.)
Ванная
6,51 м² (2 эт.)
Комната 4
11,97 м² (2 эт.)
Гардероб
4 м² (2 эт.)
Прачечная
2,76 м² (2 эт.)
Терраса
14,04 м² (2 эт.)
Терраса
9,25 м² (2 эт.)
экстерьер
Остались вопросы?
Напиши нам.
Наш ведущий инженер свяжется с вами в ближайшее время.
Обязательно к заполнению
Обязательно к заполнению
ДАННЫЕ ПОЛУЧЕНЫ

данные успешно отправлены

Ведущий инженер компании свяжется с вами в ближайшее время.
мы используем файлы cookie
Используя сайт april-dom.ru, Вы соглашаетесь с использованием файлов cookie, которые указаны в Политике обработки Персональных данных.
/projects/a170/