о проекте

Помимо минималистичной формы, конструкция крыши придает дому современный и оригинальный вид. Дом был покрыт экономичной двускатной крышей без карниза, что находит немало сторонников среди людей, ценящих модернистские решения.

ЭТАЖНОСТЬ
2
ПЛОЩАДЬ
127.24 м²
1
этаж
2
этаж
ПАРАМЕТРЫ ПРОЕКТА
127.24 м²
Общая площадь
127.24 м²
1 Этаж площадь
72 м²
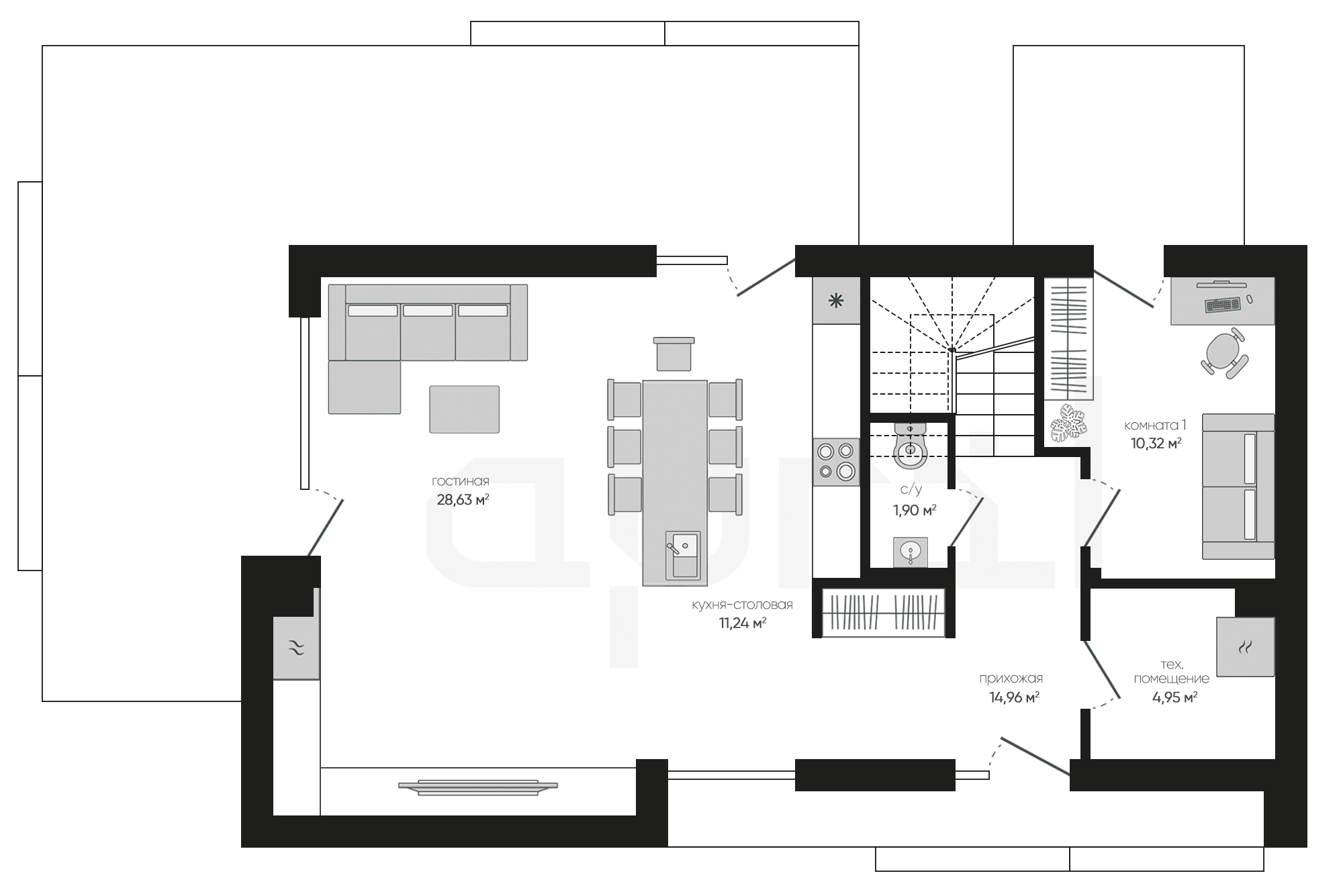
Прихожая
14,96 м²
Гостиная
28,63 м²
Кухня-столовая
11,24 м²
С/у
1,90 м²
Комната 1
10,32 м²
Техническое помещение
4,95 м²
2 Этаж площадь
55,24 м²
1 этаж
2 этаж
все характеристики
жилой дом
Общая площадь
127.24 м²
1 Этаж площадь
72 м²
Прихожая
14,96 м²
Гостиная
28,63 м²
Кухня-столовая
11,24 м²
С/у
1,90 м²
Комната 1
10,32 м²
Техническое помещение
4,95 м²
2 Этаж площадь
55,24 м²
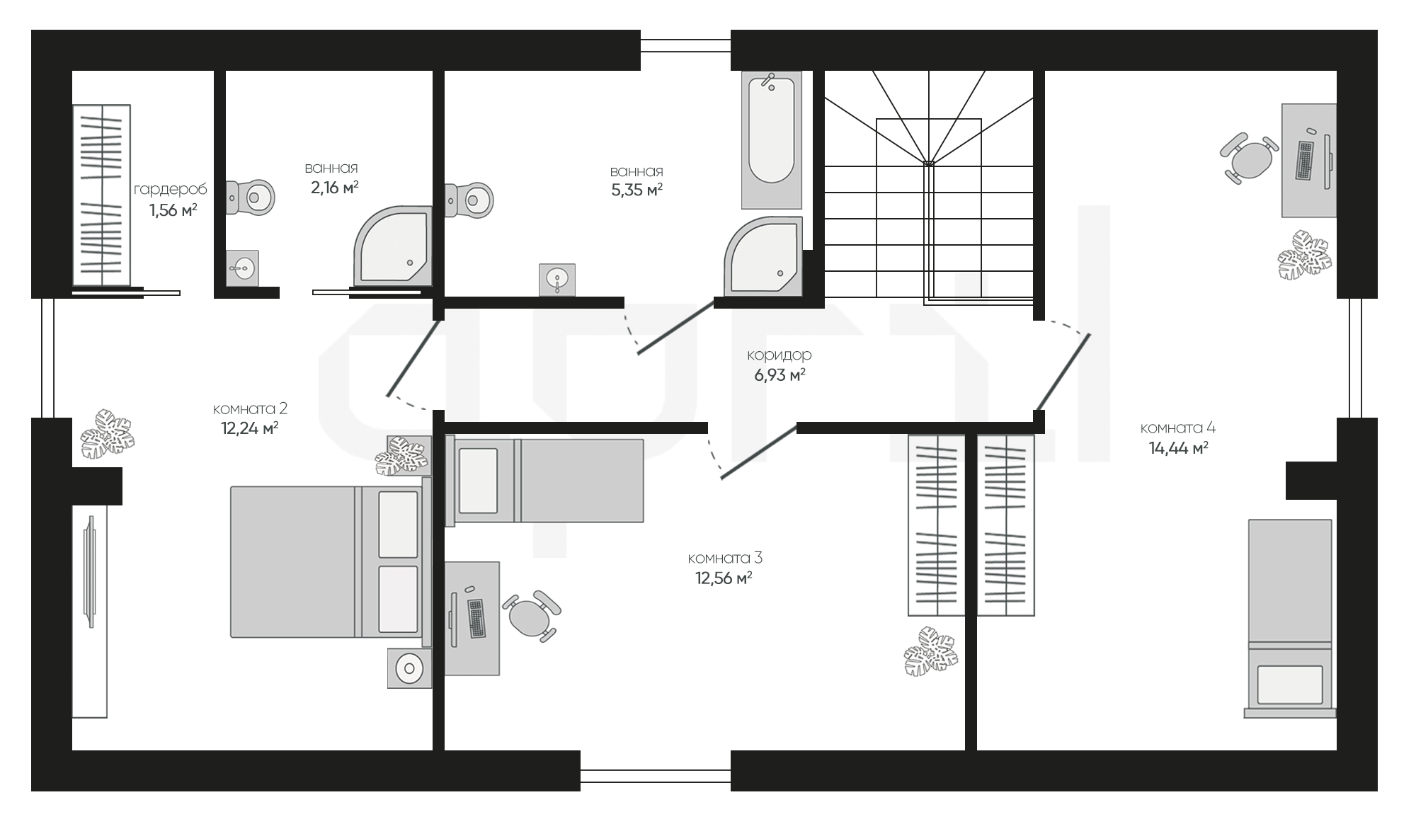
Коридор
6,93 м² (2 эт.)
Ванная
5,35 м² (2 эт.)
Комната 2
12,24 м² (2 эт.)
Гардероб
1,56 м² (2 эт.)
Ванная
2,16 м² (2 эт.)
Комната 3
12,56 м² (2 эт.)
Комната 4
14,44 м² (2 эт.)
планировка
все характеристики
все характеристики
жилой дом
Общая площадь
127.24 м²
1 Этаж площадь
72 м²
Прихожая
14,96 м²
Гостиная
28,63 м²
Кухня-столовая
11,24 м²
С/у
1,90 м²
Комната 1
10,32 м²
Техническое помещение
4,95 м²
2 Этаж площадь
55,24 м²
Коридор
6,93 м² (2 эт.)
Ванная
5,35 м² (2 эт.)
Комната 2
12,24 м² (2 эт.)
Гардероб
1,56 м² (2 эт.)
Ванная
2,16 м² (2 эт.)
Комната 3
12,56 м² (2 эт.)
Комната 4
14,44 м² (2 эт.)
экстерьер
Остались вопросы?
Напиши нам.
Наш ведущий инженер свяжется с вами в ближайшее время.
Обязательно к заполнению
Обязательно к заполнению
ДАННЫЕ ПОЛУЧЕНЫ

данные успешно отправлены

Ведущий инженер компании свяжется с вами в ближайшее время.
мы используем файлы cookie
Используя сайт april-dom.ru, Вы соглашаетесь с использованием файлов cookie, которые указаны в Политике обработки Персональных данных.
/projects/a221/