о проекте

Двухэтажный современный дом отличается эстетикой, функциональностью и инновационным подходом к дизайну, делая его уникальным и привлекательным для жильцов.

ЭТАЖНОСТЬ
2
ПЛОЩАДЬ
119.37 м²
1
этаж
2
этаж
ПАРАМЕТРЫ ПРОЕКТА
119.37 м²
Общая площадь
119.37 м²
1 Этаж площадь
60,48 м²
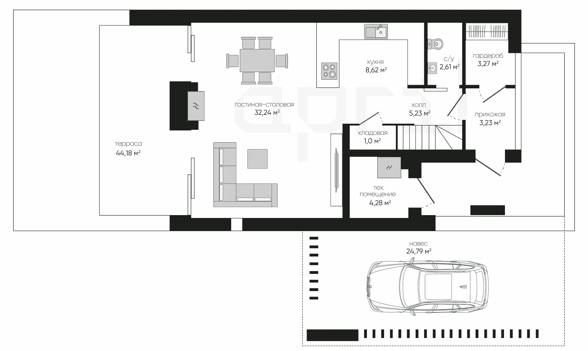
Прихожая
3,23 м²
Гардероб
3,27 м²
Холл
5,23 м²
С/у
2,61 м²
Кухня
8,62 м²
Кладовая
1,0 м²
Гостиная+столовая
32,24 м²
1 этаж
2 этаж
все характеристики
жилой дом
Общая площадь
119.37 м²
1 Этаж площадь
60,48 м²
Прихожая
3,23 м²
Гардероб
3,27 м²
Холл
5,23 м²
С/у
2,61 м²
Кухня
8,62 м²
Кладовая
1,0 м²
Гостиная+столовая
32,24 м²
Техническое помещение
4,28 м²
Навес
24,79 м²
Терраса
44,18 м²
2 Этаж площадь
58,89 м²
Коридор
4,85 м² (2 эт.)
Комната 1
13,74 м² (2 эт.)
Комната 2
17,27 м² (2 эт.)
Гардероб
3,84 м² (2 эт.)
Ванная комната
6,77 м² (2 эт.)
Комната 3
12,42 м² (2 эт.)
Терраса
8,14 м² (2 эт.)
Терраса
11,95 м² (2 эт.)
планировка
все характеристики
все характеристики
жилой дом
Общая площадь
119.37 м²
1 Этаж площадь
60,48 м²
Прихожая
3,23 м²
Гардероб
3,27 м²
Холл
5,23 м²
С/у
2,61 м²
Кухня
8,62 м²
Кладовая
1,0 м²
Гостиная+столовая
32,24 м²
Техническое помещение
4,28 м²
Навес
24,79 м²
Терраса
44,18 м²
2 Этаж площадь
58,89 м²
Коридор
4,85 м² (2 эт.)
Комната 1
13,74 м² (2 эт.)
Комната 2
17,27 м² (2 эт.)
Гардероб
3,84 м² (2 эт.)
Ванная комната
6,77 м² (2 эт.)
Комната 3
12,42 м² (2 эт.)
Терраса
8,14 м² (2 эт.)
Терраса
11,95 м² (2 эт.)
экстерьер
гостиная-столовая
спальня
ванная
Остались вопросы?
Напиши нам.
Наш ведущий инженер свяжется с вами в ближайшее время.
Обязательно к заполнению
Обязательно к заполнению
ДАННЫЕ ПОЛУЧЕНЫ

данные успешно отправлены

Ведущий инженер компании свяжется с вами в ближайшее время.
мы используем файлы cookie
Используя сайт april-dom.ru, Вы соглашаетесь с использованием файлов cookie, которые указаны в Политике обработки Персональных данных.
/projects/a140/