а525
Проект современного одноэтажного дома с двускатной крышей, гаражом и террасой.
В отделке используется комбинация светлой декоративной штукатурки и деревянного планкена с вертикальной и диагональной раскладкой. Черепица терракотового цвета эффектно контрастирует с белыми стенами. Встроенный гараж на один автомобиль гармонично вписан в общую геометрию здания.
В отделке используется комбинация светлой декоративной штукатурки и деревянного планкена с вертикальной и диагональной раскладкой. Черепица терракотового цвета эффектно контрастирует с белыми стенами. Встроенный гараж на один автомобиль гармонично вписан в общую геометрию здания.
о проекте
Дом вдохновлен скандинавской архитектурой и адаптирован для узких участков. Проект разработан для комфортного проживания семьи из 3–4 человек.
ЭТАЖНОСТЬ
1
ПЛОЩАДЬ
104.71 м²
ПАРАМЕТРЫ ПРОЕКТА
104.71 м²
Общая площадь
104.71 м²
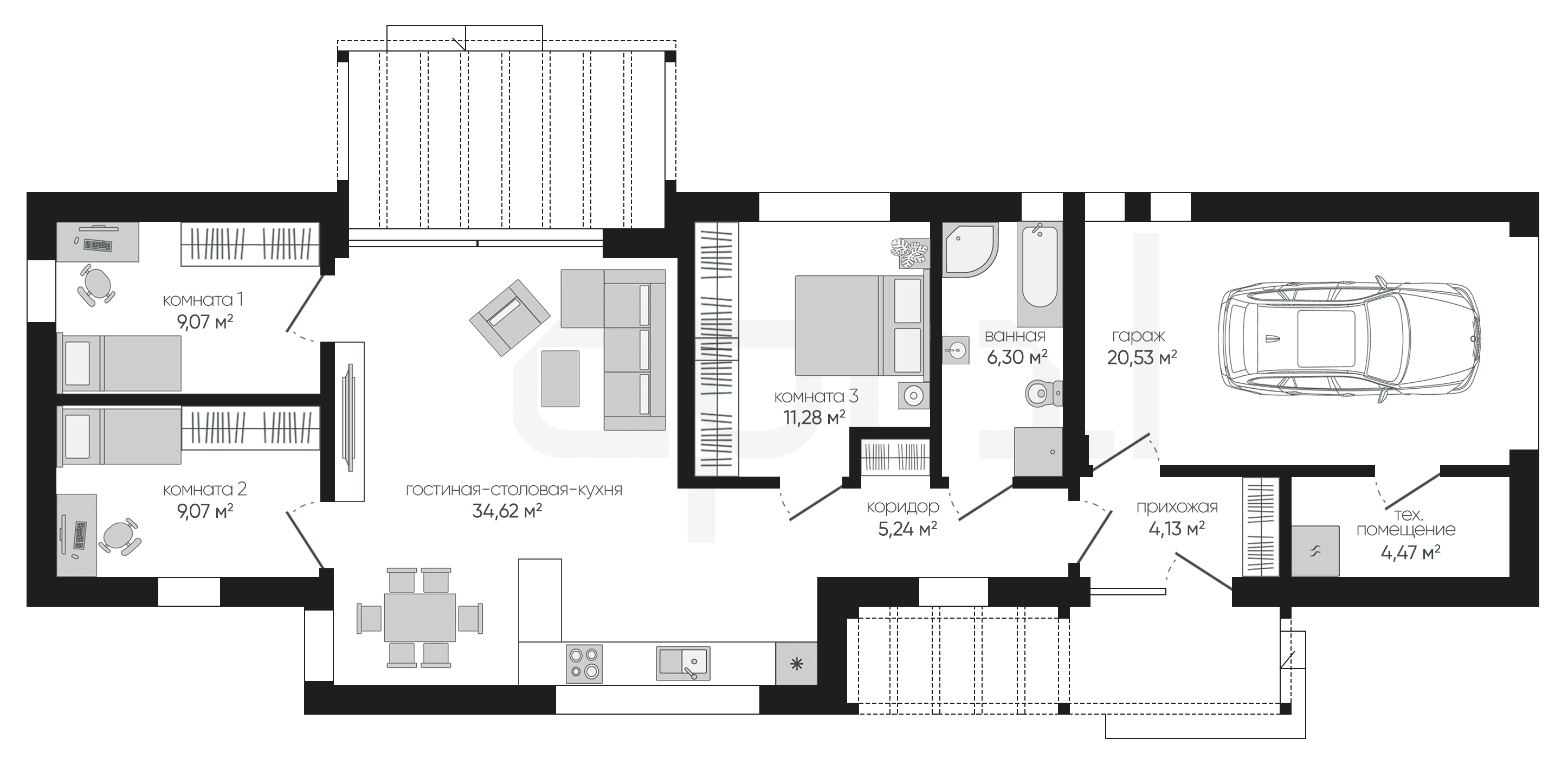
Прихожая
4,13 м²
Коридор
5,24 м²
Гостиная-столовая-кухня
34,62 м²
Комната 1
9,07 м²
Комната 2
9,07 м²
Комната 3
11,28 м²
Ванная
6,30 м²
Техническое помещение
4,47 м²
Остались вопросы?
Напиши нам.
Напиши нам.
Наш ведущий инженер свяжется с вами в ближайшее время.
ДАННЫЕ ПОЛУЧЕНЫ
данные успешно отправлены
Ведущий инженер компании свяжется с вами в ближайшее время.
Дома 1 этаж
Дома 2 этажа
Дома 1 этаж с гаражом
Дома 120 м2
Дома 150 м2
Дома 2 этажа с гаражом
Дома 200 м2
Дома 250 м2
Дома 3 этажа
Дома в скандинавском стиле
Дома в стиле райта
Дома в стиле хайтек
Дома до 100 м2
Дома с гаражом
Дома с мансардой
Дома с сауной
Дома 1 этаж с гаражом и террасой
Дома 1 этаж с террасой
Дома в стиле барнхаус
Дома в стиле шале
Дома из газобетона
Дома из газобетона 1 этаж
Дома из камня
Дома из керамических блоков
Дома из кирпича
Дома из пеноблоков
Дома с зимним садом
Дома с подвалом
Дома с террасой
Дома с цокольным этажом
Фахверковые дома
Дома с бассейном