а392
Проект одноэтажного современного дома с гаражом и террасой.
Дом увенчан плоской крышей, а фасады отделаны белой штукатуркой, чья строгость «согревается» деревянной облицовкой. Использованные материалы и элементы фасада прекрасно гармонируют, придавая зданию элегантный характер и атмосферу современной виллы.
Дом увенчан плоской крышей, а фасады отделаны белой штукатуркой, чья строгость «согревается» деревянной облицовкой. Использованные материалы и элементы фасада прекрасно гармонируют, придавая зданию элегантный характер и атмосферу современной виллы.
о проекте
Плавные и спокойные формы плоской крыши гармонируют с четкими линиями фасадов и современной отделкой, создавая привлекательный и современный вид.
ЭТАЖНОСТЬ
1
ПЛОЩАДЬ
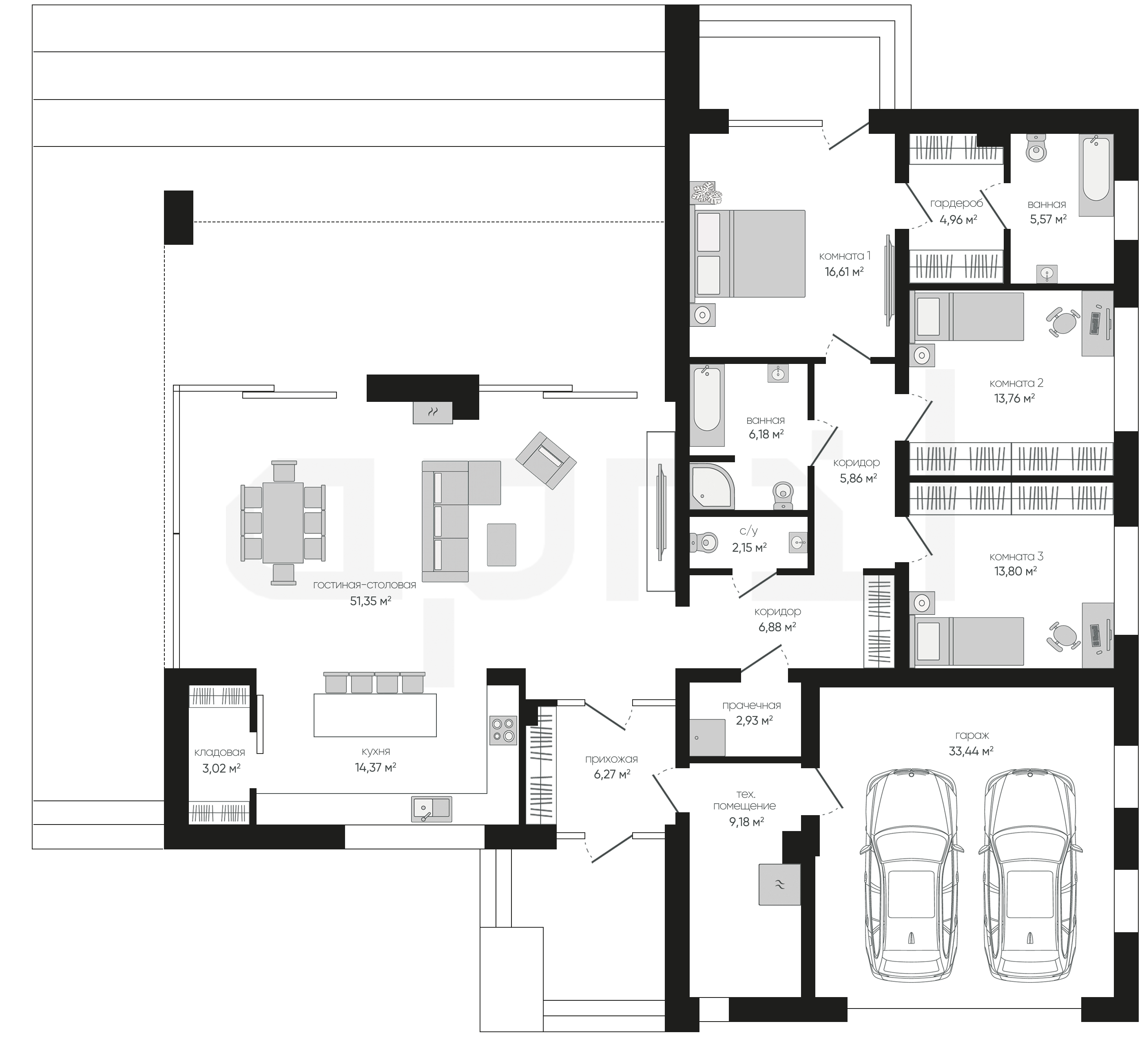
196.33 м²
ПАРАМЕТРЫ ПРОЕКТА
196.33 м²
Общая площадь
196.33 м²
Прихожая
6,27 м²
Гостиная-столовая
51,35 м²
Кухня
14,37 м²
Кладовая
3,02 м²
Коридор
6,88 м²
С/у
2,15 м²
Коридор
5,86 м²
Ванная
6,18 м²
Остались вопросы?
Напиши нам.
Напиши нам.
Наш ведущий инженер свяжется с вами в ближайшее время.
ДАННЫЕ ПОЛУЧЕНЫ
данные успешно отправлены
Ведущий инженер компании свяжется с вами в ближайшее время.
Дома 1 этаж
Дома 2 этажа
Дома 1 этаж с гаражом
Дома 120 м2
Дома 150 м2
Дома 2 этажа с гаражом
Дома 200 м2
Дома 250 м2
Дома 3 этажа
Дома в скандинавском стиле
Дома в стиле райта
Дома в стиле хайтек
Дома до 100 м2
Дома с гаражом
Дома с мансардой
Дома с сауной
Дома 1 этаж с гаражом и террасой
Дома 1 этаж с террасой
Дома в стиле барнхаус
Дома в стиле шале
Дома из газобетона
Дома из газобетона 1 этаж
Дома из камня
Дома из керамических блоков
Дома из кирпича
Дома из пеноблоков
Дома с зимним садом
Дома с подвалом
Дома с террасой
Дома с цокольным этажом
Фахверковые дома
Дома с бассейном