а359
Проект одноэтажного дома в стиле Хайтек с просторным гаражом, плоской крышей и террасой.
Фасад отделан горизонтальными клинкерными плитками и вертикальными деревянными досками, что придает ему минималистичный, но яркий характер.
Большое остекление открывает вид на сад, обеспечивает интерьер естественным светом и делает открытым для окружающей среды.
Фасад отделан горизонтальными клинкерными плитками и вертикальными деревянными досками, что придает ему минималистичный, но яркий характер.
Большое остекление открывает вид на сад, обеспечивает интерьер естественным светом и делает открытым для окружающей среды.
о проекте
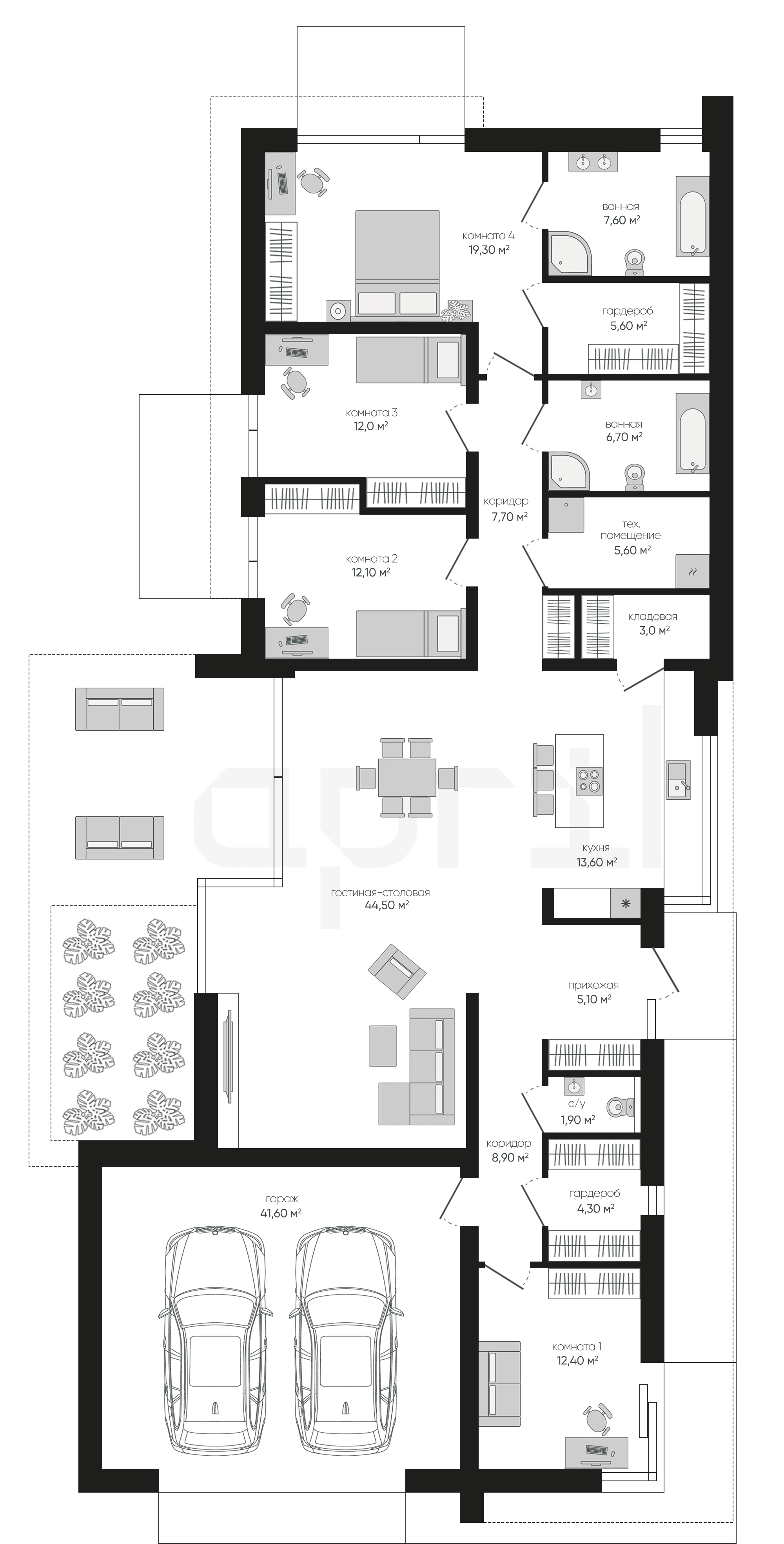
Современная форма дома скрывает в себе функциональный интерьер для семьи из 4-5 человек с четким разделением на зоны.
ЭТАЖНОСТЬ
1
ПЛОЩАДЬ
211.90 м²
ПАРАМЕТРЫ ПРОЕКТА
211.90 м²
Общая площадь
211.90 м²
Прихожая
5,10 м²
Гостиная-столовая
44,50 м²
Кухня
13,60 м²
Кладовая
3 м²
Коридор
8,90 м²
С/у
1,90 м²
Гардероб
4,30 м²
Комната 1
12,40 м²
Остались вопросы?
Напиши нам.
Напиши нам.
Наш ведущий инженер свяжется с вами в ближайшее время.
ДАННЫЕ ПОЛУЧЕНЫ
данные успешно отправлены
Ведущий инженер компании свяжется с вами в ближайшее время.
Дома 1 этаж
Дома 2 этажа
Дома 1 этаж с гаражом
Дома 120 м2
Дома 150 м2
Дома 2 этажа с гаражом
Дома 200 м2
Дома 250 м2
Дома 3 этажа
Дома в скандинавском стиле
Дома в стиле райта
Дома в стиле хайтек
Дома до 100 м2
Дома с гаражом
Дома с мансардой
Дома с сауной
Дома 1 этаж с гаражом и террасой
Дома 1 этаж с террасой
Дома в стиле барнхаус
Дома в стиле шале
Дома из газобетона
Дома из газобетона 1 этаж
Дома из камня
Дома из керамических блоков
Дома из кирпича
Дома из пеноблоков
Дома с зимним садом
Дома с подвалом
Дома с террасой
Дома с цокольным этажом
Фахверковые дома
Дома с бассейном